查看完整案例


收藏

下载
❏ 空间阐述
SKY52 天际荟
坐落于杭州来福士大厦 52 层,距地 220 米的高空,享有极致夜景。这是一个 94 年香港毕业回来的年轻主理人的餐饮空间。主创设计师结合自己早先国外建筑游学的所观所想,设计基于主理人关于港风时代感的喜爱,将港风怀旧、现代、建筑、国际多元文化等元素打碎糅合,结合空间功能共同融入到 SKY52 的空间中。
概念表达
❏ 空间概念
空间的理念从空间高度入手,提取出“天空”与“地平线”作为构成元素,从中推导出线条、光源、无限、金属、未知等一系列情绪点,用设计为 SKY52 构筑空间价值,为消费者提供情绪依托的场所。
平面分析
❏ 平面思考尝试
❏ 平面思考尝试
❏ 平面动线分析
通过动线分析隐形引导顾客感受空间整体氛围和空间置景,提升消费体验,达到空间增值。
❏ 平面时间节点分析
❏ 平面时间节点分析
通过动线分析合理安排各功能区域开放时间以及时间节点,增加效益营收。
❏ 平面布置意向
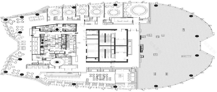
❏ 总平面图
整体空间分为多个功能区块:生蚝吧空间、亚洲餐厅、大厅空间、轻夜店等。
空间展示
❏ SKY52 主入口空间
❏ 打卡走廊空间?
❏ 大厅亚洲菜空间?
大堂空间
通过灯光形式、材质在光线下的呈现、变化,镜面的反射转换,将内部空间与外界城市白日的云海、楼宇、夜间的星光、灯火最大限度地融合在一起,模糊了内外空间的界线,让访客直观感受高空的感官触动。
?️
❏ 大包厢空间
❏ 小包厢空间
包厢空间添加了香港街景中常见的矩形元素,并嵌入深绿色的大理石。色彩与形式的结合丰富了墙面的空间层次和视觉效果。设计中置入内部空间 KTV 功能,满足消费者多重需求。
❏ 生蚝吧空间?
空间中生蚝吧以一种非正式的空间形式呈现,将用餐者引入亲密的用餐氛围。深色的座椅与台面,用材料的特殊性表达内部空间的丰富。柔和暖度的灯光使台面区域与周围环境达到感官上的呼应,强调了人对空间的感知。
❏ SKY52 卫生间
卫生间深绿色大理石和 Grigio Alpi 石灰石组成的地板,鲜明的颜色对比似一副独特的拼图,而垂直的表面则采用了木饰面板与金属细柱,这种充满动感的组合丰富了室内空间的视觉效果。
色彩情绪版
材料样板示意 ❏
石材、橡木、以及金属细柱作为三种主要材料,被分别运用到不同空间元素中。
SKY52 的场景之间注重情绪的转换,通过空间设计带给访客高端的品质感受。设计师希望通过色彩、空间、环境的不同纬度的塑造,去探访消费者的心理,去适配 220 米高空的地理优势,让空间价值的表达不只是 52 层的高端格调,更多的如同冬日 5 点 20 点最后一缕夕阳和夏日 5 点 20 分的第一缕朝阳,通过空间向访客传达“抓住美好,享受美好”价值理念。
项目名称:SKY 52 天际荟
设计公司:Artdeep 艺痴设计
创意总监:倪軍軍
主创设计师:卢凡及、孙坤、杨成龙
深化设计师:王金龙、余嗣铭
软装设计师:李贞、徐松
项目时间:2021 年 10 月
项目地址:浙江省杭州市来福士 52 层
主要材料:深绿色大理石、木饰面、哑光金属
首发|办公室创新 国内收纳品牌的突破
新作|惊人院剧本杀 带你解锁沉浸式体验空间
新作|小慢居茶饮 打造嘉兴第一“国风”茶酒吧
客服
消息
收藏
下载
最近


































