查看完整案例


收藏

下载
位于北京东郊的朗园 Station 是正在蓬勃兴起的商业街区,其前身是废弃的纺织品仓储基地。始于 50 年代,大多数建筑都已经超龄服役。由于初建时期抗震标准不高,砖墙多处已经开裂,构造柱也不完整交圈。可以划作危房的现状条件,对于任何当代功能的植入都是挑战。
余留地团队将其中一栋长 42 米,宽 30 米,高 8.5 米的砖混结构库房进行了彻底的翻新,为摄影师业主提供了如艺术博物馆般的工作环境。
▼建筑外观概览
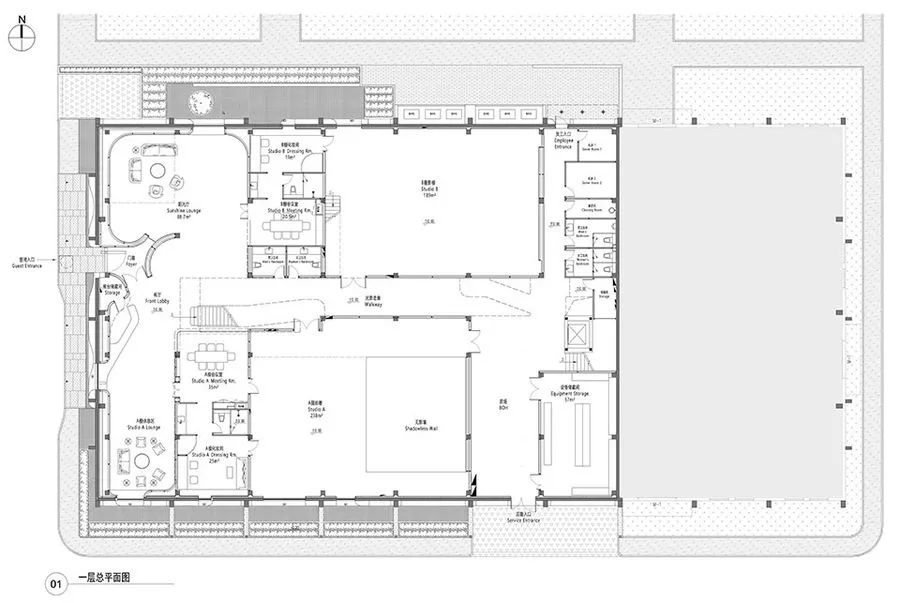
业主的基本要求是在新体量里容纳下三个摄影棚。其中包括两个常规棚,净高在 5-8 米之间,以及一个天光棚,净高 3.5 米。封闭如暗盒的摄影棚是业主日常工作的区域。而各摄影棚之间则视作辅助空间,包括门厅,接待区,休息室,走廊,楼梯,以及摄影师的个人空间。借鉴罗兰×巴特在《明室》中对摄影图像的类型阐述,余留地转换了空间的主次关系。主要采用布景和受控光源从事影像生产的摄影棚内部被视作 Studium,即相对静态的空间。而围绕摄影棚的流通空间则可以利用自然光线实现 Punctum,即视觉上更加悸动的空间。
▼分析图
▼外墙的基本体廓被保留下来
▼混凝土框架嵌入砖墙,增强其结构刚性
▼240 厚的烧结红砖墙体
尽管原建筑内部从地基到屋顶都被拆除重建,外墙的基本体廓被保留下来。但无论是只有 240 厚的烧结红砖墙体,还是以 6 米为间距,带有顶部线脚的砖壁柱,都无法支撑内部新加建的楼层荷载。因此设计团队与结构工程师密切配合,为外围护物设计了一套新的支撑系统。混凝土框架嵌入砖墙,增强其结构刚性,同时维持主要展开面,并使灵活调整外墙开洞成为可能。新洞口的尺寸和位置体现了室内各房间对采光的需求,仿佛不同光圈的镜头。用于稳定洞口的 GRC 外框,并不是单纯的平面轮廓,而是具有流动感的立体形态,以借助阳光的照射塑造厂房的城市新面孔。
▼主入口立面
▼立面细部
主入口位于首层西侧,通过一个曲折的门斗引导访客进入大厅。大厅正对中心走廊,并连接南北两个影棚休息室。
该公共区域的表面材料由水磨石,木材,半透明玻璃和肌理漆构成,形成非常丰富的单色调。光线从不同方向直接或间接散发进来,交叉,反射和渐变于由若干弧形表面围合的高敞空间。经过仔细布置的洞口具有变化的轮廓和深度,有意拉长由光亮到昏暗的过程。
这种试图显示照明轨迹,并创造多层灰色调的努力,受到安塞尔×亚当斯(美国二十世纪著名摄影家)提出的“区域曝光法”理论启发。
▼入口公共区域
▼弧形表面围合的高敞空间
▼丰富的单色调与光线
▼摄影棚 B 入口
▼摄影棚 B
▼常规棚净高在 5-8 米之间
▼关闭遮阳卷帘后的摄影棚
最具戏剧性反差的地方是中心走廊。走廊分为上下两层,联系南北两侧楼层的变化高差。一道 35 米长,带有遮阳卷帘的天窗,将屋面切开,让自然光倾泻进入建筑内部各个角落。明亮四处蔓延,阴影翩翩起舞。四段乳白色的楼梯,将围绕光影走廊的简单循环动线变成移步换景的旅程。访客发现自己如置身于一座以光为景的展厅。
▼中心走廊
▼楼梯
▼二层走廊
室内加建的最高区域是供摄影师休憩的个人空间。余留地创造出一个带有露台,充满愉悦氛围的空中居所。压低的倾斜天花使房间具有阁楼的尺度特征,却因为白色的大理石墙面和充沛的采光而倍显明亮,但又不因此而灼热难耐。这主要归功于南向的整面落地玻璃,通过光影走廊的天窗获取过滤后的太阳辐射。房间西侧的玻璃幕墙则将室内与室外平台贯通。种植着常绿灌木和四季花草的露台,成为主人和他的三只爱犬日常嬉戏的空中庭院。偶尔,这里也可以被当作一个自然光拍摄的室外摄影棚来使用。
▼白色的大理石墙面和充沛的采光
虽然改造后的建筑内部为私人领域,但围绕外墙的街道边界并没有采用封闭式的景观处理。这反映了余留地团队努力在所有项目中贯彻的“共享私域”理念。重新修整的人行道路,为衬托原建筑砖墙而设置的灌木丛,以及在相邻厂房间的空隙里增添的乔木绿荫,都为正在经历重生的工业园区创造出城市街区应有的宜人环境。
▼南向的整面落地玻璃
▼区位图
▼一层总平面图
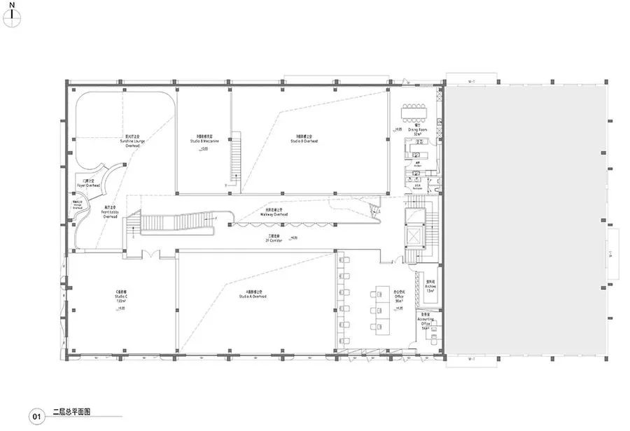
▼二层总平面图
▼阁楼层总平面图
▼立面图
▼剖面图,sections © 余留地
项目名称:韦来摄影艺术空间
项目类型:办公空间
设计方:余留地
设计团队:
宋方舟,岳峰,赖智薇,蒲洁宇,傅诗,魏丹,宋蕾,林画儿
项目地址:北京朝阳区半截塔路 53 号首创郎园 Station
建筑面积:2185 ㎡
摄影版权:安利,韦来
客户:未来境界摄影工作室
材料:GRC,砖,水磨石,人造石,直立锁边金属板,木饰面板, 微水泥
本文转载网络,仅供学习参考之用,版权归原作者所有,如有侵权请在文末留言。www.ododesign.com
客服
消息
收藏
下载
最近





































