查看完整案例


收藏

下载
广州X-ROOM创意办公空间坐落于TIT创意园内,是一家时尚服装公司的线上平台办公室。
为了给员工提供一个舒适、放松的办公场所,设计方大量运用玻璃、水磨石、镜面不锈钢等时尚的建筑元素,解决20年老楼空间小、采光差等问题,探讨人与空间、人与环境和谐共生的现代化办公解决方案。
项目先后获得2019年AMP美国建筑大师奖、2019年
伦敦设计奖。
01
55
㎡
空间的大小之辨
TIT创意园前身为创建于1956年的广州
纺织机械厂,位于市区中心,抬头即见地标建筑“小蛮腰”。
广州X-ROOM创意办公空间的项目原场地是一栋20年老楼,门口正对广场,内部空间一望到底。装修陈旧,室内光照不足,毫无设计感可言。
从事时尚行业的业主深谙办公室硬件与环境的重要性。她相信“物以类聚”,一个时尚、有活力的办公空间,才能吸引有品味、思维方式活跃的员工;具有审美高度的精致环境,才能让使用者潜移默化成为有追求的人。
为了不辜负周遭的天然美景,她希望让老楼重获新生,实现现代化办公、时尚生活方式与自然生态的融洽共处。
▼ 项目改造前
项目改变了一楼大门的方向。原先的门口改为玻璃幕墙橱窗,简约前卫的灰调水磨石空间,用于展示时尚行业的公司形象、陈设最新的设计作品。
经过橱窗与红砖矮墙之间的栈道走廊,入口获得私密性。
▼ 项目改造后,入口获得私密性
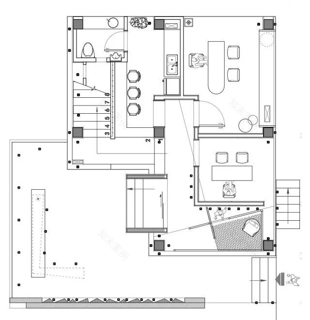
一层面积仅有55 ㎡,需要同时兼具形象展示、招聘、接待、员工休闲、高管办公室等多项功能。设计师通过张弛有度的空间规划,完美地满足了业主的所有“任性”要求。
▼ 改造后平面图
进门左手边,贯穿整体空间的超比例楼梯放大了室内的立体感,让只有55 ㎡的一层获得拔高的气势,丝毫不显得压抑。挑高的楼层,偶尔可以悬挂巨幅时尚海报,展示最新的潮流趋势。
▼ 超比例楼梯扩大室内的立体感
值得一提的是,超比例楼梯原本是一座位于户外的铁艺楼梯,既不美观,也不方便上下楼,下雨天更是让整个办公室陷入苦恼。
▼ 一层原始平面图,空间“视觉焦点”超比例楼梯原本是位于户外的鸡肋设计
经过设计师的巧手改造,化腐朽为神奇:构建玻璃幕墙,将楼梯移入室内,大大提升办公人员使用楼梯的舒适度。
▼ 透过玻璃幕墙,窗外的阳光和绿意自由泻入室内,格局明亮通透
设计师再用独到而细致的手法,制造令人印象深刻的建筑设计亮点:
室内楼梯保留原始楼梯的整体结构,楼梯扶手、横梁大面积包裹镜面不锈钢材质,营造出错综复杂的空间幻象,凸显视觉扩大效应,在小体量建筑内凭空“偷”出更多面积,让空间变得舒朗开阔。
玻璃幕墙、镜面不锈钢、水磨石等均为基础建筑材料。虽然材料简单,但经过巧妙构思,与空间立体结构之间形成辩证对话,赋予整栋建筑前卫时尚感。
▼ 水磨石、不锈钢、玻璃三种现代材质之间的对话
时尚行业对空间色彩非常敏感,主体空间选择米白色搭配浅灰色的水磨石,简约大方、经典耐看,能够与不同时装季的主题色相协调。
水磨石材质的选择同时考虑了建筑防水防晒的需求,材料环保可持续,不容易老化,让建筑持久如新。
▼ 米白色与浅灰色水磨石,打造经典耐看的时尚空间
楼梯一侧因地制宜,用水磨石打造吧台,方便工作洽谈和员工休闲。还利用楼梯底部空间,安置洗手间与迷你储藏室,有限的空间得到充分而有效的利用。
▼ 楼梯一侧安置吧台、洗手间、迷你储物间,提高空间利用率
一层的橱窗背后,是一个面积仅7 ㎡
的迷你办公室,用于简单的接待和公司招聘面试。
开放式圆栱门包裹不锈钢,增添潮流感,形成了开放、流畅的空间动线。办公室与橱窗之间设置了半开放墙,增强空气对流,巧妙化解空间局促。
▼ 面积仅7 ㎡
的迷你办公室,通过设置半开放墙,巧妙化解空间局促
02
与自然共生的现代化办公
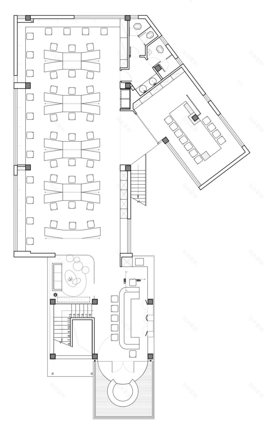
二层沿着楼梯上来,是四面通透的水吧区,周围环境的绿意映入眼帘。工作之余,员工在这里获得休闲和放松。
装饰元素点到为止,避免对工作中的员工形成视觉干扰。立体感十足的几何造型天花板,增添几分前卫设计意趣。
▼ 四面通透的开放式水吧,员工在这里获得休闲和放松
水吧旁的玻璃房营造休闲惬意的格调,契合时尚行业的气质。通透开放式设计,让整个办公室保持明亮清朗。
办公区可容纳50人,采用互联网开放办公结构,便于员工沟通。大量使用玻璃与镜面作为隔断,视觉上放大空间。
照明全部采用LED智能调光,一方面出于节能减排的考虑,另一方面可根据场景需求,营造不同的灯光氛围。
▼ 互联网开放式办公结构,便于员工沟通
大会议室与办公区之间使用导电玻璃隔断。开启磨砂模式,隔绝视线、确保私密性;关闭磨砂模式,增加通透度,充分体现了现代化办公的灵活性。
▼ 会议室使用导电玻璃,实现灵活的现代化办公
会议室门口的消防楼梯,保留了原本的明黄色,制造视觉上的一抹惊喜。消防楼梯直通夹层的独立回廊,布置为吸烟区。充分利用鸡肋空间打造多元化休息区,为员工保留一片“灵感空间”。
▼ 充分利用夹层空间,打造多元化休息区
二层水吧区往外,是一个小型的花园露台。用人造石打造融入建筑外观的装置艺术品,搭配灯光增添建筑的潮流感,同时兼具吧台功能。
互联网时尚行业的办公室,偶尔需要举办小型发布会。花园露台承担多样化功能,同时也是员工聚会、开趴的最佳场所。
▼ 随时可以举办时尚发布会的花园露台
在本案中,设计师通过张弛有度、细致入微的空间规划,使小体量办公室得到放大,满足业主对空间的多元化功能需求;通过对玻璃、不锈钢、水磨石等基础建筑材料的重新演绎,与时尚行业的精神气质和美学追求达成共鸣;通过节能环保材料与最新办公科技的应用,打造可持续发展的现代化办公范例;通过深入洞察人性需求,综合多种建筑设计手法,创造了人与自然和谐共生的办公环境。
多方面因素的综合,成功让破旧老楼起死回生,让广州X-ROOM创意办公空间蜕变为新晋网红打卡圣地,并斩获2019年AMP美国建筑大师奖、2019年伦敦设计奖等多个国际奖项。
【项目信息】
项目名称:广州X-ROOM创意办公空间
设计机构:在于空间设计
主创设计师:于艳
完工时间:2019年2月
项目地址:广州TIT创意园
项目面积:350 m
2
摄影师:ZETA
客服
消息
收藏
下载
最近







































