查看完整案例


收藏

下载
启仓设计近期完成了可瑞舒适家杭州新总部大楼的设计,这个项目位于杭州西湖区古墩路700号,实用面积1800平方米。全楼为上下两层围绕以挑高中庭为核心的白色盒子空间,简净的白色建造体独立于周边环境,传达出建筑与环境,科技与生活以及开放与共享的理念。
大厅入口
新大楼一层设有产品展厅和舒适家各系统的智能体验样板间,二层为综合办公区。功能分布满足共享大厅,开放办公区,多媒体会议,小型研讨区,独立办公室,展示体验空间等。作为一个集办公、展示、销售于一体的综合性总部中心,这个空间将面对不同类型的使用人群,它不仅需要实现空间交通的最优化,还要实现员工和顾客的合理分流,以保障办公和体验的不同环境要求。
垂直交通
整体空间设计以线条为骨架、以色彩为表皮,并在白中大胆地融入红色,以白的纯粹,红的立体营造空间的层次感和记忆点。
前台接待
前台红色的背景代表热情服务的企业态度,在白色主调的大厅中显得尤为醒目,同时兼具视觉引导的功能。
共享大厅
共享大厅是平面动线和垂直动线的中心,为了协调空间的松、紧关系,设计师用一个挑高的中庭,把空间的尺度打开,呈现宏大的空间场域,整体感觉更通透。
光线与空间
设计师注重自然光的艺术运用,通过对顶部折线形天花的处理,在折角处设计透光区,不仅吸纳了自然光进入室内,而且通过这些光线的变化,让空间使用者能感知时间的变化和光的律动。
产品展示区
一楼的产品展示区设计研讨区和洽谈区,不同产品的每个局部展示空间之间有着相互衔接的关系,员工、访客可以自由穿行。而黑白的色彩变化则增强了空间的识别性,加上可瑞标志元素的运用,视觉体验上更加丰富。
智能家居样板间
在智能家居展示区内,简洁的视觉表达和空间装饰,包含了沟通与传达的力量。空间内设可瑞舒适家的四恒系统,保证了整个空间恒温,恒湿,恒氧,恒静,而智能系统则保障了整个办公环境能舒适、便捷、智慧地运行。
综合办公区
为了提高办公的舒适性和效率,设计师将综合办公区设在二楼,除了独立的经理室和高管办公室外,通过中部回廊的设计形成了办公室空间的天然分隔及动线划分,保证各个不同区域的独立性和相对安静的办公环境,令工作效率和人员关系得到优化和改善。
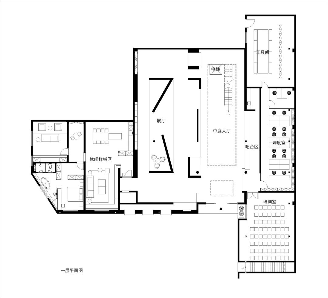
平面图
项目名称:可瑞舒适家杭州总部
项目功能:办公展示
建筑面积:1800㎡
项目造价:580万元
设计机构:启仓设计
主案设计:毛赟、胡雅婷
撰文:叶建荣
摄影:朴言
客服
消息
收藏
下载
最近


















