查看完整案例


收藏

下载
AmoMedia,是乌克兰Genesis(创世纪传媒)旗下新成立的一个品牌,其在乌克兰基辅新开设的办公室由Misto Zmistu设计团队打造。本案的设计宗旨是创建一个具有激励、并优化的工作空间,去满足不断成长的团队发展变化的创新工作进程。
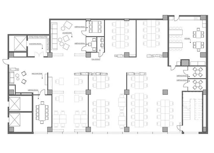
整个空间布局建立在开放办公的概念基础之上,让每一个功能空间都能作为一个独立的有机体进行自由重组和重新定位。
纵向型的空间构成,每一个工作空间犹如一粒粒珠子被串联在中轴线上,这些开放工作区沿窗而设,最大化引入自然光线,同时各区域又可以任意变化。在功能规划上设计了迎宾区、休息区、各种大小的会议室和自助餐厅。
设计团队保留了建筑的工业风质感,并以对角桁架强化这一设计美学。同时根据公司年轻而活力的文化和品牌色彩,以极简的设计语言配以强烈的色彩构成创建出一个独具时尚品味、且令人印象深刻的美学空间。
设计:Misto Zmistu
地址:乌克兰 基辅
面积:504平方米
时间:2019年
摄影:Yevhenii Avramenko
客服
消息
收藏
下载
最近























