查看完整案例


收藏

下载
项目面积:128m²
项目户型:四居室
项目风格:新中式
设计师:徐超
项目地址:漓江花园
本案屋主是一对 90 后小夫妻,留学归来便决定定居于魔都生活,或许是看惯了世界的繁华,他们更追求返璞归真的舒适生活,一番深入沟通后,设计师徐老师将风格定位于很有禅意的新中式风,也寄托了业主一家对中国传统文化的喜爱。
屋主要求:希望两房改成三房+保姆房、空间收纳充足。原始户型问题:布局方正,采光、通风良好。但对于房屋整体来说利用率不高且过道空间拥挤,考虑到这些问题,设计师利用过道及主卫面积,缩短过道长度,划分出多功能房,过道区域扩宽,将家中钢琴合理安放,客卫设计干湿分离等,这样的调整,增加了功能房与钢琴摆放的问题,也完美的解决过道狭窄的困扰,增加了空间的利用率和美观性。
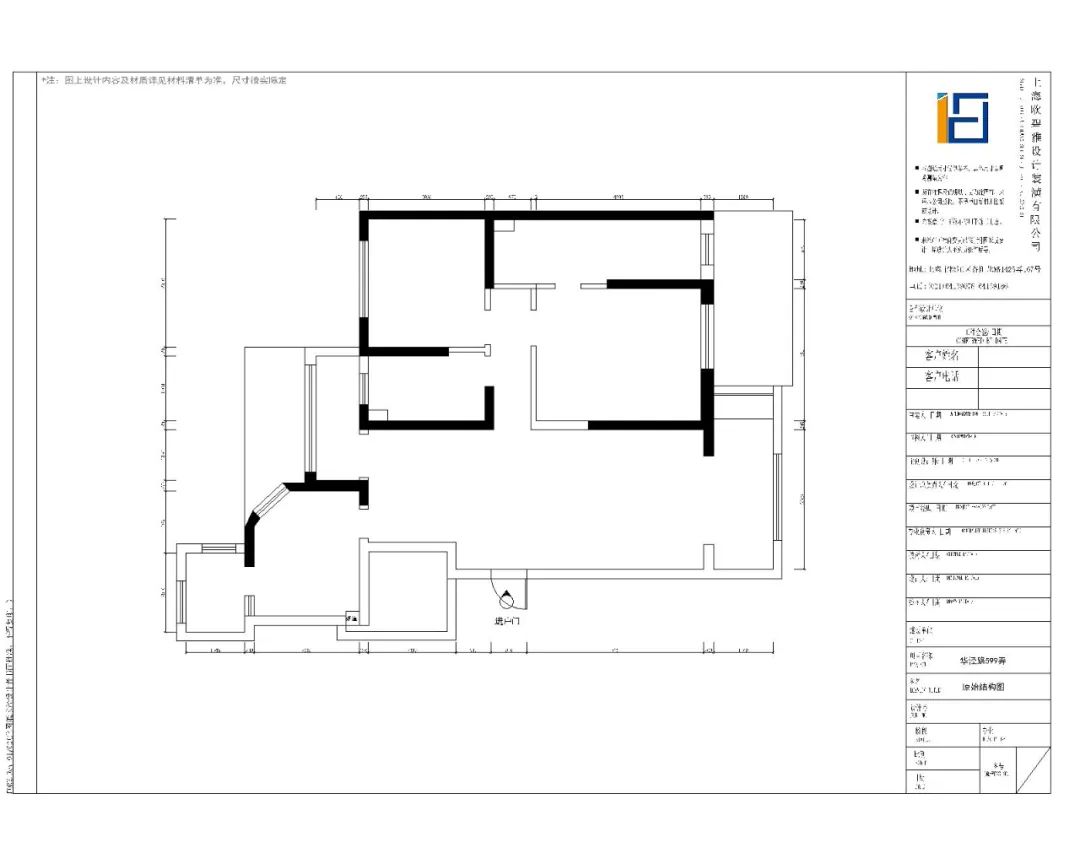
户型图
原始户型缺陷:
1.餐厅一边是客厅一边是阳台与厨房,无独立的收纳空间。
2.公卫空间独立,利用率不高。
3.次卧与主卧房门相对,且过道(4)空间较窄。
5.主卫空间较大,利用不合理,形成空间浪费。
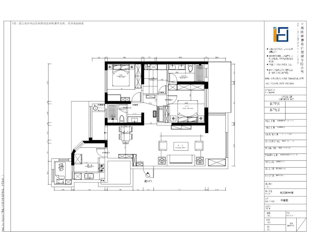
平面布置改造:
1. 设计 L 型转角组合 — 玄关柜+餐边柜,方便玄关与餐厅的收纳。
2. 公卫设计干湿分离,可满足多人使用。
3. 更改次卧入门方向,优化过道狭窄空间。
4. 缩小主卧空间,增加过道宽度,满足钢琴摆放功能。
5. 主卫空间一分为二,增加多功能房间。
前后对比图
客厅前后对比图:将阳台纳入客厅,增加空间的纵深感和开阔感。
餐厅前后对比图:将厨房与阳台门洞高度统一,使空间和谐美观有秩序。
厨房前后对比图:考虑空间的通透明亮和层次感,主要以黑白灰为主色调,配以灯光、线条等元素,营造整洁利落、时尚的生活质感。
卫生间前后对比图:利用玻璃隔断和挡水条做分区,空间隔而不断又杜绝潮湿。
玄关
入户玄关背景,一幅建筑装饰画映入眼帘,深邃质朴色彩,低调宁静的气质,展示家居业主的审美品味与修养。
玄关考虑管道墙和餐厅的收纳及通透性,将原来宽 70 公分的玄关柜增加至 1.1 米,另一侧则设计深为 35 公分的餐边柜,集收纳、酒架、展示置物层为一体,高效使用空间资源,来满足屋主平时生活的储物需求。
玄关进门右手区域设计玄关柜隔断,不但能起到遮挡空间隐私的作用,化解进门见厅的尴尬,还能合理分区,兼具收纳、挂衣、换鞋等功能,使入户门和客厅之间分隔,不影响空间采光又可以成为一个独立的玄关区域。客厅
考虑本案例位于一楼,采光不是很好,设计师将阳台纳入客厅,设计开放式布局,不仅可以让空间的面积产生倍增的视觉效果,也解决了原始客厅采光不足问题,补充了客厅的局部采光,视角更加通透、舒适。
整个空间以水墨纹和深胡桃色为主,搭配了白色的石材与 3D 艺术墙布,让整个空间更加丰富有层次感。
地面水墨纹瓷砖与深胡桃木制品的结合有一种古色古香的中式韵味,顶面极具现代感的黑色钛合金线条与质朴的中式相碰撞,擦出不一样的火花。
为了不让中式元素显得呆板,利用流畅的线条与光源协调空间的厚重感,不仅提升品质感活跃空间氛围,也达到了屋主内心的期望、创造了无限的惊喜!
餐厅
开放式的客餐厅与厨房、阳台相通,不仅拉伸了视觉感,也让空间更加开阔。金属黄铜把手、温润的胡桃木肌理,皆在时时刻刻的表达屋主对生活品质的追求。
点到为止的中式元素,更能完美展现中国人的风骨和文化情怀,于简洁大方间沉淀神髓,散发含蓄而内敛的气质,一如水与墨的交融,无声无息,芳华俱现。
厨房
对于屋主来说,厨房不仅仅是平时的烹饪空间,更是休憩、观景的休闲场所。如厨房生活阳台设计榻榻米和玻璃移门作为保姆房,高效利用空间。又如阳台处的高脚铁艺吧台,小空间大利用,虽说只有小小的 1㎡,却见证生活中的美好时光,让人忘记生活的苟且,享受属于自己的诗和远方。
厨房 L 型转角布局最大化利用每一寸空间,局部内嵌洗衣机与地柜一体,不占空间,又方便整洁。打造一个集烹饪、储物、清洗、休闲为一体的多功能空间。卧室
卧室两边嵌入式衣柜,带来简洁大方的视觉冲击,同款胡桃木材质柜门厚实自在,色调纯净高雅,明朗中更显淡然悠远。
功能房
利用主卫与过道隔出的这间 5 平米的功能房,大有乾坤!空间能收能藏,可以随时切换书房、茶室、客房、休闲室等多种功能。
设计师在设计时尽可能的删繁取简,用精巧的空间细节彰显优雅美学,错落有致的木格栅搭配一幅山水画,打造了一个极具禅意舒适的空间。
若不喜欢盘腿而坐的话,也可以在中间设计一个升降桌,喝喝茶、看看书,将车水马龙的喧嚣关于窗外,尽享这方寸之间的世外桃源。过道
餐厅视角:改造后的空间视线更加开阔、动线更加流畅。空间硬装与软装不同材质的相互碰撞,凸显了新中式风格中独有的质感。
墙面一幅古韵素雅的刺绣图案,赋予了玄关与过道最亮丽的风景线,细腻绝伦的中式格调,彰显屋主别具一格的家居品味。
小细节大精彩,钢琴区上方精心搭配的小吊灯,同样的圆形+梅花组合与餐厅 3D 墙布、多功能房吊灯巧妙呼应,方圆之间都无时无刻散发出中式的雅致韵味。
卫生间
公卫哑光仿古砖铺贴和悬挂的洗手台,提升了卫生间的颜值,整体简洁大方的布置,也让卫生间看起来更加舒适。
主卧卫生间“自带光环”的圆形镜多了一丝精致与浪漫,圆形镜的外围呈现的一圈灯光,在夜间恰似一轮明月,明亮却不失温馨浪漫。
13 万爆改 98 平米奇葩户型,采光收纳大升级!#原创案例#
166 平现代轻奢四居室,精致有格调!
【欧碧雅案例】老房翻新之空间改造
十六年专注二手房 沪上业主的共同选择
○
欧碧雅
○
装修|二手房|家居|攻略|唠嗑
咨询热线:021-64139078
上海欧碧雅空间设计
徐汇店地址:徐汇区凯进路 191 号 3 楼(宜山路地铁站)
松江店地址:谷阳北路 1425 弄 167 号(松江新城地铁站)
客服
消息
收藏
下载
最近

































