查看完整案例


收藏

下载
闲看庭前花开花落
漫随天外云卷云舒
身处繁华的我们
总是渴盼这样的生活
夜晚降临的时候回到家寻找安宁与温暖
在淡雅素净的居室里与家共温情
作品信息
项目地址:明发阅山悦府
设计风格:新中式
项目面积:140m²
设计师:秦从栋
设计说明
本案户型为四室两厅三卫户型南北通透两层,业
主家一共六口人入住,
首先满足生活所需的空间,整个房子空间区域进行分割,一层的给主人的父母布置一个生活起居的空间,二层主要是主人和孩子们的休息区。
室内的总体风格是新中式,整个色彩的搭配和家具的配置显得厚重,沉稳,同时水墨色调也会让整个空间映衬出清新淡雅。
符合主人想要的素静生活品质,浓重的中国风气,也彰显了为人和生活之道。
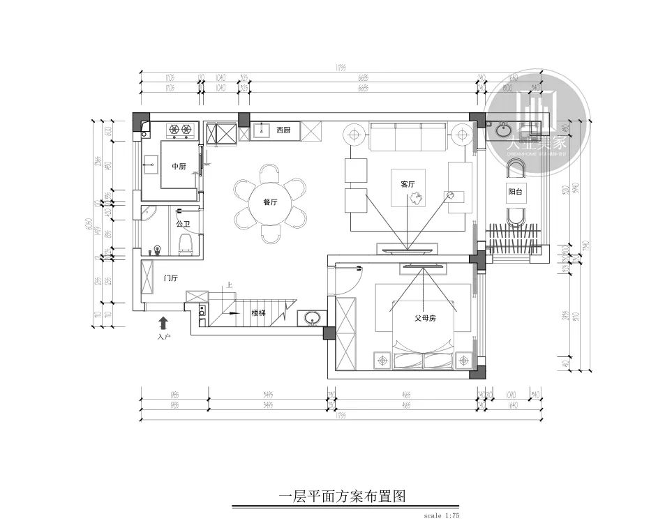
本案平面布置图
客 厅
由于客厅采光比较充足,因此选择了浅色调的地砖,搭配上中式风格背景墙做烘托,总体颜色沉稳而大气,可以与硬装风格完美契合。客厅中对所用中式元素的把控,典雅却又不失活力,不管是山水画的电视背景墙还是浅色的灯具,搭配起来更和谐统一。
餐 厅
餐厅与客厅的设计风格基本上保持了协调,在空间上显得一致不突兀。餐桌椅下方采用了山水画的地砖画,瞬间提升了业主的艺术气息。餐桌上摆放了花瓶,花朵释放出的芬芳,营造出一种清新浪漫的氛围。
主 卧
主卧作为二楼主要的活动空间,也在设计上将客厅相同的色调元素运用了过来。仿古的灯饰,棕色的大床和背景墙,营造出简约舒适氛围的同时,也彰显着主人的品味。衣柜也采用仿古的设计,安排、分布合理,增大了使用空间。
父母房
父母房也采用了水墨色调的山水画墙面,仿古的灯具,搭配上在国人心中分量不轻的红叶,透露了父母希望我们一帆顺利的寓意。早上醒来打开窗帘让阳光洒进来,会让整个屋子显得古朴且温暖。
儿童房
男孩成长过程少不了明朗舒畅的环境。于是卧室的大部分立面施以清爽的浅白色系,避免了产生阴暗或压迫感。主墙以白色作为主视觉,衬托着为淡蓝色系的床头画和书桌椅,希望在成熟休闲调性中,仍保留符合其年龄层的清新和活力。
所有的女孩子都渴望的甜美梦幻,希望自己是一个活泼可爱的公主。因此女儿房我选择粉色调为主色调。几个柜子放上小女生喜欢的玩偶和书籍,可爱又不失活泼。榻榻米和书桌我选择了淡一些的白色作为呼应,让卧室不会过于色彩单一,造成过于甜腻的印象。
----------------------------
—大业美家南京分公司—
—公司地址—
秦淮区太平南路305号江苏饭店9层
浦口区龙华路26号金盛田铂宫08栋104室
客服
消息
收藏
下载
最近












