查看完整案例


收藏

下载
Po Industry four Seasons garden
阳光,那质朴、纯真的阳光,是爱的力量。爱的力量使人们努力前行,从而拥有自己想要的生活。阳光可以直入心里,扫去阴霾,是温暖的,让人奋进的。爱是生活里最纯真的阳光。
Sunshine, the simple and pure sunshine, is the power of love. The power of love enables people to move forward and have the life they want. The sunshine can go straight into the heart and sweep away the haze. It is warm and inspiring. Love is the purest sunshine in life.
所谓的家装设计是一个规划生活的过程,设计生活方式,犹如造梦一般的憧憬,不拘泥于装饰和材料,着力于生活习惯运用在主要的空间关系里。就像是阳光、空气,最基础也最珍贵。
项目信息
项目丨四季园 · 茗园
设计团队丨三石设计工作室
项目地址丨浙江 · 绍兴
面积丨460㎡
一个不起眼的角落就能成为一个安逸的港湾,懒散在充斥着阳光和空气的那个角落。
阳光是建筑的灵魂,就像颜色需要照射才能被人看到一样,阳光带来了温暖和情感。
-1F 平面布局
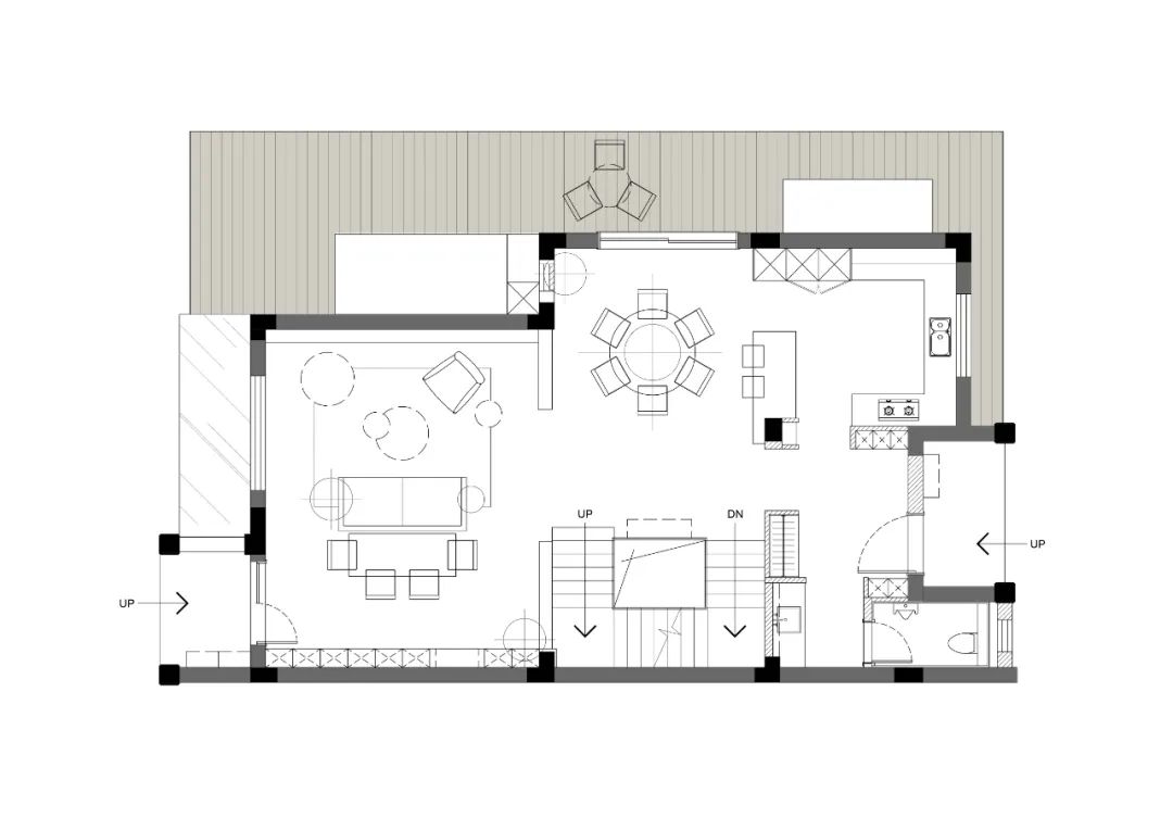
1F 平面布局
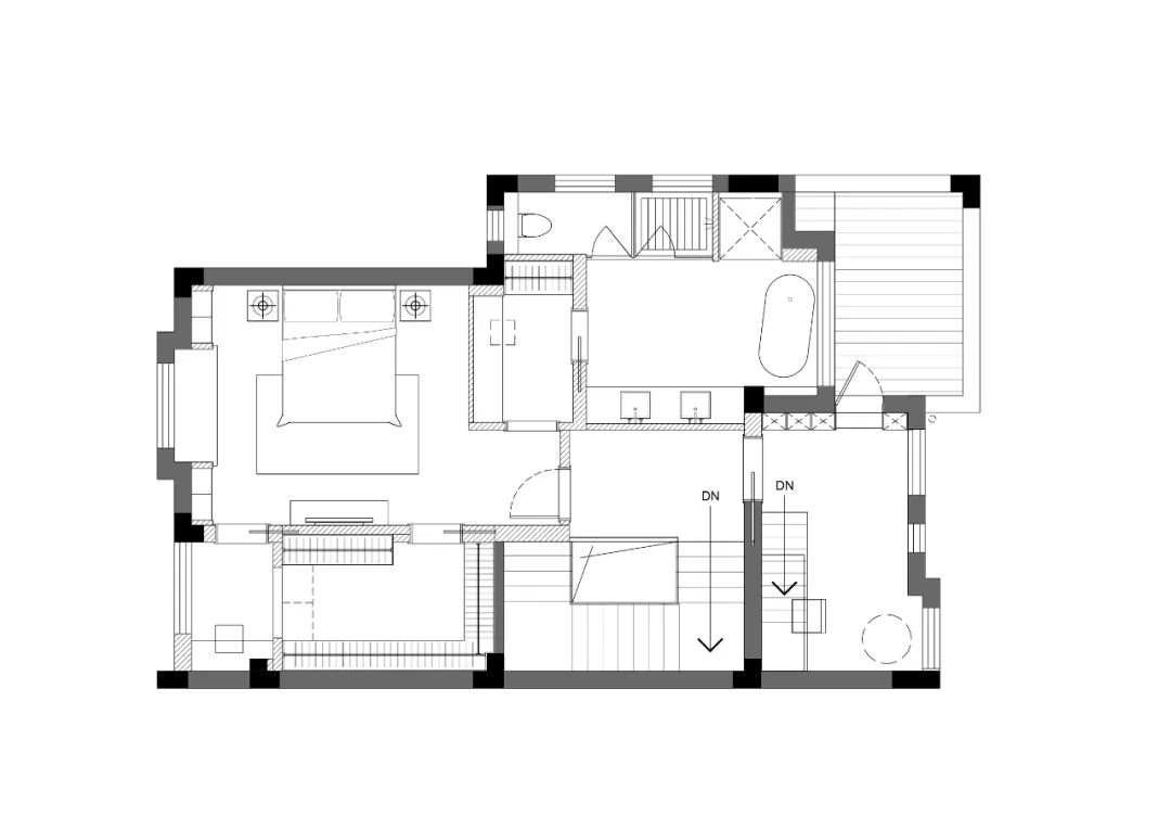
2F 平面布局
3F 平面布局
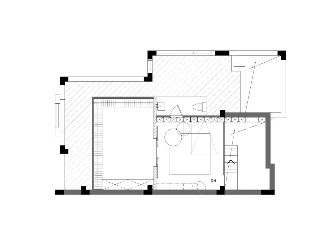
阁楼平面布局
三石设计——十一涧设计团队
ADD
丨绍兴市越城区金德隆创意产业园东区 7-121 号
丨新昌县七星街道康福路 469-3 号
三石设计的设计理念:
家装设计应该从人与自然出发,设计生活的方式远比形式更加有必要,围绕人性和情感去打造属于拥有温度的家居环境。家是承载了情感的空间,家装设计就是通过设计者的专业,引导每一个家庭结合自己的习惯和审美来创造出属于自己的独一无二的居家生活方式。
我们三石设计人认为:
作为家而言,情感比装饰形式更能打动人。我们的设计专注于生活的本真,喜欢充满着温度和阳光的生活。
三石设计采用团队协作的工作方式,通过梳理客户需求,为客户提供完整且直接有效的室内设计服务,三石设计的作品多次获得国内奖项,被国内知名平台、杂志、网络媒体报道关注。
Working philosophy of S&S Design Dtudio:
The design of home decoration should be based on human and nature. The way of design and life is far more necessary than the form. It is necessary to create a home environment with temperature around human nature and emotion.
Home is the space for emotion.
Home decoration design is to guide each family to create a unique home life style by combining their own habits and aesthetic through the professional design.
Our S&S Design Dtudio designers believe that:
As a home, emotion is more touching than decoration. Our design focuses on the true life, like the life full of temperature and sunshine.
S&S Design adopts the working mode of team cooperation, and provides customers with complete and direct and effective interior design services by combing customer needs. The works of Sanshi design have won domestic awards for many times, and are concerned by domestic well-known platforms, magazines and network media reports.
S&S Design Dtudio
版权声明
13957575827
以上案例图片未经同意,请勿擅自使用,侵权必究!
三石设计部分作品回顾
(请点击图片了解项目更多内容)
曹江臻院—心纯
绍东湖庄园—Please Myself
绍职院—从心
天御花园—质·朴
山水名家—光·景
宝业四季园—首发—阳光四季
金地澜悦—暖灰
绍职院—激情阳光的岁月
金色丽都—生活是空
天御花园—都市人的一隅偏安
百合花园—家与生活
大坂风情—最美好的时光就是用来挥霍的
绍职院—80 后的裸家生活
客服
消息
收藏
下载
最近




































