查看完整案例


收藏

下载
Yuezhou Prefecture
人无癖不可与交,以其无深情也;人无疵不可与交,以其无真气也。
项目信息
项目丨越州府
设计团队丨三石设计工作室
项目地址丨浙江 · 绍兴
面积丨230㎡
本案是个顶跃,通过调整房间的格局,拉出一个楼上楼下互动的窗口,从而增加生活的情调,增加了生活中互动的使用场景,让空间有了延伸的力量。做有趣的灵魂,活得有趣的人,更能感受到平凡生活中的诗情画意,找到心灵的归宿。
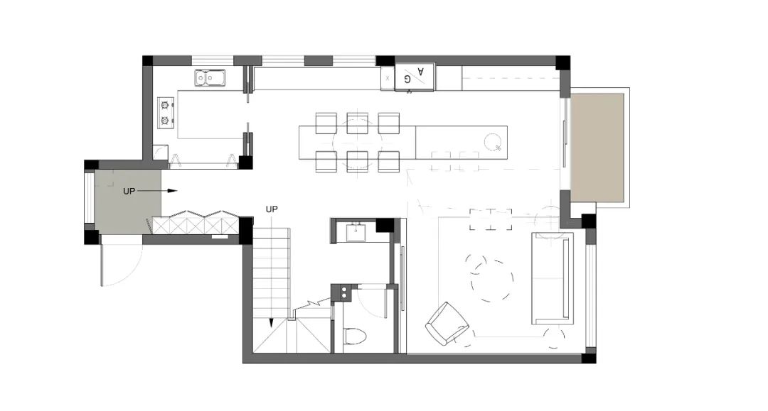
同样贯彻了我们的设计理念,强调厨房餐厅对于整个家的重要性。三石设计认为,餐厅和厨房是家人互动最频繁的空间,承载了爱与交流,体现了整个空间的温度。
贯穿是一种力量,能让空间有一种生长的力量,展现出超出本身体量的感受。在一个充满阳光和会呼吸的空间里自在的生活。
1F 平面布局
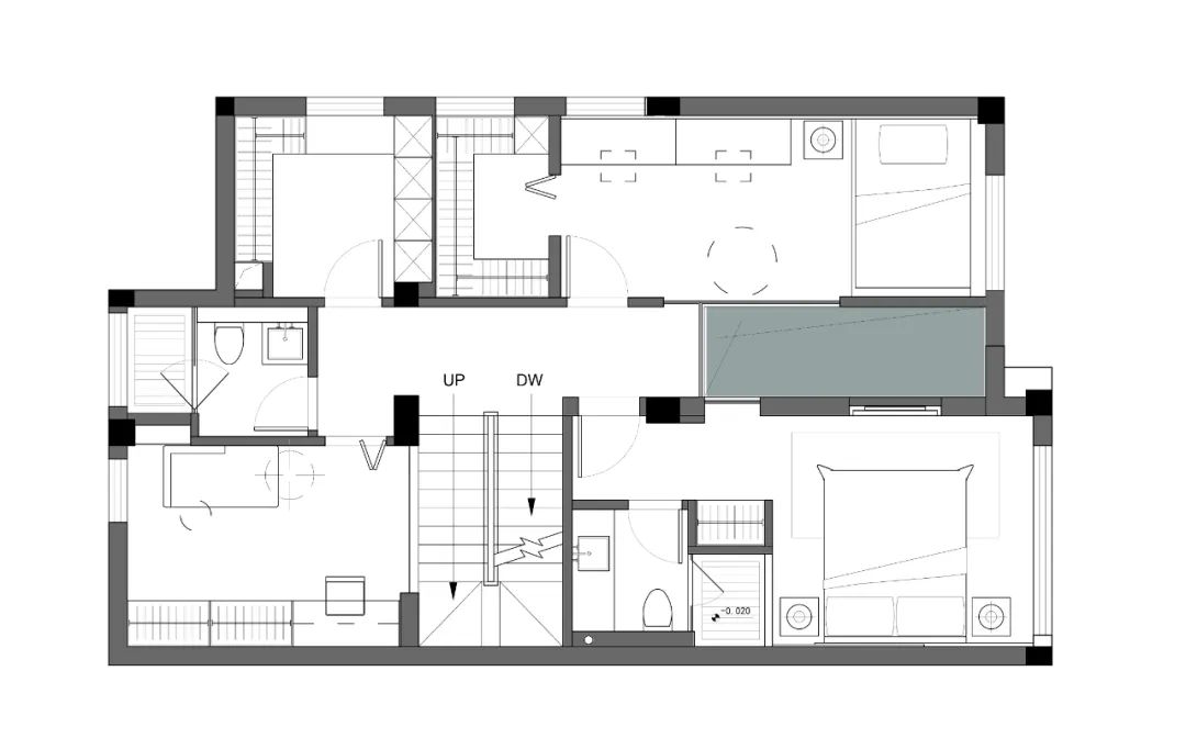
2F 平面布局
阁楼平面布局
三石设计——十一涧设计团队
ADD
丨绍兴市越城区金德隆创意产业园东区 7-121 号
丨新昌县七星街道康福路 469-3 号
三石设计的设计理念:家装设计应该从人与自然出发,设计生活的方式远比形式更加有必要,围绕人性和情感去打造属于拥有温度的家居环境。家是承载了情感的空间,家装设计就是通过设计者的专业,引导每一个家庭结合自己的习惯和审美来创造出属于自己的独一无二的居家生活方式。我们三石设计人认为:作为家而言,情感比装饰形式更能打动人。我们的设计专注于生活的本真,喜欢充满着温度和阳光的生活。三石设计采用团队协作的工作方式,通过梳理客户需求,为客户提供完整且直接有效的室内设计服务,三石设计的作品多次获得国内奖项,被国内知名平台、杂志、网络媒体报道关注。
Working philosophy of S&S Design Dtudio:
The design of home decoration should be based on human and nature. The way of design and life is far more necessary than the form. It is necessary to create a home environment with temperature around human nature and emotion.
Home is the space for emotion.
Home decoration design is to guide each family to create a unique home life style by combining their own habits and aesthetic through the professional design.
Our S&S Design Dtudio designers believe that:
As a home, emotion is more touching than decoration. Our design focuses on the true life, like the life full of temperature and sunshine.
S&S Design adopts the working mode of team cooperation, and provides customers with complete and direct and effective interior design services by combing customer needs. The works of Sanshi design have won domestic awards for many times, and are concerned by domestic well-known platforms, magazines and network media reports.
S&S Design Dtudio
版权声明
13957575827
以上案例图片未经同意,请勿擅自使用,侵权必究!
三石设计部分作品回顾
(请点击图片了解项目更多内容)
四季园—阳光四季
曹江臻院—心纯
绍东湖庄园—Please Myself
绍职院—从心
天御花园—质·朴
山水名家—光·景
宝业四季园—首发—阳光四季
金地澜悦—暖灰
绍职院—激情阳光的岁月
金色丽都—生活是空
天御花园—都市人的一隅偏安
百合花园—家与生活
大坂风情—最美好的时光就是用来挥霍的
龙湖源著—80 后的裸家生活
客服
消息
收藏
下载
最近





































