查看完整案例


收藏

下载
每一个全案,都是私人订制 Customized for each project
视频来袭。。。。
石纹引领深调与细纹揭开了大自然的神秘面纱,于深色饰面的映衬下焕发清新宁静的气质。和谐排序,渐进延伸,通过几何形态的启迪再次强化空间的韵律。
▼项目信息
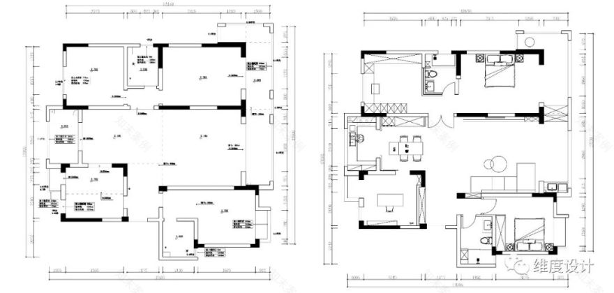
项目名称:富丽华佳苑
项目面积:190㎡
项目类型:全案设计
项目风格:轻奢简约
项目设计:维度设计
▼设计解析
这是一对新婚夫妇的居所,还有一只可爱的小猫咪“满仓”。业主喜欢年轻富有活力且简单时尚的生活氛围,所以我们希望打造出宽敞而不拘谨的生活空间。
客厅
Living room
入户鞋帽柜的设计既满足实用又追求视觉的盛宴。
客厅设计主要是从功能和整体空间出发,减少了很多非必要的元素,但它又不是简单的堆砌元素,而是通过创新思维营造的空间氛围。地面铺设的木地板砖配上米色地毯,时尚中不失家的温度,点缀复古红色柜体,增强了空间的视觉丰富性。
"满仓"出镜
高冷的眼神表示配合你们人类很给面子啦!!!!
餐厨
Dining room & Kitchen
开放后的厨房解决了原本空间狭小的既视感,在餐厅的一侧增加了操作台和柜体,增强了厨房的功能性需求。
餐厅和书房用一面移门分隔开来,一眼即见的空间结构隔而不离,在保持连贯的基础上,使空间即通透又可具有隐蔽性。让居住者在进入空间的第一时间便摒弃繁杂的思绪,回归心灵的平静。
开放式的中岛设计与厨房关系紧密,营造出专属的空间体块,为餐厅赋予“交流”的属性,增加生活的互动性。
主卧 Master Bedroom
主卧的整体设计,白色的绒布床头点缀以棉质灰色床品,在低饱和度的木地板上,明与暗、刚与柔和谐共存,于视觉上形成舒适感,打造了一个舒适宁静的睡眠空间,使人放松身心。
半玻璃隔断的卫生间为平淡的生活增添几分情趣。书房 The study
高度抽象的艺术主义,无拘无束的主张,去物化的表现形式,重新定义空间的边界感。
卫生间
Bathroom
卫生间铺贴白色的瓷砖让内心也变得平静而舒缓。布置一款卡通形状的镜子,简洁中带来一丝童趣。
THE END
我们是一家致力于打造专属私人空间的全案设计机构,专注空间塑造,为生活本身而设计。
【欢迎咨询】
Add: 济宁市任城区任城大道中德广场 A 座 612
【关注我们】
客服
消息
收藏
下载
最近


















