查看完整案例


收藏

下载
每一个全案,都是私人订制
Customized for each project
生活如一块浮冰,无论脚下经历多少波折和洪流,柔软而丰富的情感如闪烁的光芒,将我们带到那应许之地,在那里有诗意与浪漫,有新生,有纵情生活的畅快,也有意想不到的自由。
▼
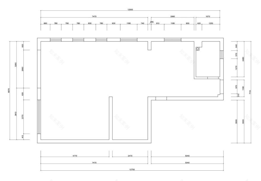
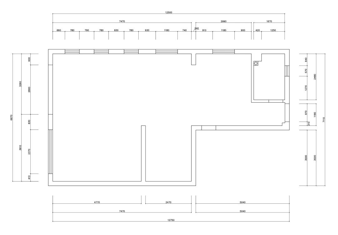
项目信息
项目名称:桂雨江南
项目面积:330㎡
项目类型:全案设计
项目设计:维度设计
▼设计解析
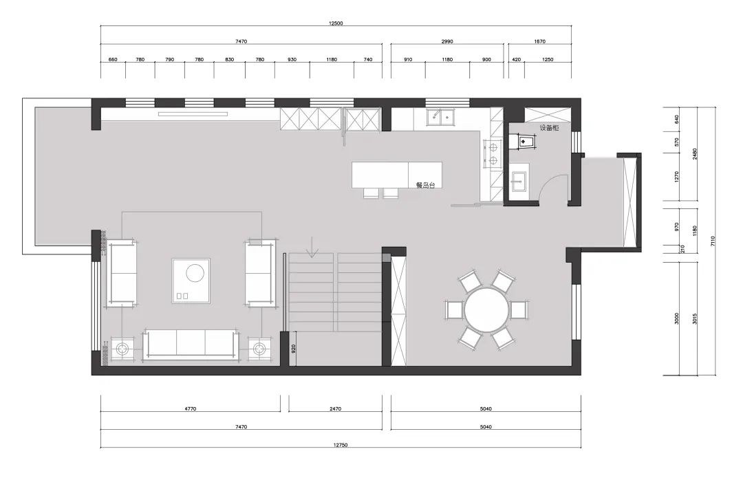
色彩,决定了空间的调性和灵魂。在所有色彩中,中性色是最为柔和的视觉感知色调,节制中饱含亲切感。因此,设计师在空间中大面积使用了以木色、浅灰为主的中性色调,同时搭配少许石材配饰、绿植提亮点缀,于温润中平添了骨力与温度。
客厅
Lving room
·
在这样的空间里,哪怕只是静静蜷缩于沙发靠椅,任由日光温存,微风抚触,时光也即刻变得美妙而情深。
厨餐厅
Dining room
·
客餐厅和厨房一体化设计,视觉更显大,空间更有层次感,也营造更好的互动性与社交可能。
在设计家里所有的结构和造型时,设计师尽量从必要性、完整性出发,让设计回归生活本质。结构,是最简单的美学之一。设计的自信源自内心的丰盈与充实,不用过多的修饰。
卫生间
Bathroom
·
用心甘情愿的态度,过着随遇而安的生活。遗憾,随风散去,美好,留在心底。给心灵一米阳光,温暖安放,心若向阳,无谓忧伤。
THE END
▼
我们是一家致力于打造专属私人空间的全案设计机构
专注空间塑造
为生活本身而设计
【欢迎咨询】
Add:
济宁市任城区任城大道中德广场
A座612
【关注我们】
▼
客服
消息
收藏
下载
最近
















