查看完整案例


收藏

下载
YIBEI DESIGN SUZHOU
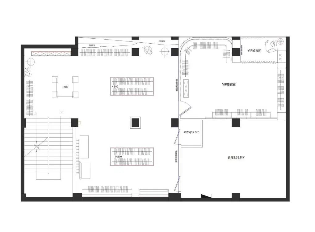
平面布置图▼
空间与距离
Space distance
大幅度渲染色彩,将黑色与白色的比例调升至最大。
Large-scale rendering of color, the ratio of black and white to the maximum.
色彩的布局恰到好处,加入适当的其他颜色作为调剂,在缓解空间氛围的同时,也带来了色彩空间的升华。
The color layout is just right, add the right other colors as a mix,In easing the atmosphere of space, but also brought the sublimation of color space.
冷静而优雅
Calm and gracefu
将空间自身的奢侈发挥到了极致,从点开始,经历过线,完成为面。
The luxury of space itself to the extreme.Start at the point, go through the line, and complete the surface.
空间与距离
Space distance
明亮与纯净
Bright and pure
大面积金属元素 简约硬朗,极致延伸的未来感空间在致敬重庆精神
A large area of metal elements, simple and strong, the ultimate extension of the sense of the future space in tribute to the spirit of Chongqing
弧形与线条融入
极
简风,增加空间情绪的表达.
ARCS and lines blend into the minimalist wind, increasing the expression of spatial emotion.
分割与建立
Divide and build
-END-
长按关注
最专业的的全案设计,施工,软装
欢迎后台点击预约服务
我们将在第一时间与您联系
苏州市工业园区李公堤三期9幢103室(瑞贝庭酒店旁)
一 贝 设 计 | Y I B E I - D E S I G N
客服
消息
收藏
下载
最近




























