查看完整案例


收藏

下载
今日分享的是现代中式禅意风格设计
设计师来自业之峰装饰集团
点击下方蓝字了解更多:
【家装委成员单位 · 实地走访录】这就是业之峰!
禅椅
现代中式禅意风格
东方禅意风格庭院的代表是中式泼墨山水式的庭院和日式洗练素描式的庭院。中国传统庭院受中国传统哲学和绘画艺术的影响,具有代表性的有江南私家园林,岭南园林等等。此类庭院重视师画情意,创造意境,达到了于情与景,情景交融的境界。
禅意家居风格是近年流行的家居装饰风格之一,它不同于欧美风格的奢华张扬,不同于田园风格的自然清新,比起中式风格的硬朗,它更偏重于讲究一种意境,超然脱俗。'清逸起于浮世,纷扰止于内心'。走进房间,就是走进了另外一种生活状态,时间都将缓慢下来,停止思考过去,一心沉浸在自己的世界。
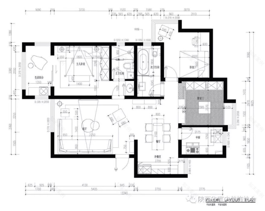
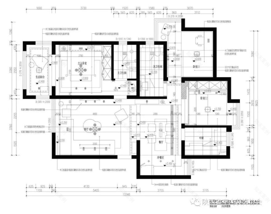
效 果 图 及 部分施工图:
设计说明:
业主为一个四口之家,思想活跃,品位高雅,对传统文化有很深厚的理解。本案在设计手法上,突出了文化人温文尔雅、平和理性的特点,用原木的整体色调,表达业主的温馨典雅。在设计风格定位上,吸取了中式风格的一些经典元素,即不庄严沉重,而又恰到好处地把温润如玉之气渗透到每个角落,既突出空间本身的自然优势又适当彰显业主的个人品味。
“老板电器杯”陕西省第十届室内设计大赛获奖作品
作品类别:住宅空间 实例类
获奖奖项:铜 奖
项目名称:西安景寓学府住宅设计方案
设 计 师:高 旭
参赛单位:榆林业之峰装饰工程有限公司
项目时间:2018年4月
项目面积:121.95平方米
工程造价:35万
设计风格:现代中式禅意风格
主要用材:木地板、大理石墙砖、木饰面、石膏板、乳胶漆
主创设计师 高 旭
参赛图版
大赛简介
陕西省室内设计大赛是陕西室内装饰协会常设的一项专业性设计大赛,是陕西省室内装饰行业的最具有权威性、专业性和影响力的设计大赛,受到了全行业高度关注和社会各界广泛参与。大赛在推出设计新锐和精英、扩大设计团队及个人的公众认知度、加强“设计创新”等方面获得极大的社会影响;获奖团队和个人作品带来“设计驱动”,在创意设计、室内装饰、关联产业等领域取得了显著成效。该赛事进一步提高了我省室内设计水平,推动了全行业和相关产业的创新发展。
2018年陕西省第十届室内设计大赛,由“老板电器”独家冠名赞助。
陕西省室内装饰协会家装专业委员会
地址:大明宫建材家居·钻石店
- END
-
客服
消息
收藏
下载
最近

















