查看完整案例


收藏

下载
今日分享
陕西省第十届室内设计大赛银奖作品
公共空间方案设计——
西安沣滨水镇花间堂度假精品酒店
“老板电器杯”陕西省第十届室内设计大赛获奖作品
作品类别:公共空间方案类
获奖奖项:银 奖
项目名称:西安沣滨水镇花间堂度假精品酒店
设计团队:
郭天喜 黄 涛
刘 坤 马 涛 李广一 陈国丽 阮 超
参赛单位
:西安大彩设计工程有限责任公司
主创设计师 郭天喜
以下为效果图及部分施工图
设计理念:
西安花间堂度假精品酒店位于沣滨小镇——诗经里。沣河两岸是周朝沣镐京畿之地。诗经中的《灵台》、《文王之声》、《蒹葭》、《终南》等篇章采集于此区域。
透过花间堂让世界感受中国之美。中国是诗歌的国度,诗经又是诗的源头。诗三百,一言以蔽之,思无邪。因此,我们要打造一个品质无邪的度假村。整体风格透露出人文的优雅的质朴感、自然的轻松的随意感、活泼的友好的亲切感。
此项目占地约30亩,建筑面积约10000平方米,共81间客房。项目之初,由我们室内设计单位与建筑设计单位共同推敲项目定位、用地规划、建筑初步。由我们完成室内布局,再由建筑设计完成建筑外观,以保证室内外空间的整体性。
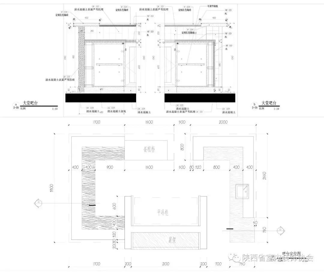
大堂前后景观自然、精致、优美。把接待台与水吧台合二为一,设在大堂正中央,把两边临窗留给客人。另外两侧一为主入口,一为大堂吧。这种布局突破了传统,又最大限度的统一了空间的内外关系。
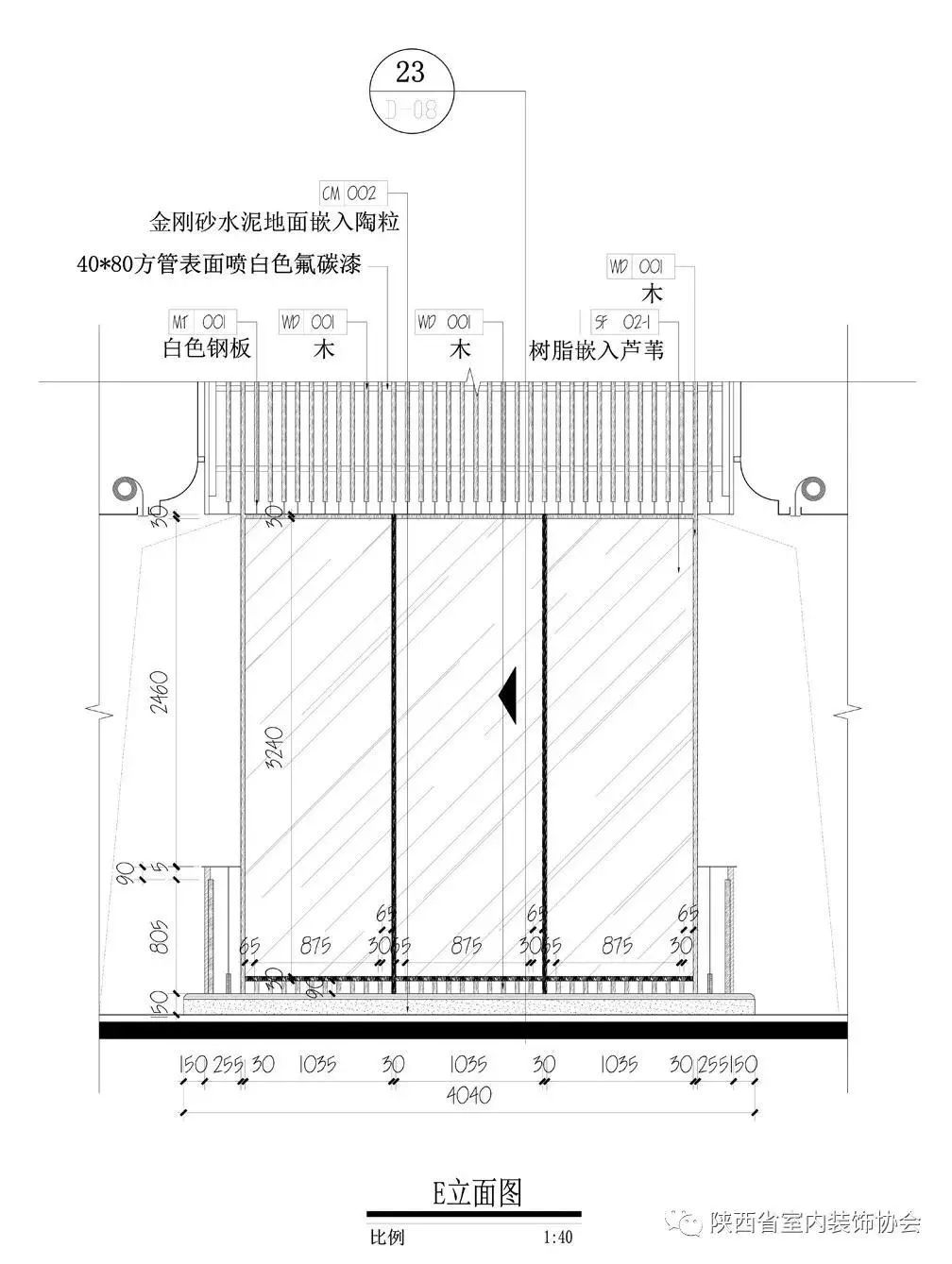
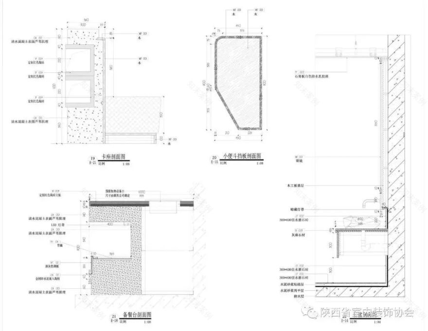
材料体系是本项目的重点。主要材料为水磨石、白色腻子、砼、木材和红色粗陶。
全案地面采用水磨石,虽然建筑空间变化丰富,但材质选择单一,因此整体感强。地面中夹杂了大量陶片,契合了周代的陶器用具。
在水镇选用芦苇做装饰材料恰如其分。把芦苇和其他材质混合形成了多种复合材料,用满了整个空间。例如白色墙面,把芦苇嵌入腻子里创造出了一想不到的美感:把芦苇与硬质材料结合做成模板,现浇混凝土,创造了非常质朴的软硬关系。
主题明确,紧扣无邪品质,去繁就简,去符号化,去佛去道,创造人与自然的朴素融合环境。设计之初,集思广议。一旦抓住中心,设计一气呵成。虽然设计周期近一年,但多半时间用于细部深化和材料研究。
参赛图版
大赛简介
陕西省室内设计大赛是陕西室内装饰协会常设的一项专业性设计大赛,是陕西省室内装饰行业的最具有权威性、专业性和影响力的设计大赛,受到了全行业高度关注和社会各界广泛参与。大赛在推出设计新锐和精英、扩大设计团队及个人的公众认知度、加强“设计创新”等方面获得极大的社会影响;获奖团队和个人作品带来“设计驱动”,在创意设计、室内装饰、关联产业等领域取得了显著成效。该赛事进一步提高了我省室内设计水平,推动了全行业和相关产业的创新发展。
2018年陕西省第十届室内设计大赛,由“老板电器”独家冠名赞助。
陕西省室内装饰协会官方网站:
陕西省室内装饰协会家装专业委员会
地址:大明宫建材家居·钻石店
- END
-
客服
消息
收藏
下载
最近
































