查看完整案例


收藏

下载
👀
✨
“
在各路美学思潮竞相展露的今天,东方与现代依然是设计师无法回避的大势。东方的雅致清逸,现代的时尚简约,都让人醉心沉迷,而新中式,集齐了东西方美学灵性,实现不同审美和需求的回归。
”
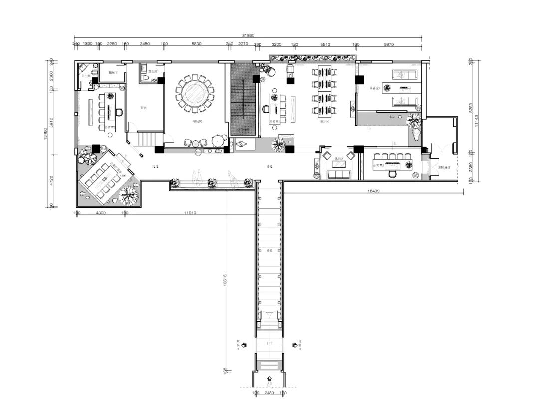
作为当地前三甲家装公司的高端子品牌,在总部内打造专注于设计服务的高端设计会所,特别设计18米多长的过厅及甬道,营造庄重的仪式感,平面布局中钻石形状的方案汇报室抬高300MM,尊贵无比。
空间划分上,运用了中国文化的“隔”、“障”、“框”、“透”等手法来分隔组合空间,同时紧密结合功能需求进行分区,整体视觉流畅,半遮半掩隔而不断,避免了空间设计中的死角区域,保证空间之间的通透性和独立性以及连贯性,犹抱琵琶半遮面,中式传统元素为空间增添些许文化意蕴和趣味,禅意无边。
大面积的素色水泥和深灰色砖构成项目基色,点缀浅原木色,使空间不再显沉闷。接近自然,贴近生活,还原生活,不需要表现,也无需去修饰,仅是我们心里所想,心念所需,是我们真实的自我感受,采用市场上随手可购的材料可有效减少采购时间和工程的顺利推进,快速将项目投入使用。
本案是以现代新中式风格打造的办公空间,用现代的设计手法演绎中国的文化意蕴,提取中国元素并加以简化和丰富,结合现代的文化和审美追求,用空间的语言来传达文化内涵。
品位文化,感悟生活,在这里寻求最合适的表达,打造一种追求完美、追求品味的生活态度。
项目地址:中国·桂林
设计主创:欧建书/周扬
项目状况:竣工
摄 影:欧建书
项目面积:418平米
设计主题、设计风格:中国风
关于
设计师
欧建书/周扬
桂林品之筑设计有限公司创始人/设计总监
中国设计【新桂系】发起人之一/副会长
广西高级建筑装饰设计师
中国装饰协会注册设计师
中国建筑学会室内设计分会会员( CIID )
近期作品
- END -
:
▼
客服
消息
收藏
下载
最近



























