查看完整案例


收藏

下载
带来视觉和触觉的双重体验,感受极致轻奢魅力。
0
1
本案设计师
0
2
案例背景
本案是云南洱海的一套 173㎡海景房,三口之家,业主想要私人会所的高级感,喜欢暗黑系轻奢风。
0
3
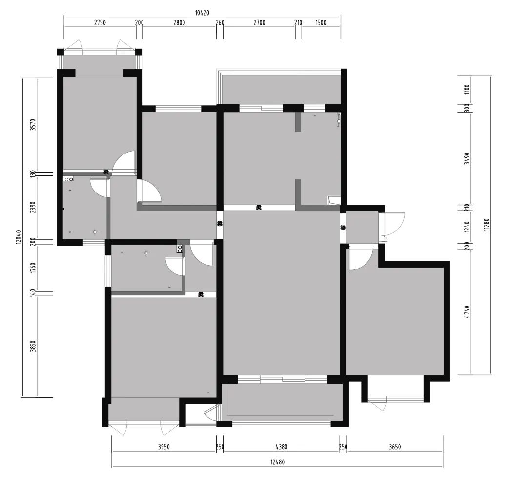
户型解析
优点:区域划分清晰、南北双阳台。
缺点:
1. 基本全是承重墙,墙体基本不能拆改。
2. 进门没有鞋帽柜。
3. 没有大的开放式厨房。
4. 没有亲子交流区/多功能房。
5. 主卧室缺乏收纳和衣帽间。
0
4
设计解析:此前业主联系了当地装企,但受结构限制,入户没有收纳,餐厨空间与客厅对立关系对于直接,后场没有会所的感觉,在与业主线上沟通后,对户型进行了优化,并多次调整,最后敲定方案,主要围绕入户、餐厨和卧室进行改造。
★1. 增加入户收纳;
★2. 增加餐厨区域的趣味性;
★3. 增强后场的私密性;
★4. 优化主卧动线,不辜负自然海景。
以下是两版具体方案布局:
方案一
1、入户卧室的门洞向内推,在入户处打造门厅区,增加收纳功能,对面墙放置收纳装饰板;
2、拆除厨房墙体,做 L 厨柜并在中间增加岛台,岛台和餐桌搭接,满足女业主烘焙的需求同时也让餐厨间更有趣味性;
3、拆除主卧卫生间墙体,台盆外置和床头柜组合,床和洗手间之间用屏风遮挡,做到三分离。利用墙体的改动,做出内嵌柜,床尾再增加一组衣柜便于收纳;
4、主卧对面北卧室,突破墙体阻隔形成开放空间,打造了多功能区。
方案二
1、入户卧室的门洞向内推,在入户处打造门厅区,增加收纳功能,对面墙放置收纳装饰板;
2、拆除厨房墙体,做双一字型橱柜加岛台餐厨,打掉窗户,也可以形成环绕动线;
3、拆除主卧卫生间墙体,南北扩大洗手间尺寸,划分处淋浴房,在入口处利用墙体的改动,做出收纳柜,床尾再增加一组满墙衣柜;
4、主卧对面北卧室,突破墙体阻隔形成开放空间,打造了多功能区。
0
5
效果展示(方案一)
客餐厅
效果设计参考了样柜科米森林,橡木实木贴皮的自然冷峻气息塑造了空间低调奢华的格调。客厅和餐厅整体采用了墙板+储物柜组合,外挂移门的设计为家的后场保留了足够的隐私,给予会所的私密感,空间更具整体性。
电视柜经典的对称设计,工整严谨,巴士移门灵动转换带来新奇视觉体验,藏露随心而定。为营造大气质感,开放格配置灯条,柔光效果与深色门板形成反差,增加了柜子的灵性。
墙板选用了同类材质,地板、沙发、落地灯采用了同色系,低调质感的灰色系运用,空间整体更和谐统一,橙、红、蓝的点缀,丰富了空间的层次性,在视觉上更显高级。
超大落地窗,岂能辜负美景,简约桌几,搭配舒适圆凳,一方惬意休憩场所,让人怦然心动。到顶阳台柜有藏有露,便于有序收纳物品。
落地效果
原厨房墙体被拆除,打造了竖厅以满足业主互动和社交的需要,L 形厨柜在中间增加岛台,岛台和餐桌搭接,宽敞的操作平台,流畅的行动路线,便于日常烹饪就餐。考虑业主喜欢烘焙,采用电器高柜内嵌蒸烤机,使用起来更便捷,整体也更美观。
餐边柜顶部开放格与客厅柜遥相呼应,增加了空间的关联度。为增加柜子的通透性,采用了玻门设计,在光的晕染下,柜子更轻盈生气。
落地实景
主卧
主卧改变了卫生间开门方向,并内嵌开放式衣柜,便于业主日常拿取衣物,柜内多规格尺寸设计,方便物品的合理有序收纳。
木石拼接的背景墙更有现代感和时尚感,平衡的视觉比例,呈现纯粹极简的设计感。台盆外置和床头柜组合,创意设计让生活更便捷。
多功能区
拆除原先卧室,与过道相连,利用柜子打造多功能区,此空间可作为衣帽间、家庭收纳区,也可作为亲子交流间,可根据实际使用来确定其功能。
穿行在空间的三维中,时光清浅,温暖四季,让人沉浸其中。杨艺通过设计工具,让业主感受到空间带来的松弛感,聚焦生活的本质。
想看本案例实景视频,回复“视频”即可获取
//
文:小新
图:嚼红草
客服
消息
收藏
下载
最近
























