查看完整案例


收藏

下载
有人喜欢晴天,有人喜欢雨天,有人喜欢花,有人喜欢树,喜欢就是最好的样子。
0
1
本案设计师
0
2
案例背景
本案业主是一对年轻的情侣,房子做为婚房使用。
业主思维跳跃,很有个性,喜欢深色系,整体设计要高级、大气。
0
3
设计解析
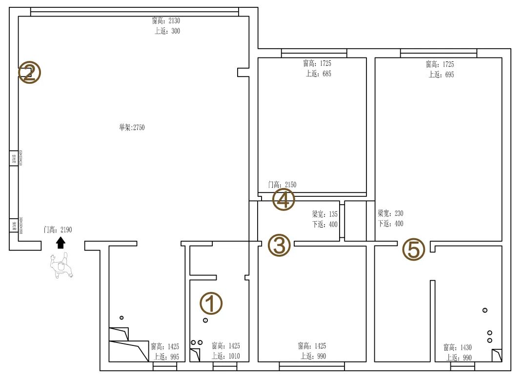
根据业主诉求,方案做了以下布局:
➤①深色系对采光要求高,故拆除了原客卫,扩大了厨房使用面积,餐厨一体设计,更能有效利用空间,家的前场没了墙体阻隔,整体更通透、明亮,再配以深色系,空间更显大气;
➤②拆掉了客厅与阳台间的墙体,横厅的设计,空间宽敞明亮;
➤③改变衣帽间的开门方向,双一字型的柜子,储物能力变得更加强大;
➤④改变次卧的开门方向,让行动路径变得更顺畅;
➤⑤原客卫被占用,考虑日常生活的使用,挪用了主卧部分空间,设计成客卫,干湿分离的考量,让使用更便捷。因业主对生活质量要求更高,因此重新规划了主卧的睡眠和洗漱区,并为业主设计了浴缸,能够更好地享受生活。
整体色调以高级灰为主,增加橙色点缀,为生活增添火热的氛围,更有烟火气息。
0
4
效果展示
客厅 living room
通过减法设计,回归简单生活。目之所及,简约、干净,入户柜连接储物柜,满墙设计高级大气,门板采用了灰色麻面,细腻的肌理,增加了质感。不规则开放格的设计,不仅考虑了实用性,而且增加了美观度,让柜子看起来通透灵动、更具呼吸感。为中和深色柜子的厚重,沙发、书桌都采用了浅色系,深浅的巧妙搭配,让空间更有设计感。
客厅与阳台打通,整面落地窗的设计,让空间拥有良好采光。客厅增加书房功能,为业主的生活创造更多惊喜,开放式空间也更有利于家人间的情感交流。
客厅柜利用石膏板进行造型设计,黑白交错,极具艺术性,清冷气质,不落世俗。由抽屉组成的落地电视柜,简单实用,与悬挂电视背景墙相呼应,形成凹字型,增加了视觉层次感。餐 厨 区 Kitchen area
餐厨区纳入原客卫,空间变得更宽敞,生活更加便利。深色系设计,沉稳有格调,橙色点缀,增添活泼气息。餐桌+岛台设计,多样形式的打造,增强了使用体验。
餐边柜与厨柜相连,形成 U 型,行动路径顺畅,符合生活习惯。餐边柜搭配玻门再配以灯带,光影渲染高级又迷人。开放格预留了插排,可放置小家电,减轻了台面的压力。
包冰箱高柜的设计,保证了空间的完整性,吊柜的设计,增加了空间的储物能力。利落、整洁的设计,让人倍感舒服。
主 卧
Master bedroom
极简的设计,清爽的基调,塑造了安逸的休息环境。为了增加空间的氛围感,背景墙利用灯带设计造型,浪漫温柔,在灯光的作用下,丰富了空间的层次,简约又时尚。半高暗调墙板的添加,强调了本案的主题。次卧 Secondary decubitus
从长远角度出发,本空间大概率是给孩子使用,因此在设计时,把学习空间考虑在内。书桌与衣柜连接,L 型造型,将空间利用最大化。延续整体设计风格,深色系柜子更显时尚大气,配以浅色系家具,现代感十足。当然随着孩子年龄的变化,可通过软装家具更换空间氛围,让孩子更好地成长。
衣帽间
Cloakroom
该空间作为家庭“储物中心站”,两组到顶的柜子承担了大半储物压力。根据业主诉求,多元的设计形式满足悬挂与叠放的需求,平开门+玻璃门的搭配使用,整体更具灵活性。空间还纳入洗衣机和烘干机,让业主换衣、洗衣更便捷。袁驰用纯粹的美学,打造主次韵律与整体格调,回归简单的设计语言,暗系高级质感,构筑出值得长久相处的舒适环境。// 文:小新 图:嚼红草
客服
消息
收藏
下载
最近

















