查看完整案例


收藏

下载
老舍先生说:生活是一种律动,需有光有影,有晴有雨,滋味就在这变而不猛的曲折里。
就像空间里的高低转换、开与合,变则新,有容则大,在这一方独立的天地,追求自我生活的温度和精神内里。
本案设计师将传统韵味与当代情调相互融合,含蓄又不乏奢华,内敛却不失张扬,为居者带来优雅和谐的空间体验,唤醒内心深处的眷恋与渴望。
▌项目概况:
项目类型:红墅湾
设计地址:高新区华贯路 666 号
项目面积:400㎡
设计单位:本原设计事务所
01客厅
LIVING ROOM
天朗气清,惠风和畅,由玄关入户进入一层客厅,流畅的布局与简洁的线条组合,使原本就敞阔的空间变得更加的轻盈通透。在赋予空间无限想象的同时,让人感受到家的温度与美好。
02茶室
TEAHOUSE
中国人的古典情节,总是浸润着山、水、松、石;青苔翠绿,暗示生命无声滋长。茶室取悠山远水为画底,展陈各式茶具于上,提炼的东方元素传递美学意识的认知和感悟。
03 厨房餐厅
KITCHEN & DINING
人间烟火,诗意茶味,由唇舌沁入人心的朴素情怀,其中境界却及山河远阔。
简约现代圆形餐桌同造型干练的明式圈椅组搭,在古与今、东方和西方的兼容并蓄中寻求平衡,别开生面。
04书房
STUDY
归心处,静看花开花落,闲数云卷云舒。书卷辞章的描述读起来让人心旷神怡,映射到空间中,更是赏心悦目。
05 女儿房 DAUGHTER’S ROOM
女儿房的设计充满了活泼的气息。白色调中加入藕粉色,线条圆润、质感软糯的家具透露着甜蜜的柔软。
自然光引入室内,通透而舒展。器物收藏,悉数尽显,肆意生长的绿植给静谧的空间轻抹一份清新灵动的情绪氛围。
06客房
GUEST ROOM
盥洗区一台,一镜,呈现出极简的雅致之美,散发出精致舒适而又惬意从容的生活气息。
07主卧
MASTER BEDROOM
走进主卧,自然的滋养贯通其中。灯光垂影,安然入梦,梦中亭台楼阁,屹立于山林间,似是历经洗礼,静静守望山林,述说古老的时光故事。
衣帽间铜金织物外衬玻璃而做衣帽间柜门,妙在若隐若现,暧昧不明的视觉营造;统一色调下“离散化”色彩精研,配合品质严苛的细节把握,由内而外散发端恪特质。
08 休闲区 RECREATIONAL AREAS
地下一层会客厅是朋友小聚、闲聊的一方天地。家有一隅,安放此与亲朋共鸣欢聚的精神空间,是难得的奢享。空间设计色彩与起居室的搭配相延续,起居其间的共享与沟通更多样。
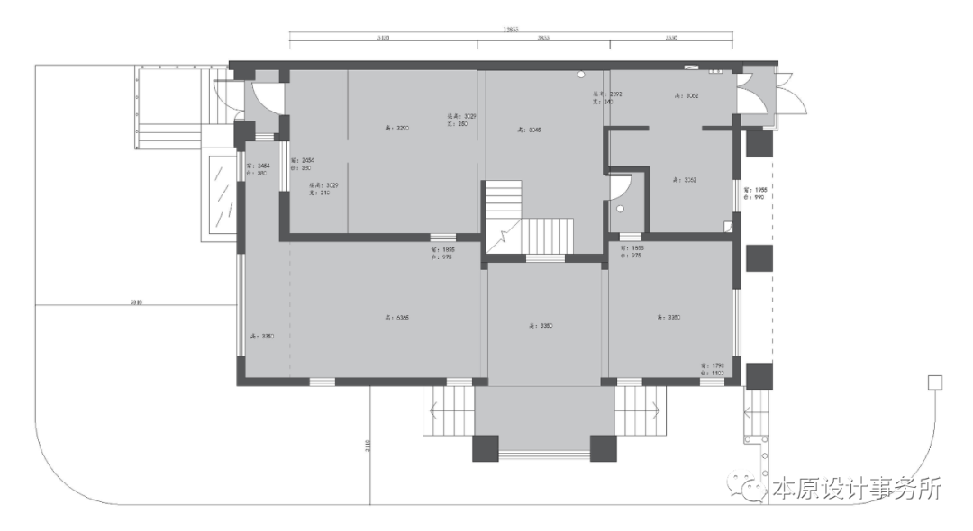
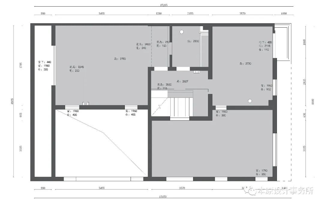
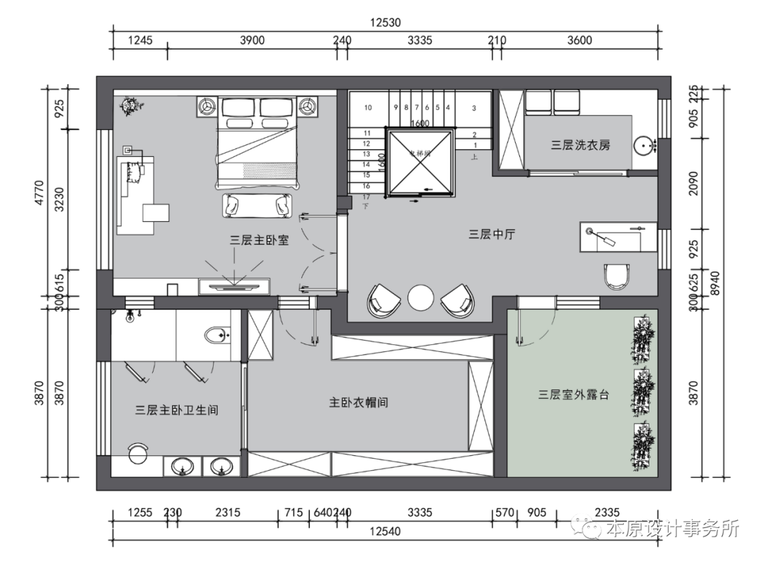
09平面布局图
LAYOUT PLAN
△一层原始图
△一层平面布局图
△二层原始图
△二层平面布局图
△三层原始图
△三层平面布局图
△负一原始图
△负一平面布局图
戳原文,了解更多本原作品!
客服
消息
收藏
下载
最近
































