查看完整案例


收藏

下载
“食物是能量,是治愈,是珍贵
人间的味道叫做烟火气。”
火锅是极具特色的餐饮形态,新鲜食材和饮食方式带来简单纯粹的快乐。
抛弃繁琐,抚慰心灵,在安静温暖的空间中,与友为伴,在食物氤氲的香气中,围炉畅谈。
聚月圆,万事圆满,皆为美意,项目以此为立意,并承托甲方对于项目/对于所有来此宾客的期许。
-
设计元素
DESIGN ELEMENTS
设计师将欢聚热闹的火锅文化氛围置入到现代精致的餐饮文化内,让空间呈现出现代精致的视觉感受,又吻合文化基因的传承。
在这样的环境中,火锅也有了艺术效果,恰似“围炉聚饮欢呼处,百味消融小釜中”。
-
项目展示
PROJECT DISPLAY
01
前台
RECEPTION
推门而入,稍作驻足,前台高挑通达的感受,营造视觉冲击力。经典而精致是空间设计的主要核心关键词,以古铜色金属搭配胡桃木的方式,让整体至细节都有很强的质感呈现。
02
楼梯
STAIRCASE
提取铁艺、⽯材等城市街道常见的材料,塑造城市的熟悉感,同时去除街道本⾝的杂乱感,打造⼀个现代舒适的空间氛围。通过不同形式的灯光,增强灯光的丰富性,提⾼环境的氛围感与层次感。
03
散座区
SCATTERED AREA
灯光氛围的舒适度直接影响食客情绪与就餐欲望,吊灯灯光的点缀,看似不经意,却最能衬托出“精致”之感。照射的灯光丰富了空间层次,是生活需要的仪式感,被点亮时便开启了光影之下的故事。
04
调料区
SEASONING AREA
流线型选料区,动线流畅,方便拿取物品。低饱和度的色彩提升了环境的包容性,使食客沉浸在味觉、嗅觉、视觉甚至听觉触感的满足中畅想,期待人生的美好享。
05
包厢
PRIVATE ROOM
每个独立包厢设计各具特色,觥斛交错间,尽显设计师对精品和细节的执着追求。运用灯饰、壁布、桌椅、盆景等空间元素,从细节处丝丝入扣传达现代风情。
欢颜得所憩,美酒聊共挥。将聚会推向狂欢的,是新鲜食材带来的味觉享受。食客们尽享舌尖味蕾上的满足,情绪亦可得到自由释放,尽兴、尽情。
06
卫生间
TOILET
卫生间延续用空间整体风格,优雅的照明提升了空间质感。
07
门头
SHOP SIGN
几何线条组合而成的门头区域,简约而又充满秩序感,绿植景观的巧妙融合,成为整个区域的点睛之笔,且自带辨识度。
-
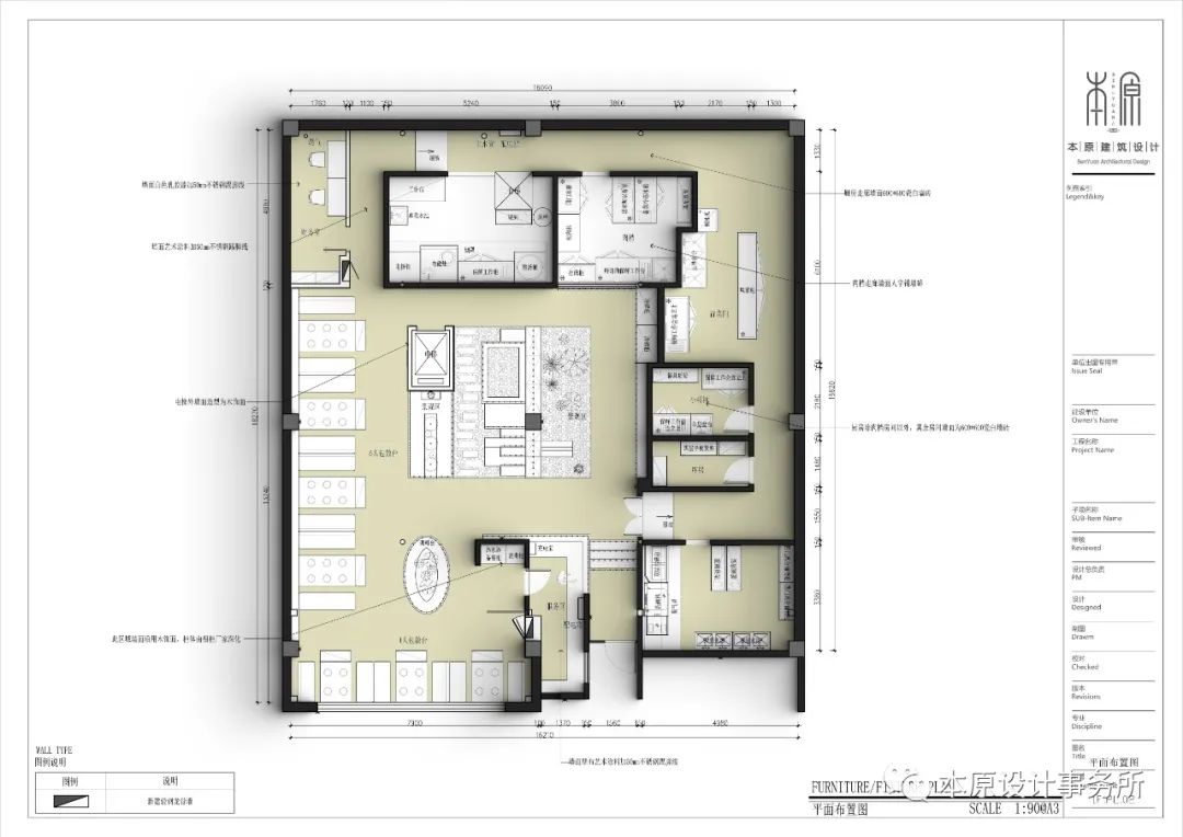
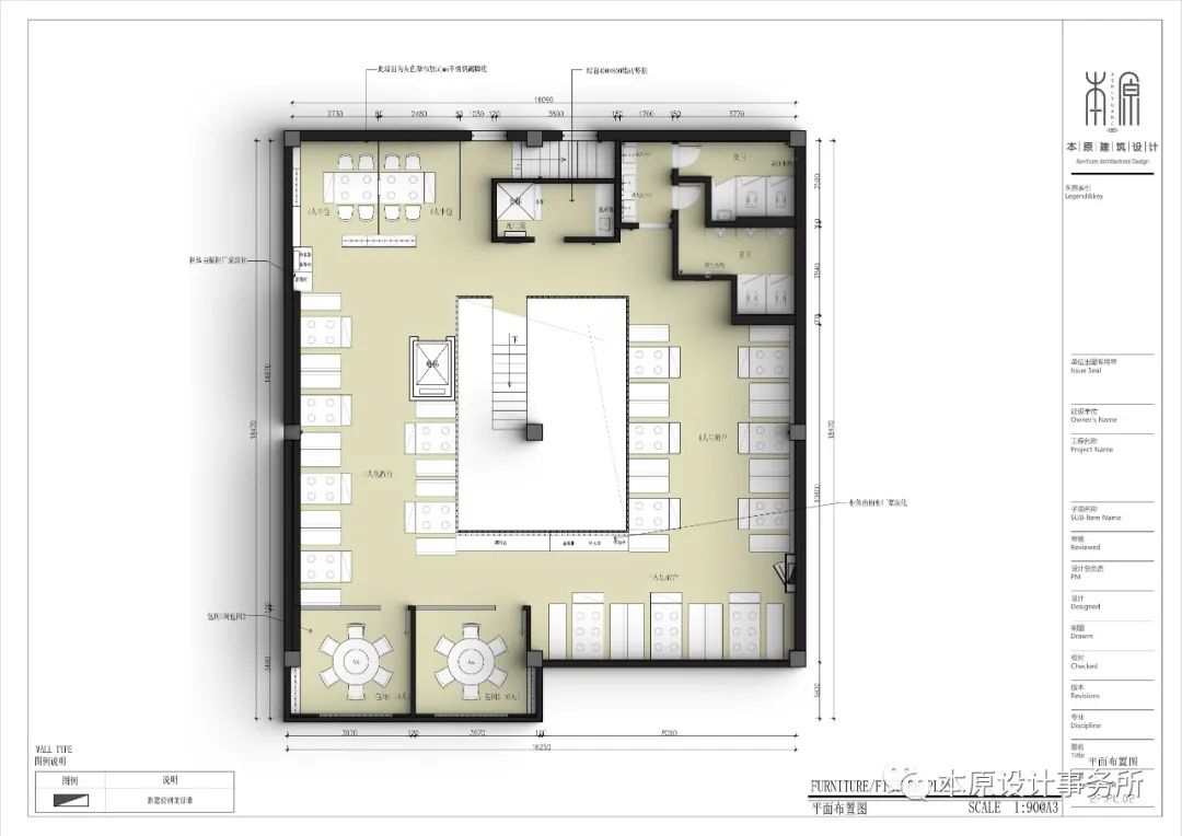
平面布局图
LAYOUT PLAN
△一层平面图
△二层平面图
△三层平面图
戳原文,了解更多本原作品!
客服
消息
收藏
下载
最近
























