查看完整案例


收藏

下载
用东方艺术演绎茅台酱酒文化
在典藏中看见跨越千年的传承
让东方的传统美学重回当代人的生活
01
项目概述
Project Overview
本案位于
崂山区海江路6号
是一处茅台酱酒文化体验馆,集茅台酱酒体验中心、
茅台
酱酒文化展馆、
茅台
酱酒收藏陈列展示厅、
茅台
酱酒文化主题餐厅于一身。
▌项目概况:
项目类型:文化体验空间
设计地址:崂山区海江路6号
项目面积:220㎡
设计单位:本原设计事务所
02
项目理念
Project Concept
项目以水的概念,将传统美学与现代生活兼容并蓄,用东方艺术演绎酱酒文化。以传统气韵之美,海纳百川兼容并蓄,将东方意境,当代传达。
酱酒的酿造环境和时间工序的文化、艺术、生活底蕴
↓
强调酱酒特有的时间和空间感体验
↓
酱酒独特记忆点和价值点
↓
青 山 赤 水 岁 月 陈 酿
↓
呈本自然,醉染东方
茅台酱酒主题相关的,文化艺术生活体验。
03
项目分享
Project Sharing
活动&展示空间
时光之酿 多元融合
茅台醲酿溢醇香,玉露樽盛滴滴芳。设计师根据茅台酒传承经典的特性,运用具有历史感的深色为主色调,带动拉伸整体的高级感以及历史沉淀感,以凸显茅台酒在历史发展中沉淀的文化底蕴。
表于形,意于神。一步一景,皆是故事。以低饱和度的色彩质感在具有强烈秩序感的空间中,把握陈设尺度比例营造舒适空间。
空间内珍藏跨越近十多年不同年份的茅台酒。设计师采用传统展架以及更具有观赏价值的现代单独展柜来作为展台,将藏酒瓶身细节完美展现,实现观赏效果与展示效果都兼备的设计效果。
餐饮&会客空间
品味初心 尊享私宴
圆者为和,东方文化的独特理念就隐藏在这饮食的形制之中。会所的包厢布局满足了数十贵宾的就餐要求,让宾客在绝佳的意境中交流品味酱酒文化,尽享美食与佳酿在舌尖上的美妙碰撞。
燃一线香、沏一壶茶,与好友对饮,偶寄闲情,暂忘尘嚣。空间中实木的运用,在于营造一种淡雅古朴的空间感,低饱和度的色彩可以让茶室空间呈现出一种纯粹、淡雅、含蓄的格调氛围。
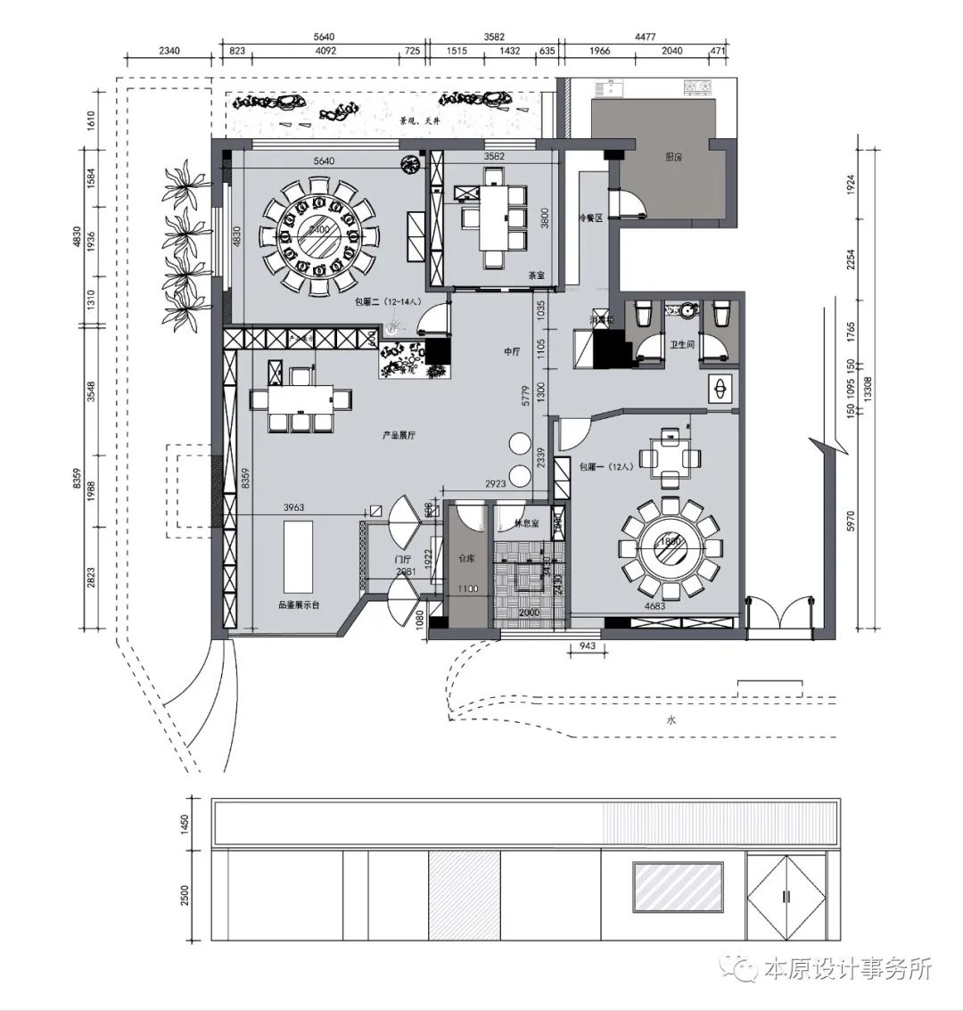
平面布局图
艺术酿造 沉浸式体验
戳原文,了解更多本原作品!
客服
消息
收藏
下载
最近


















