查看完整案例


收藏

下载
简约空间
ALAMO.DESburo 设计新作,152㎡的顶层住宅,业主是一对年轻夫妇和一个孩子。一个开放的布局,自然精致的柔和,光线丰富,彰显了一种高品质的生活方式。
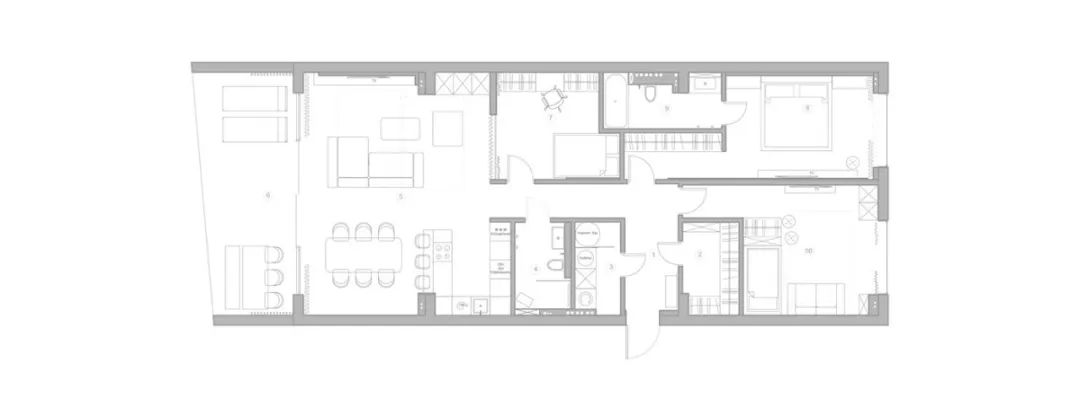
平面布局▽
EugeneTchaikovsky 等设计师根据业主的需求组织空间,新布局包括宽敞的起居厨房区、客卧、带浴室的主卧室区以及一间儿童房。
室内的配色方案基于温暖的色调,木材和纯粹的几何形状,电视背景和厨房岛台的深色石材,营造出一种舒适氛围。
室内的通风感觉是通过布局创造的,一个实用的岛台,既方便用餐,也提供存储空间。
这个客卧是业主特别要求增加的,但没有自然光线,因此设计采用玻璃隔板来解决了此问题,并能够用旋转导轨将其隐藏。
对家的第一印象从入口开始,除了浅色和奶油色调,这个门厅的和谐比例和几何形状体现业主的理性和专注。
在卧室设计师中利用了高级灰为主调,安逸而舒适的铺陈,似乎在强调空间的睡眠属性,没有过多冗余和浪费的设计语句,也没有无谓的造型,一切都是干脆利落的。
目前,这个家庭中只有一个小孩。在这方面,儿童以中性色调设计,该配置的形成能够随时为两个孩子重建。
在这间浴室中,强调简约舒适,巧妙运用暖色和冷色,给室内带来了独特氛围。
PROJECT TEAM
精彩·回顾
集艾新作 | 意式轻奢样板间
【大师新作】顶级的餐厅·别具一格的海派风情
CCD 新作 | 上海某高端酒店 · 预计 2025 年开业
CCD 最新超级豪宅项目
CCD 新作 — 獨特個性的冒險家 !
WJID 维几新作 | 武汉 · 湖畔雲庐
极致奢华—深圳瑰丽酒店 2025 年开业
“摩登风潮”+“海派美学”·周舍餐厅
2022 名师「PPT 软装搭配」方案!
最新邱德光公寓·豪宅厨房研究与实践!
合作/投稿
AnLe010
欢迎大家将火车头设计设为‘星标’,第一时间接收高端设计精选内容。
点击阅读原文,查看更多最新设计素材!
客服
消息
收藏
下载
最近











































































