查看完整案例


收藏

下载
安静优雅
Olga Paliychuk 新作,Yevhenii Avramenko 摄影,这套公寓面积 156㎡,业主希望他的房子安静优雅,同时又有着自身独特品味。
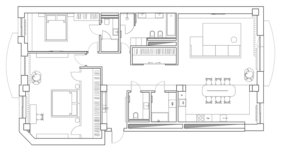
平面图▽
在这个设计中,设计师的主要任务是创建宽敞的房间以及从走廊到厨房起居室的开放流动空间。很快与业主意见达成一致,一直到完工,方案几乎没改变。
根据空间和客户生活方式的特点,创建了具有 60 年代灯光元素的简约内饰,镶入现代手法与时尚感,有趣的细节营造出神秘的氛围。厨房、起居室、走廊的色调与卧室相呼应,黑色家具与沙色墙壁形成鲜明对比。
客厅光线充足,黑色、墨绿色、浅灰色和原木所营造的优雅基调统摄整体风格,使得整体空间纯粹、安静、不张扬,具有微妙的视觉感知力。现代家具的排布节奏轻快、灵动,点润日常生活的理想场景。
复古,带一丝冷淡但又不失整体的和谐...安静,简单。简洁的造型衔接空间视觉上的延伸,最大的实现空间的灵活性与可观赏性——做到“无界”又“极致”。
过道,干净利落。黑色和浅灰色的墙面搭配,相辅相成,体现最本质的材质美感,营造空间的自然、恬静。
这个公寓项目的卧室采用柔和的中性色(米色)为主调,并带有对比的石墨元素。木饰面墙将更衣室与卧室区分开,而有色玻璃嵌件可使自然光通过。墙上的石墨条可以收集所有黑色家具元素,将它们隐藏在视觉上,使空间更加简约。
卫生间以灰白色的搭配粉色,空间上更显温馨。
浴室,高级灰与砖红色的融合,给人一种复古和梦幻之感。
设计师 Olga Paliychuk
Olga Paliychuk,Paliychuk Olga Design 工作室的设计师和创始人,从事各种规模的室内设计,从小型公寓到私人住宅,以及公共空间的室内设计。创造最实用的人体工程学空间是非常重要的设计。重视室内的空间,线条和比例的纯净。遵循的主要原则是简洁美学,不要有不必要的细节。在 Olga Paliychuk 看来,简约主义是反映现代生活精神的风格。其他佳作 B_apartment
这套公寓面积 150㎡,结合现代主义的美学风格,线条流畅简洁,色调柔和,细节搭配、高级灰色彩装饰让整个空间凸显优雅、自在,提升了空间的格调。
Minimalistic & ascetic
这套小户型公寓,面积 40㎡,在这个冷淡风的极简空间里,设计师通过色彩与家具的搭配,展现了极简主义的美学理念,这里小巧精致,复古且优雅。
精彩·回顾
极致奢华—深圳瑰丽酒店 2025 年开业
“摩登风潮”+“海派美学” · 周舍餐厅
2022 名师「PPT 软装搭配」方案!
最新邱德光公寓·豪宅厨房研究与实践!
李想×泡泡玛特丨打造梦幻潮玩天地!
CCD 新作 | 曲線流光,繁華似“井”
矩阵新作 | 一个理想的奢华居所
15100㎡“民国范儿”顶级酒店设计 【江河设计新作】
本白设计 | 180㎡简约大平层,经典黑白!
合作/投稿
AnLe010
欢迎大家将火车头设计设为‘星标’,第一时间接收高端设计精选内容。
?
点击阅读原文,查看更多最新设计素材!
客服
消息
收藏
下载
最近


































































