查看完整案例


收藏

下载
别墅设计
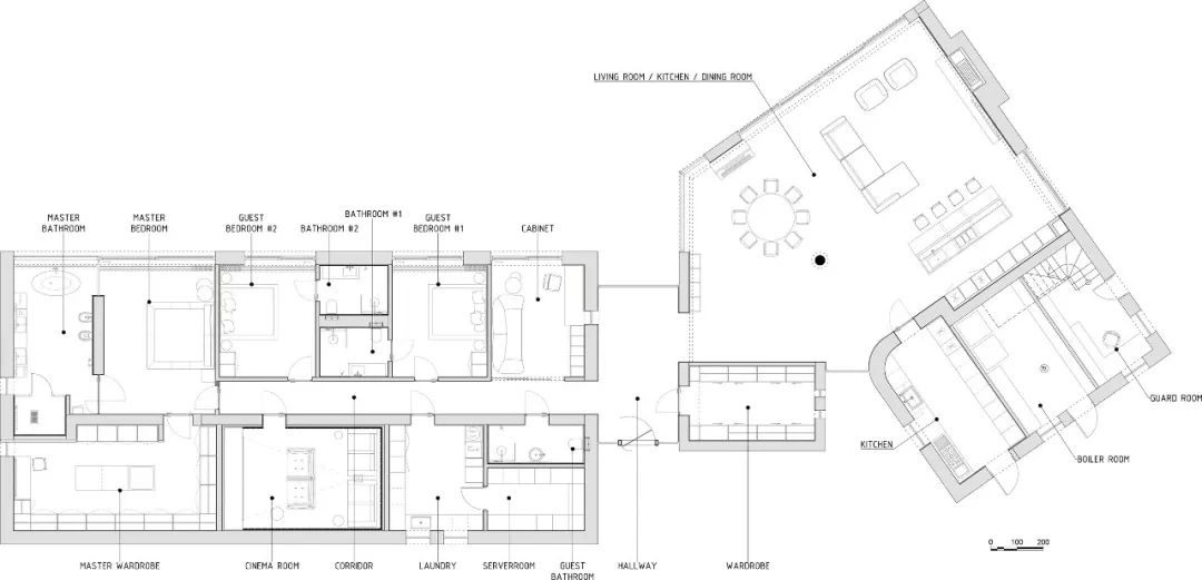
Babii Daria新作,450
㎡庄园别墅
,庄园设计师以现代简约为定位,简洁流畅,融入了自然的元素,大理石的硬朗与木饰面的柔软细腻相结合,丰富的纹理营造了空间的质感,塑造了惬意与舒适的居住空间。
精彩 · 回顾
李想×泡泡玛特丨打造梦幻潮玩天地!
CCD新作 | 曲線流光,繁華似“井”
矩阵新作 | 一个理想的奢华居所
15100㎡“民国范儿”顶级酒店设计 【江河设计新作】
本白设计 | 180㎡简约大平层,经典黑白!
泛纳设计新作 | 自然作序,臻品有机生活
精选!2022网红家具 · CAD填充图库!
SCD新作|紫薇 · 云上
合作/投稿
AnLe010
欢迎大家将火车头设计设为
‘星标’
第一时间接收高端设计精选内容
👇
点击
阅读原文
,查看更多最新设计素材
!
客服
消息
收藏
下载
最近







































































