查看完整案例


收藏

下载
现代简约
越南DaoHo Studio新作,
面积180
㎡
,
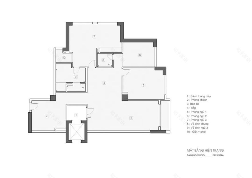
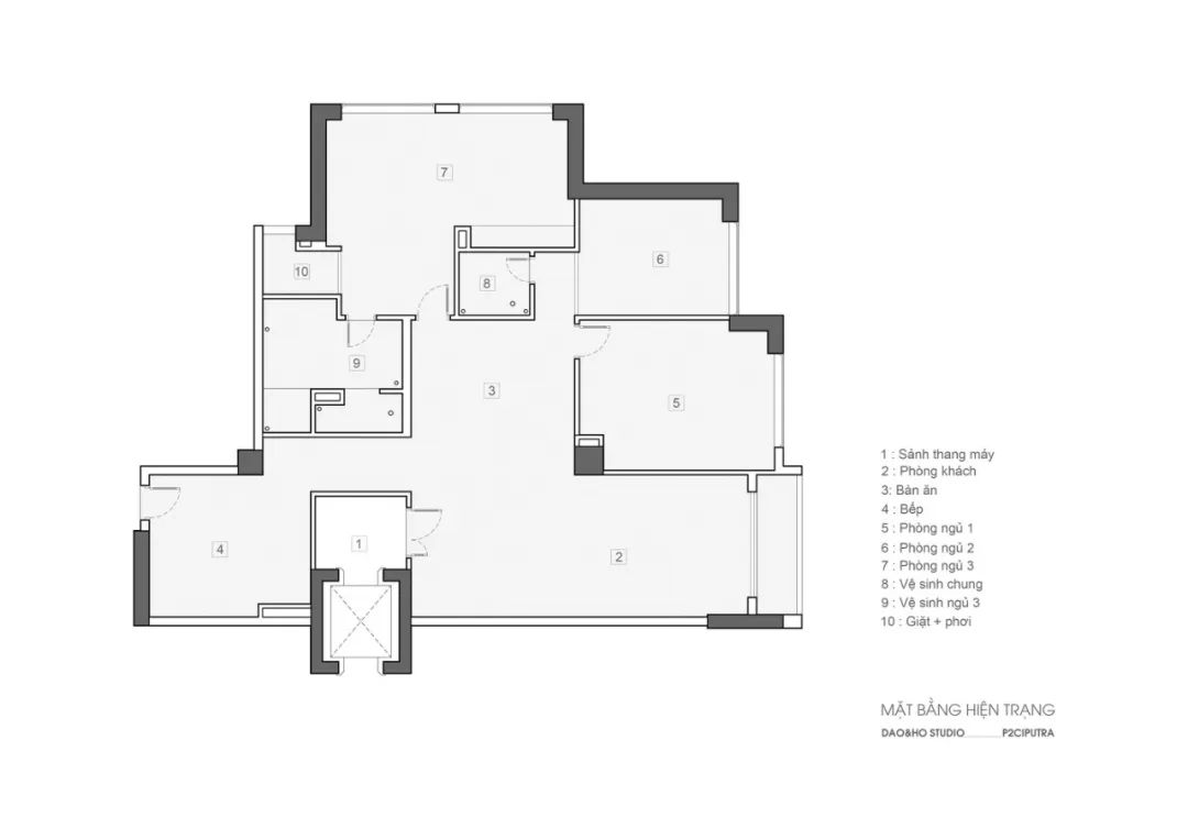
房子中间是一个庭院作为集体空间,全家人一起生活、看电影、学习、做饭、吃饭的共同空间。天花板尽可能地升高,而地面则降低,并通过一系列小门廊作为缓冲区将其与其他项目隔开。
天然的石墙块成为公寓的亮点,并通过一系列大型玻璃面板可以欣赏阳台上的风景。卧室被设计成完全开放的,透过玻璃可以直接看到庭院。
2415 EW
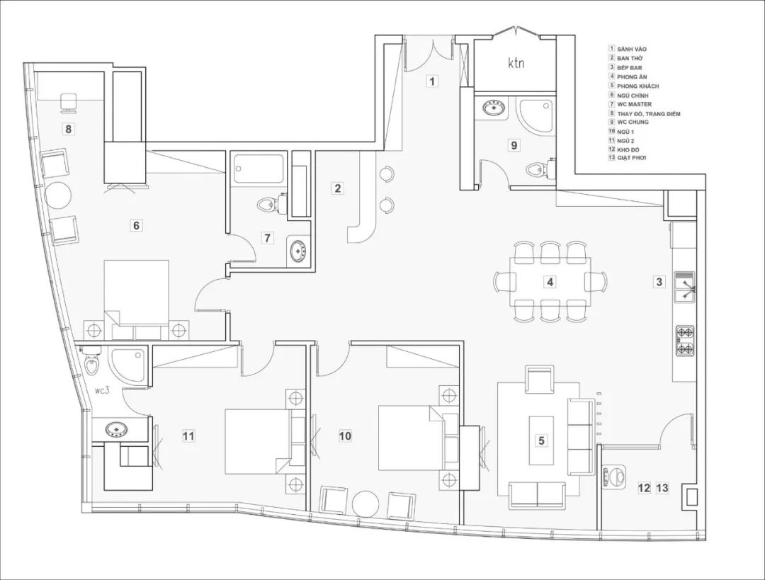
这个项目146
㎡,
关于在嘈杂和平静之间创造一种平衡的氛围。视野开阔,自然光线充足。这间公寓的主人喜欢音乐,想要一个生活空间,也想要一个娱乐室。于是重新布置平面图,拆除一些墙壁以形成一个开放的生活空间。将1/2的面积用于厨房和客厅,也将它们放置在公寓的中心。
精彩 · 回顾
如何做出高端 · 大平层设计?
2022高颜值 · 网红卡通彩平图!!!
新作 | 顶尖商业购物中心PPT设计方案合集
【CCD新作】 梦回宋朝“世外桃源”!
近境制作|空境 ‧ 砳建築京美辦公室
2022名师新作 | 软装搭配方案合集!!!
合作/投稿
AnLe010
欢迎大家将火车头设计设为
‘星标’
第一时间接收高端设计精选内容
👇
点击
阅读原文
,查看更多最新设计素材
!
客服
消息
收藏
下载
最近













































