查看完整案例


收藏

下载
俄罗斯设计
Julia Design 新作,192.4㎡的私人豪宅位于俄罗斯莫斯科,开阔的空间为整个设计带来极致奢适感,粗犷外表下掩藏其中的时尚张力与精致,表现出一种率性自在的生活态度。
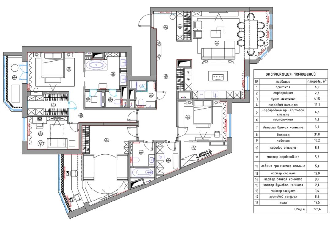
平面图▽
俄罗斯家居设计,其装修风格会偏奢华。这套住宅色泽温馨柔和,轮廓瑰丽华美,搭配着精美家具,奢华大气,无一不流露着那份高贵典雅。
设计师 Julia 一手规划的案例,将整体中性色调塑造沉静气息,铺排鱼骨纹木地板至全屋,客厅由两根柱子隔间稍做分界。客厅,作为公共区域的中心位置,通过形体的摆放和材质的选择,形成一个非常温暖且舒适的交流互动区。
厨房是精致生活的一种重要表达形式,厨房中岛以灰色大理石为主,厨柜以金色、木色呈现,并透过粗犷纹理和灯光的搭配,点缀陈列柜,使色泽达到画龙点睛的效果。
白色大理石作为电视背景墙,搭配石膏板,让人感觉简洁、明亮又舒适。客厅无论是灯具、墙纸还是沙发,都进行了精美的装饰,整个空间都弥漫着华贵、奢华的气息。
金色与黑色为主色系,两者相互映衬,产生强烈的视觉冲击。
玄关古典的气质与现代的轻奢,增添华丽的设计元素,营造浪漫舒适的氛围,彰显着主人浪漫主义情怀。
卫生间简洁的直线造型设计,黑白的色调,干湿分离,入墙式的马桶、大理石纹理背景墙,处处都呈现出对生活细节的推敲。
卧室则以舒适的灰白色作为主色调,柔和放松的感觉让你的睡眠更有品质。
单独的洗衣间设计简洁,使用起来也非常的有序。
浴室的设计给人很强的视觉感,黑色与大面积纹理的大理石,看似杂乱无章,佐以光线的配合,在设计师的手下巧妙融合在一起。
工作室尤其注重了实用性和功能性,独特的造型,极具装饰感。
次卧的设计展现简练的美学理念,精致的金属线条搭配极具复古奢华感的元素,投射以情境光源,自然氛围悄然流露,给空间带来稳重和怀旧的艺术美感。
墙壁上的装饰壁灯等稀奇艺术软装的置入,凸显空间品质承袭之余,流露艺术的简雅之美。
卧室休闲阳台,点亮了整个空间氛围,为居者带来优雅惬意的感受。
让衣物收纳变得一目了然的衣帽间,分区更多更细,能更快速进行衣物收纳整理。
一间典雅安静的书房,没有多余的装饰,没有过多的铺陈,突出书卷气,格调高雅,富于艺术性。
洗手间的设计在色彩上以深色为主,采用了比较典雅的欧式吊灯、复古瓷砖的设计方法,加上一些硬朗的石材,显得洗手间大气与立体感十足,非常华丽。
设计师 Julia
精选推荐
邱德光大师最新作品 | 再言梦幻「系」!
Rie Azuma | 美到窒息的酒店设计!
新作 | 大唐 赛拉维:情绪的色彩,唤醒生活感知
【惊艳】均价 1600 万的顶级豪宅大平层是怎么设计的?
唐忠汉新作 | 光魅
新作 | 品质大宅,理想的生活范本!
设计师必看!2021 工装高清案例大合集来了!!!
新作 | 中粮·京西祥云
精彩生活 | 源于设计
回复数字“1”或“福利”有惊喜
点个关注.证明我曾来过
点击“阅读原文”有惊喜
客服
消息
收藏
下载
最近














































































































































