查看完整案例


收藏

下载
现代空间
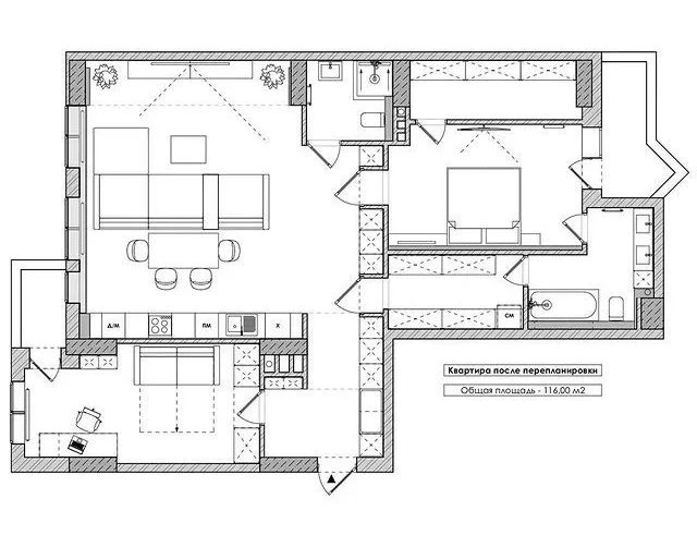
Lavrov Design新作,Andrey Avdeenko摄影,为一对年轻夫妇设计的,面积116㎡,历时9个月,公共区域与私密和功能区分开,这种布局的亮点是从客厅到卧室的圆形通道,然后是浴室,洗衣房,再到客厅。
平面图
▽
浅色木材纹理为主,天然石材的搭配,
而在用色上,除了木质原色外,黑、白、灰三色的巧妙搭配,则彰显着色彩的魅力。
经典回顾
130㎡中式合院,一花一木,满庭芳华!
现代简约设计,高级美!
无间吴滨新作
精彩生活 | 源于设计
回复数字“
1
” 或 "
福利
" 有惊喜
点个关注.证明我曾来过
点击“阅读原文”有惊喜
客服
消息
收藏
下载
最近






















