查看完整案例


收藏

下载
独立住宅, 住宅室内设计, Ahmedabad, 印度
面积:1280 m²
项目年份:2017
摄影师: Bharat Aggarwal, Edmund Sumner
厂家:Arcedior, Artemide, AutoDesk, BONALDO, Cassina, Flos, Hybec, Jaguar, Lexerus, Luceplan, Pianca, Savi Décor, Tacchini, Trimble Navigation, Venezia
设计顾问:Gurjit Singh Matharoo
客户:Mr.YogeshBhavsar, Mr.TanmayBhavsar
景观设计:Vagish Naganur
结构顾问:Rushabh Consultants
Hvac 顾问:Pankaj Dharkar Associates
管道顾问:Aqua Designs
文案:Krishna Mistry, Trisha Patel
City:Ahmedabad
Country:印度
住宅坐落在印度Ahmedabad西郊,为一房地产开发商设计,位于一处治安良好的地区内,东侧是一座装饰繁复精美的别墅,北面和西面也有若干大型别墅。该设计旨在屏蔽这种可避免的邻近建筑环境氛围,同时就Vaastu(印度风水学)进行讨论协商,通过遵循严格的传统指导原则,指导空间、水体和庭院的形态布局,甚至细化至洗手间方位和颜色选用等内容。
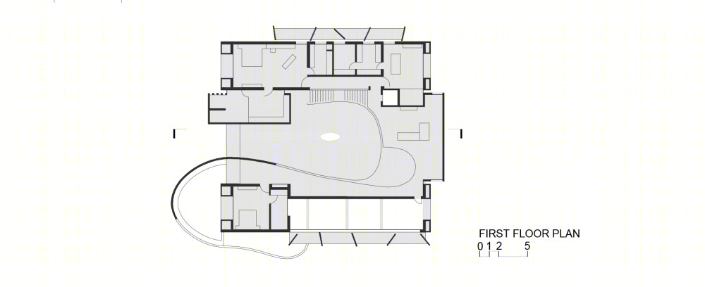
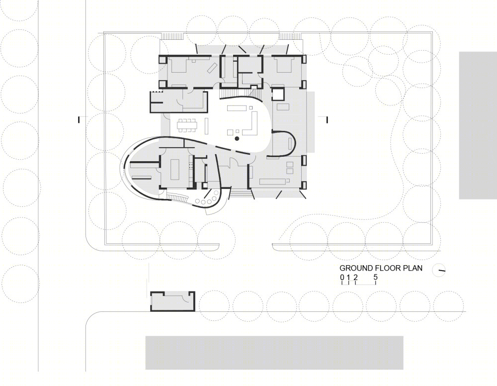
建筑形体构成非常简单,由两个平行放置的南北向双层方块组成。东侧体块作为公共待客空间,设有公共入口、会客厅、客卧和厨房,而西侧体块则包括主卧、父母房和两个孩子的卧室等私人房间。两个体块间的空隙容纳了家庭起居和就餐空间,含一间庙堂和面向南北花园的大型遮荫阳台。
Cuppadah砂岩砖墙体块的规整性被清水混凝土曲墙沿空间的三个维度延伸打破。从入口开始,环绕厨房,形成多功能外院,然后蜿蜒进入用餐空间,一路延伸包围起居空间和庙堂。
相交部分的墙体也从阳台升起,包围上层的休憩室,变成漂浮的曲面板,隐隐约约在中央体量中浮现。这些室内空间的缩影在地下室得以精彩呈现,夯实的混凝土曲板在光线的映照下,反射在透明的玻璃面上,形成多重材质互相映衬的浓郁氛围。
这个看似无限循环的流动平面在清水混凝土墙的演绎下模拟了莫比乌斯环,并调节空间成为一个既向内又向外,既围合又渗透,既崇高又亲近的空间。
项目完工照片 | Finished Photos
分类:独立住宅
语言:简体中文
阅读原文
客服
消息
收藏
下载
最近


















