查看完整案例


收藏

下载
现代极简
▲原始结构图
原建筑是非常常规的一百四十平方的户型。基本上从KIM姐自己手上估计也已经作了不下几十个方案了。原始墙体承重墙非常多,整体空间缺少通透感,不够开扩,动线存在不合理。入户玄关位置太压抑,客卫厨房都偏小。不过好在开发商送了三十平方,这点让KIM姐感到非常欣慰。
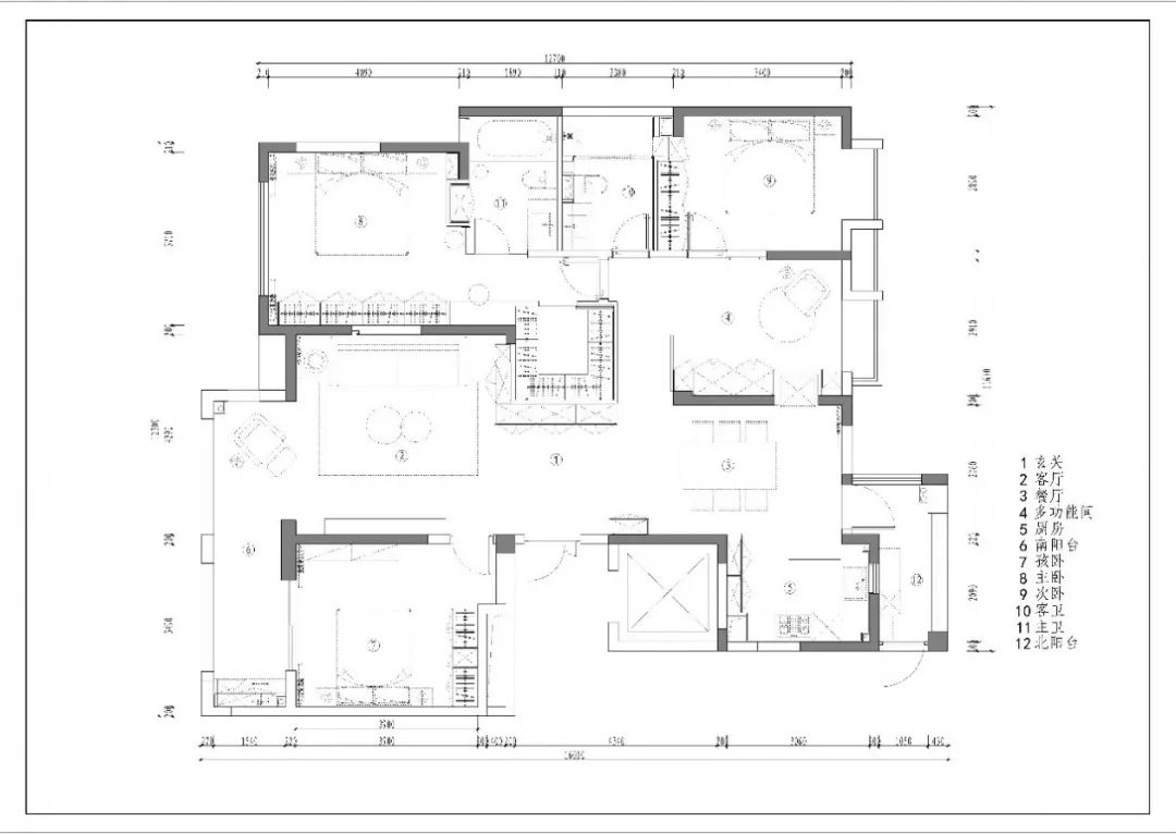
▲平面设计图
结合了家里只有常驻人口三个人的情况下,就没过多把外界因素纳入考虑的范围,在改户型上面也是一样,同样取舍很重要。明白是卫生间或者是衣帽间,哪个功能区域对你来说更为重要。KIM姐将原始空间墙体全部打通再重组。生活空间以四大主轴贯穿,分别为客厅餐厅卧室及多功能空间。成为了LKD一体的感觉,整体力求动线流畅及视觉上开阔。
一进门的开放空间,舍弃了所谓传统意义上一个单独的玄关位,用一组白色的悬浮转角柜体代替,入户右手边也设计了单独的鞋柜。白色通顶柜门及暗拉手的设计也让整体鞋柜有个隐形的感觉,不仅作为住宅的入口和收纳空间。还让整个客餐厅空间有了连贯性。
将原结构的南阳台纳入客厅区,增加了客厅的空间。开放以后的布局允许自然光通透整个客厅的空间。顶面采用了吊平顶无主灯的设计,无边框的方形嵌入式射灯和无边框的空调风视乎很呼应整体的感觉,在背景墙上增加了一处线型灯的设计,使得原来深灰色的背景墙显的不那么单调。
电视背景一体式,儿童房卧做了隐形门。
左边的画是之前去冲绳一个一双买的,一位日本画家的第99副限量版,右边的老夫子香炉是看了《潮流合伙人》以后觉得很帅的一个摆件。
简约的线条感和纯粹的材料组合,利落的量体造型,强调了现代的生活美学。
材质颜色上面使用了深灰色的艺术涂料,中灰的布艺沙发还有浅灰的地毯,纯黑色的茶几,角几和单人椅子加上B&O音响。使得整个空间显得非常有层次感和高级感。
此生应该需要一台B&O。
从玄关到客厅的转角白色柜子独立出一个橙色开放柜构建空间色彩感。
原有入户门的违和感实在太差了,采用了常用的毛毡做为修饰,拍照的时候换鞋凳还未入手,所以目前这里还空了一个位置。
餐厅部分原来也是考虑黑白灰基调,但是考虑岩板或者大理石都给人太冰冷的感觉…最后决定了用木色做为点缀,选了很久很久的餐桌,还是配上我们的极简风格。
开放式的厨房减去了厚重的墙面的,加上岛台的隔断,减轻了视觉的重量感,最美好的家庭画面已然呈现在脑海中。
全黑色的厨柜,整体台面做到了88高度。(家属身高181,所以要求如此高的台面,想必一般人接受不了,所以厨房厨柜的高度一定要结合业主的本身去作一个安排)配置了洗碗机,蒸烤箱,垃圾处理器,净水器。好吧,反正都是家属我不管厨房。右手边同样一组通顶白色柜子,让人找不到它的存在感。厨房预留暗藏轨道的位置,给以后万一要装移门留了条后路。
目前是一个小朋友的玩耍区域,入住以后会添置放小朋友的学习桌。希望他把休息和学习的分开,方便辅导作业。并且在多功能房同样也预留暗藏轨道的位置,有变动的话后期也可以变成一个独立的房间。
又是一组内嵌入式的储物功能超极强大的柜体。和白色墙面结合的非常完美。部分白色墙体其实后面就是冰箱的位置。
把主卫部分做长虹玻璃增加主卧的通透感,也是延续了客厅背景一样的深灰色质感涂料,没有做任何过多的装饰墙面。65寸电视机位置凹进整一组柜体内,连接梳妆台部分在墙面也同样设计了俩条线型灯。照片关系只看的清楚一条,主卫外即梳妆台动线位置分明合理。
不属于重点关注的区域,弄的稍为简单一点,房门后是一组利用了次卫扩大后的多余的空间做的嵌入通顶大衣柜。实用性极高。呃就是喜欢柜子多。。
主次卫都是以黑灰调墙砖配以白色洁具,还是和客厅一样的基调。设计了无挡水条的处理。淋浴区下沉3公分,加长型地漏。注重整体性,所有包括客餐厅的地砖及卫生间墙地砖,采用了环氧填缝剂。尽量找和砖最接近的颜色。
什么家是你心中目中完美家的样子?
空间,光线,美观,实用,功能…
对于细节,每一件物品都很重要
每个设计不外乎是为了拉近各个空间及使用者的距离
让生活更贴近生活
项目信息
项目名称 | 江南国际城
项目名称 | 浙江杭州
项目面积 | 150m2
项目类型 | 住宅空间
设计机构 | KIM设计工作室
设计时间 | 2018.07
完工时间 | 2020.05
经典回顾
北京三里屯一号顶奢豪宅,不愧为孤品!
打造沉浸式的体验感售楼处
97㎡高级质感,演绎经典现代美学
现代情感融入东方元素,邂逅灵动优雅艺术!
以蜂巢为介,打造工业质感的 “coffee”美学馆
名师李益中新作
岳蒙2020年新作
寻一方静谧碧水,享人文艺术的雅趣生活!
古鲁奇新作 | 全球首家5D餐厅,全聚德温哥华店
CCD新作 | 穿越千年而来的华贵端重
吴文粒新作——奇妙的童趣世界!
700㎡私人别墅,超美的色彩设计!
派尚新作|155㎡雅致美宅,用一抹润江蓝,礼献城市匠心!
沉浸式光影空间,震撼心灵的高级美!
简约中式,领略当代东方美韵
轻奢、内涵、质感,打造高雅品味的售楼处
325㎡独栋别墅,现代精致的东方意境
不要童趣,用儿童思维来创造艺术培训空间
新亚洲的格调与纯粹
克制美学 ,莫兰迪色的高级!
精彩生活 | 源于设计
回复数字“
1
” 或 "
福利
" 有惊喜
点个关注.证明我曾来过
点击“阅读原文”有惊喜
客服
消息
收藏
下载
最近














































