查看完整案例


收藏

下载
本项目的样板房设计由擅长以现代的手法呈现东方哲美的派尚设计担纲,在梓山湖变幻莫测的潇湘烟云中,派尚设计团队中着意寻找属于潇湘的意蕴、风骨、清俊和诗情,同时也让空间在这个纷杂的信息时代回归属于当代的简约自然的时代精神。
无声诗
集美东方样板房·K户型
有声画
集美东方样板房·E户型
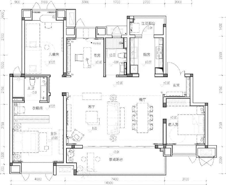
设计图纸
▲ K户型平面图
▲ E户型平面图
项目名称:
金科 · 集美东方样板房
地址:
湖南·益阳
设计面积:
K户型142㎡ E户型124㎡
主要材料:
大理石、木饰面、墙布、皮革、树脂板、定制墙布、不锈钢等
业主机构:
金科地产湖南区域公司
特别鸣谢: 钟良、龙岳夫、张丽才
设计机构:
深圳市派尚环境艺术设计有限公司
设计及艺术指导:
周静、周伟栋
室内设计&陈设设计:
刘萍、 向家和、江丽雯、代静
摄影:
谭冰
经典回顾
邱德光最新力作
住一晚96000元,水泥地、破木床,人们却排队住?
外滩超大平层样板房,将高级灰进行到底!
鬼手帕新作:俏
轻奢,精致、时尚—150㎡ 新海派风格
“1000棵树”成上海最新地标,鬼才设计师托马斯又出神作
400㎡法式浪漫别墅
全世界最大的星巴克开业,十分令人震撼!
HBA新作—LOFT小户型的灵动百变
2套最美中式设计,太漂亮了!
矩阵纵横新作—演绎“东方风骨”
530㎡雅致轻奢联排别墅,体验沉浸式诗意生活!
600㎡别墅私宅 ,梦幻探戈 “生活的精华”
当代 优雅 艺术—古典美学的现代演绎
最新CCD新作——成都领地希尔顿嘉悦里酒店
精彩生活 | 源于设计
回复数字“
1
” 或 "
福利
" 有惊喜
点个关注.证明我曾来过
点击“阅读原文”有惊喜
客服
消息
收藏
下载
最近































