查看完整案例


收藏

下载
这是深圳市李益中空间设计负责的一处精装公寓样板间改造项目,分为A、B两大户型,定位为单身公寓,地点位于无锡市梁溪区商业区,毗邻商业文化中心区,生活配套教育资源丰富。
摩登绅士
——
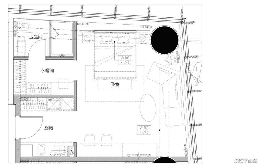
A
户型
47㎡
▲原始平面图
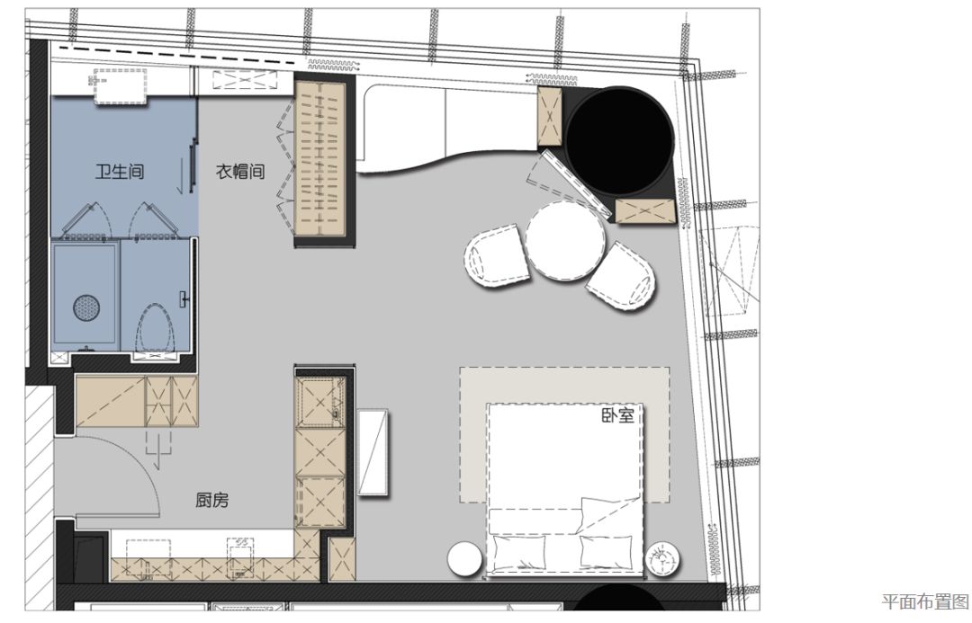
▲
改造后平面布置图
▲
大部分单身公寓的特点是开门见山,进门便对整个室内的布局一览无余,而A户型的设计就有些与众不同之处。
▲玄关处细心的设计了一个台面,既是换鞋凳也可做置物桌,一字型的厨房区,白色的整体橱柜洁净雅观,转角还有酒柜陈列,瞬间提升了室内的品质感。
▲
因为布局的优化使室内有一个非常漂亮的衣帽间,衣帽间内配有梳妆台。梳妆台面朝落地窗,通透自由,视野极佳。
▲衣帽间的对面是卫生间,卫生间三区分布,淋浴区如厕区靠内侧,而盥洗区并不需要太私密的空间,设计师将其独立出来,置于窗前,洗手时抬眼便可望见窗外景色。
▲客厅电视墙是扇形造型,这样设计的原因是为了消化建筑的结构柱,而两侧多余的空间设计为暗柜,增加了室内的收纳面积,也让室内更加协调统一。
▲卧室的另一侧是大面积的落地窗,在室内拥有绝佳的视野。卧室床头设置了智能插座和智能家居控制面板。空调、灯光等皆接入了智能家居系统。
▲白色、浅木色、金属黄是主要的色彩,材质主要选择是灰玻璃、大理石和木饰面,整体配色简洁大方。
▲一个47㎡的房间产生了74㎡的错觉,单身贵族的品质生活。
简约风尚—
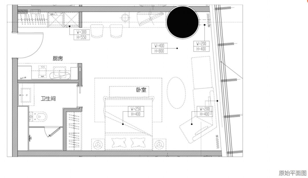
B
户型
41㎡
▲
原始平面图
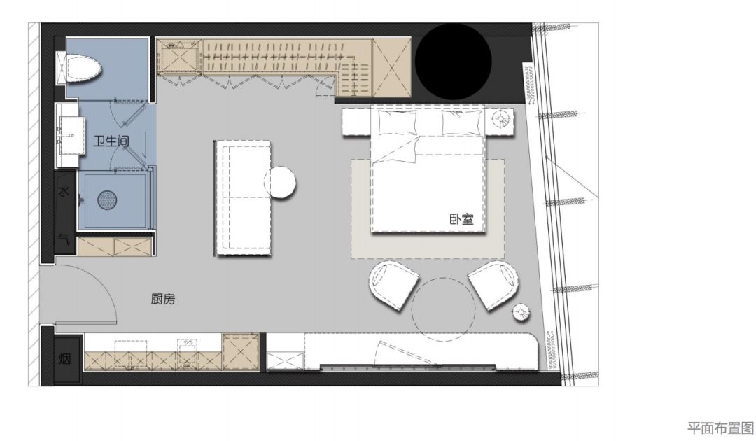
▲改造后平面布置图
B户型公寓的室内空间布局非常简洁明了,卧室,客厅,厨卫入户便一目了然。室内没有迂回没有遮挡,空间通透,设计师为了丰富空间层次,在沙发背后设一灰色玻璃隔断,也为卧室区域增加了一丝隐秘性。
▲入户门处的定制柜,兼具收纳和置物功能。同样是一字型的定制橱柜贴边安放,操作台上有内嵌的微波炉,油烟机,两侧定制立柜与橱柜合二为一,整洁美观,有着足够的收纳空间。
▲电视背景墙是一整面白色烤漆板,电视机内嵌其中,四周嵌入灯带,与室内风格整体协调,更具连贯性。
▲木元素以不同形态存于各处空间,木饰墙面、卧室木质隔断、木材桌椅、柜子、木地板等,在无形之间将各个功能区紧密相连,散发出温润自然的柔和气息。
▲精致的器皿,现代的灯饰,赏心悦目的绿植,令室内温馨又美好。
▲
都市白领追求舒适便捷的品质生活,室内暗藏了不少智能化的家居。
▲
卫生间分三区设计,干湿分离,两侧分别为淋浴间与如厕区,设有玻璃门隔断,中间是洗漱台。
经典回顾
3套东方美学中式,很美很高级!
设计可以没有风格,但不能没有格调
遇见最心动的家!
6000㎡ 华为深圳员工食堂—领略世界文化的万种风情和魅力,
一家极具设计感的酒店在网络上爆红
魔都烂楼变身网红共享办公空间
大研打造水墨江南的新作 | 精简的材质塑造不凡的仪式
“李白诗歌文化”为主题的度假精品酒店
优雅简约的当代设计,高级又惊艳!
“李白诗歌文化”为主题的度假精品酒店
首发 | 284 m² 简美清雅别墅设计
老铁,设计师一个扎心的标志
轻奢新中式为什么这么流
用现代材质诠释中式元素,横竖兼容,以柔克刚。
这还是我们认识的苏大强吗?
1800㎡具有现代前卫的视觉张力的会所设计
精彩生活 | 源于设计
回复数字“
1
” 或 "
福利
" 有惊喜
点个关注.证明我曾来过
点击“阅读原文”有惊喜
客服
消息
收藏
下载
最近







































