查看完整案例


收藏

下载
美的历程是展呈过去、反映现在并指向未来的,空间的功用在时间的推进、环境的流变下,其产品力和设计力的创新可能性、可持续性亦成为地产集团和设计公司共同思考、一致探索的方向。
东原·朗阅是东原集团“阅”系臻配产品首次落棋于贵阳,设计由知名室内设计公司则灵艺术担纲。则灵艺术20年来,坚持“设计传递生活的愉悦”,以设计助力地产集团产品力实现。
在设计中,双方在一个兼容并济的架构中思考问题:以用户研究为基础,把建筑、室内、艺术与文化聚合,串联有趣的生活方式,构筑一个多元温情的场景式社区范本,真正意义上实现人们对品质生活的丰富想象与美好向往。
在售楼处的设计中,则灵艺术依托其不断焕新的美学造诣,以“肯辛顿的下午茶”为氛围主题,营造出古典英伦风与现代摩登感交织共映的售楼空间。
设计师从英式红砖建筑取得灵感,设计融合了其对建筑元素的考量,以及对艺术自身审美规律的梳理与吸纳,外观立面由红砖砌就,同时取红砖的英伦红色调,通过软装陈设点缀于室内空间中。
在硬装设计上,则灵艺术采用现代手法,将传统欧式建筑的繁复风格简化,保留经典框线与圆拱形制的部分,使历史符号的艺术化装巧妙地融入空间,呈现出更立体、更鲜明的英伦风氛围,以古典优雅的框架格局展开异彩纷呈的“阅”系生活导览。
软装设计中,大厅呈对称构图,璀璨耀眼的立体矩块灯阵,星星点点的细节拼凑出米字的大致轮廓,又似不经意间抒写着英伦格纹的疏密意象,层叠有致,意态万千;洽谈区,在欧式花线圆拱形制的隔断基础上,黑色铁艺架、红色单椅、黑色长沙发围合金色茶几构就一个舒适放松的商务对谈空间;飘香玉兰、复古时钟、喷泉雕塑无一不彰显着精致细节,光影绰约间,英式情调漫延。
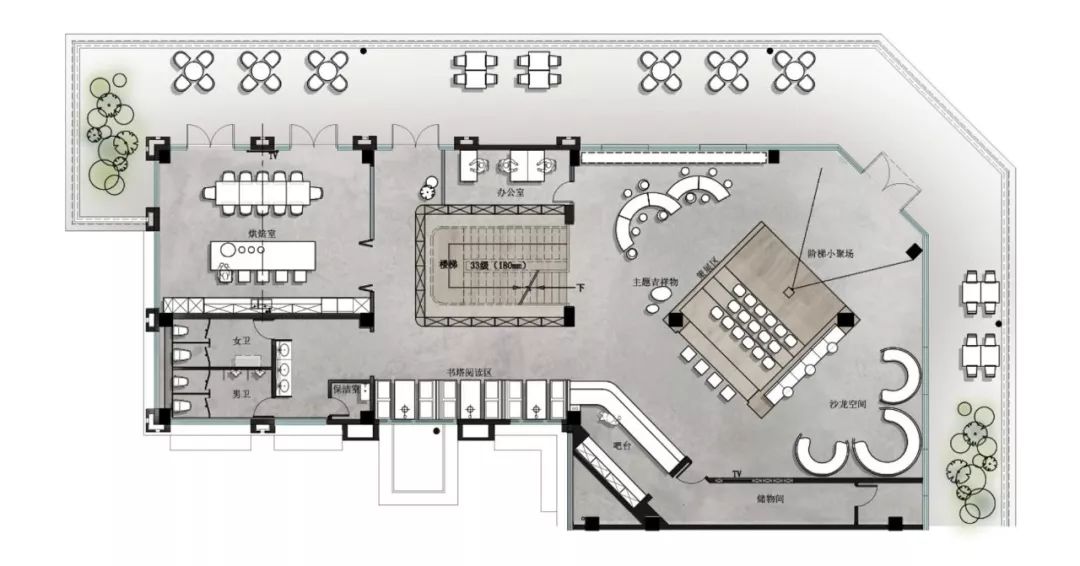
东原集团始终认为,社区不仅仅是建筑,最重要的是建立人与人之间的真实连接、家与家之间的情感传递。多年来,东原深入研究客户需求,坚持社区价值创新路径,在社区运营领域不断深化。待售楼处功能完成后,这个空间将保留为“原·聚场”,以社区会所形式存在,长久融入周边居民的社区生活深处,陪伴社群成长。
原·聚场,集合“生活美学、亲子互动、戏剧艺术”三大板块的生活型态,形式多样,内容丰富,旨在打通温暖亲切、友邻互助的社群社交。在这里,“聚”是主题,“场”是媒介,“人”是社群核心。
设计中,则灵艺术以用户对幸福的憧憬和美好想象为思考之源,找寻人与空间某种情感纽带,用独特的设计语言呈现出复合而多变的生活型态之美,唤醒人们发掘日常美好的好奇心,享受每一个当下。
咖啡吧典雅精致,为社区的年轻人提供一个自由交谈的空间。设计中,水滴灯饰轻弋生姿,临窗眺外,引入一幕绿树、山石与水景的自然趣致,清挚而灵动。
社区构建了一处精神领地,近万本书籍林林总总形构出一个小型书塔,与二层书塔私密卡座合为一域,就像是一节节开往不同未来的车厢,因充满未知而妙趣横生。
沙龙一隅,设计抛开强互动的目的性,通过木艺围拢出数个独立的小天地,更多地以静态场景表达一种生活态度,描摹每个人静旎放松的内心角落。在这里,你可以沉浸阅读、欣赏音乐、放空大脑,或享受阳光浴、蜗居一角、与朋友闲聊......闲适自由,好不惬意。
邻近书塔与阅读区搭建的亲子互动空间,以书为介质,大人孩童们与大号布朗熊和Zuny手工动物皮玩具为伴,人徜徉在书的海洋里,亲子陪伴在温情之余更添乐趣,一起度过休闲自在的悠暇时光。
儿童活动区的稚朴生趣自成一派,白色山石树景、花蕊形吊灯、可爱猫形装置、滑梯流线的书柜、形似跑道的地毯、自由穿梭的小火车椅子......描绘出一个活泼生动的童梦童趣空间。
烘焙室简单分为烘焙操作区与围坐品尝区,邻里可协作烘焙、分享美味,其广阔空间亦支持开展小型烘焙教学活动,观景阳台上孩子们玩闹一团,欢声笑语不断,给美好的午后时光标记上西点味的轻快气息。
阶梯小剧场以盒子的形意巧妙内置,区隔安静沉谧的书塔区,划分出一个吸引人们注意力、让人全情沉浸的投影空间,此间柔软的抱枕小物提供最大限度的舒适感,平日里是亲子互动寓教于乐、共同学习的好去处,亦承载着发布会或其它社交活动的功能定位。
“设计,是基于目的性对空间做功用规划的同时,借由美学语言传递一种或多种生活方式。以用户研究为基础,对生活样态的深入探索,是我们20来年坚持在做的事情。我们希望原·聚场的设计所刻画出的社群场景,能让不同年龄段的用户都找到自己的兴趣所在,与同好愉悦交流互动。”设计师罗玉立说道。
这里,有着生活方式的多维度交叠与碰撞,有兴趣爱好的多样化交流与互动,在时间的印证下,美好自然而然地萌芽生发,有营养、有温度、有价值的友邻社群在茁壮成长。
请旋转手机观看
▽
设计图纸
效果图
一层售楼处平面图
二层原·聚场平面图
项目名称 | 贵阳东原·朗阅售楼处
项目地址 | 贵州 贵阳
室内面积 | 1300㎡
竣工时间 | 2019年3月
业主单位 | 东原地产
东原设计团队 | 徐越吟、金炼、马爱国
室内设计及软装设计 |
则灵艺术(深圳)有限公司
摄影师 | 陈维中、黄书颖、翱翔
则灵艺术(深圳)有限公司,创办于1999年,是中国房地产领域室内与软装设计的先行者。我们的业务涵盖会所、售楼处、别墅、样板房的室内设计及软装设计,并为地产行业领先客户提供整体精装修标准研发及设计服务,是万科、龙湖、金地、中航、东原等一线房地产开发企业的长期战略合作伙伴。
则灵艺术始终坚持并信仰:美是普遍的愉悦感受。20年来,我们对“愉悦感”的追求始终如一,历经多年的探索与积累,以用户对幸福的憧憬和美好想象为思考之源,用独特的设计语言呈现出生活之美,如流水一般清澈隽永,又如阳光一般明媚多情,礼赞自然且富于变化,有着强烈又鲜明的现代性。
则灵艺术代表作
合肥万科天下艺境销售中心
重庆云山晓售楼部
建发&武地·央著 鲤乐荟
上海龙湖天琅高定工作室
深圳万科天琴湾别墅
经典回顾
矩阵纵横新作 | 1400㎡极致艺术,极富魅力的文化体验
越中式越高级—12家最美的中式度假酒店
85后新锐设计师作品 | 500㎡售楼处 + A户型90㎡ + B户型120㎡
(2019版)设计师收费价目表
港式风情演绎现代轻奢,新奇与时尚!
亲和 优雅 舒怡有仪式感的生活方式
爱马仕样板间,极致的轻奢时尚!
这个办公总部要火,太有霸气范儿!
680㎡安然简雅的东方气韵
“豪宅”是如何征服大众眼球的呢?
你无法想象他是何种惊艳……
曦所,一场“境与心”的对话
穿梭于精致与时尚之间, 透露出奢雅的气质美感。
Yabu Pushelberg新作 | 从都市极简,到复古玩味
2020迪拜世博会中国馆——惊艳亮相!气势恢宏,端庄大气
精致简约台式风,高级范儿的完美呈现!
【2019年2月派尚设计新作】打造一个意蕴风雅、诗意绵亘的文化延续体验空间!
墨香茶韵中式藏馆,一场“境与心的对话
精彩生活 | 源于设计
回复数字“
1
” 或 "
福利
" 有惊喜
点个关注.证明我曾来过
点击“阅读原文”有惊喜
客服
消息
收藏
下载
最近






















































































