查看完整案例


收藏

下载
“因水而发,缘水而兴”应和着名副其实的东方水城——南昌,随着城市文脉的流动,浸润这片土地安谧细润的质地,赋予土地上的人们温雅恬淡的人文芳华。为追求品质生活与自然生态的新都市者,寻得一片静谧纯良的生活乐土。
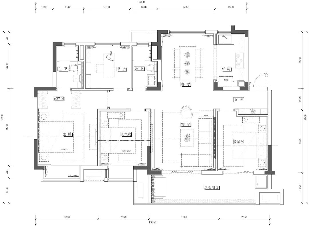
欣悦湖119户型是个四房两厅两卫的家庭住宅,其主要是为当地偏年轻的精英阶层服务。现代轻奢的港式风格演绎手法,以其强对比的材质关系、精致细节收口方式来彰显产品的高品质和轻奢感。
玄关
入户玄关通过不锈钢有序的分割方式,将墙与柜体相结合
起来,给人坚硬的力量感,但又不失细腻,整体更加贴合现代年轻客户探索新奇及时尚的态度。
通道
本案中较为突出的亮点,是横向开放式的客餐厅布置方式,与视觉纵深达8米左右的空间通道,在纵横有致的分布中,将空间比例直接提升了一倍。使人在推门即入的玄关处,便能感受到深邃的吸引力。
客厅
客厅背景以具有玉石质感的横纹石材为主,右侧嵌入层架,通过不锈钢收口方式,让置物空间与设计融为一体,高级且精致。空间在细腻的铜条围边方式之间,让地面浅灰石材与天花板、水晶灯上下相互呼应,呈现互融相通的共处格局。
过厅
独特的墙面设计、立体多边形地毯与横竖有致的墙面设计,多维度地贯通空间视觉的宽度、高度、深度,即便是从枝叶繁花的角度,也是一个维度视觉。
餐厅
从客厅走进餐厅,几多纯粹几多温馨,每一笔设计都在延伸浪漫,餐厅在冷色调的基础上,辅之古铜金属、绿植花卉,对应灰色纹理大理石,更加衬托一家人齐坐一堂和乐融融的时刻。
餐厅
以餐厅为例,完美诠释生活的品质不在于富丽堂皇,在于餐具细节,在于品味和画作的艺术风格。
通常精致的厨房都会有一种无法抗拒的魅力,当你越想准备一餐丰盛美食,或优雅的下午茶时,越容易在具备足够储物空间与功能齐全的情况下超常发挥。这种轻快便捷而不影响生活情调的烹饪氛围,赋予烹饪者充实感、满足感,也赋予美食与享用者同样美妙的温馨。
书房
原木质朴,象征心境不乱,如清风和熙;金属刚硬,寓意心志坚定;书房的设计尤其精妙,包括灯光和架子上的摆饰选择,都在舒缓书房的时间,让人能静下心来,享受沉醉于精神世界的一刻。
主卧
清雅俊秀的主卧,弱化了往常平淡常规的设计方式。在白墨柔婉的色调下,更加还原了自然本真。当你深入体会之时,那半隐半露的禅修之意所散发的气场,会替你平息外界环境下卷带于身的浮躁疲惫,从而真正享受入梦中的安宁。
“浮华世上花,莲灯人间开”这一切的安逸,除了素装淡抹的色调与简洁的造型以外,床头花纹图形的皮革立体雕花饰面,以及水晶莲花吊灯随行而至,更加生动形象的描绘出空间恬静而不失高级质感的自然艺术之美。
这种巧妙的表现方式的另一方面,往往离不开纯净材质的使用,比如衣帽间玻璃设计的通透感,有着内敛却强烈的表达欲望。仿佛间接向主人传达“自信即是美”的阔达,在帮助主人提升生活舒适度和便捷性的同时,也使设计灵性得以最大化提升。
主卫
卫生间三件套的布置方式因空间面积会稍显局促,因此设计师采用取舍方式,化繁为简,不做过多装置,把亮点集中在墙面,而后在洗手盆、马桶、花纹玻璃内透光墙面相串联的地方,留出一条通长的台面,不仅视觉感彰显高级,而且非常具有实用性。
长辈房
高级灰波点白,铺贵色点金铜,对应的恰是长辈们安稳平和的感觉,不需要过多华丽,但一定是历久弥新的高贵,而且少不了点睛之处,在朴实之外,让老人家的世界也不多乏味。
儿童房
一半是海,一半是天;一方童真,一方畅想。在这样的儿童空间,设计师很懂得用色彩去演绎孩子们烂漫纯真的天性,能够为他们创造出自由的空间环境。与此同时,内部装饰基本丢弃了外在的幼稚形式,转而通过鲜明活跃的色彩与陈设布置,丰富孩子看待世界的角度。
平面图
经典回顾
亲和 优雅 舒怡有仪式感的生活方式
爱马仕样板间,极致的轻奢时尚!
这个办公总部要火,太有霸气范儿!
680㎡安然简雅的东方气韵
“豪宅”是如何征服大众眼球的呢?
你无法想象他是何种惊艳……
曦所,一场“境与心”的对话
穿梭于精致与时尚之间, 透露出奢雅的气质美感。
Yabu Pushelberg新作 | 从都市极简,到复古玩味
2020迪拜世博会中国馆——惊艳亮相!气势恢宏,端庄大气
精致简约台式风,高级范儿的完美呈现!
【2019年2月派尚设计新作】打造一个意蕴风雅、诗意绵亘的文化延续体验空间!
墨香茶韵中式藏馆,一场“境与心的对话
一室如水墨画般幽幻写意——南香楼艺术酒店
【集艾设计最新力作】“大气恢弘”一词赠予中原,以释其风情!
设计师“苏大强”:怕是甲方都要叫你爸爸!
“清风恰几许,竹影入画来”营造出东方的宁静和优雅。
静谧的高级灰、沉稳的翡翠绿、质感十足,东方气韵上的讲究。
三房改四房 送给女儿们的梦想家
尊贵格调样板间:将东方韵味与当代精神完美融合
RWD黄志达新作 | 中国院子:流淌的巴洛克圆舞曲
精彩生活 | 源于设计
回复数字“
1
” 或 "
福利
" 有惊喜
点个关注.证明我曾来过
点击“阅读原文”有惊喜
客服
消息
收藏
下载
最近



























