查看完整案例


收藏

下载
上海平仄室内设计此次携手中冶置业打造了山城西区首个轻奢居住体验项目——仁和西里,力求在表达对山城精神的敬畏之心的同时,借力山城文化将人居体验进一步提升。
设计首先引入奢华概念,以强烈的视觉刺激代表巴渝之地的热辣味道,而引入人文元素,沉淀喧嚷气氛,使空间可以更有温度。
因此在最终的呈现中,大面积运用石材与木质元素,并将金属材质浓缩成核心功能区的视觉亮点,成为俯仰之间的独特景致。
△销售中心主入口
△销售中心南北向视角
△销售中心水吧台
△销售中心洽谈区
△销售中心盥洗室
△销售中心签约台与VIP室入口
△销售中心儿童区
行走在横与纵的空间中,简与繁从对立逐渐走向统一,就像融合了生活的噪与静,将她打造成我们热爱的样子!
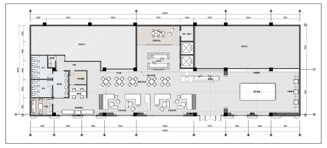
△销售中心平面图
项目信息
项目名称:重庆中冶置业仁和西里销售中心项目
项目完成时间:2019年3月
项目设计面积:1074㎡
项目完成地点:重庆
室内设计机构:上海平仄室内设计事务所
设计总监/朱友庭
设计团队/蒋佩 戴帅凯 黄张标
经典回顾
墨香茶韵中式藏馆,一场“境与心的对话
一室如水墨画般幽幻写意——南香楼艺术酒店
【集艾设计最新力作】“大气恢弘”一词赠予中原,以释其风情!
设计师“苏大强”:怕是甲方都要叫你爸爸!
“清风恰几许,竹影入画来”营造出东方的宁静和优雅。
静谧的高级灰、沉稳的翡翠绿、质感十足,东方气韵上的讲究。
三房改四房 送给女儿们的梦想家
尊贵格调样板间:将东方韵味与当代精神完美融合
RWD黄志达新作 | 中国院子:流淌的巴洛克圆舞曲
2700㎡高级灰纯粹极简艺术营销中心设计落地方案!
凌子达新作—量身定制和个性化设计
【2019高文安设计最新力作】 4000㎡郑州朗悦公园府营销中心
【山隐设计李健明新作】老宅换新颜,美出新天际
将黑白灰做到极致,展现最美的极简
投资100亿的文旅特色小镇酒店+尼山圣境设计
新作 | 新冶组:无锡M-KING KTV概念店 全景式巨幕KTV体验打造“M”娱乐主义新体验
《权威杂志美国室内设计》年度最佳项目榜单
上海 300m² 叠墅,当代海派空间的奢华感
新中式设计,简约大气的静谧空间
精彩生活 | 源于设计
回复数字“
1
” 或 "
福利
" 有惊喜
点个关注.证明我曾来过
点击“阅读原文”有惊喜
客服
消息
收藏
下载
最近




















