查看完整案例


收藏

下载
平和静好
把一切巧思交给光
这个 320 平米的复式公寓,结构造型奇特,户型稍微复杂,即便是这样,我们的设计师也能攻克难点。抛开冗杂布置,享受开阔空间,另外
空间质感交由灯光完成,选用偏向自然光的光源,在所有较暗角落安置适配光源,是设计师在物理层面完成的一种平衡。
整个房子采用米白色为主色调,搭配以部分黑色的物件调和,点缀些昏黄的灯具修饰,不谓孤芳自赏。
家具的选择同样是设计中重要的一环,平直的木板与蓬松的沙发,一张一弛。
平衡设计与自然让家更多深入生活
洗衣房、保姆间等琐碎场景被整体化处理,整齐收纳进“生活场景盒子”里。这样一来,目之所及,居室环境依然整体留白,窗外透入的自然景致也不会被室内多余线条打碎,得以完整进入室内。
原始电视背景墙窄短,改造后背景墙采用了整体护墙板做打底,鱼肚白大理石做背景。护墙板起到延伸空间的整体性的作用,既让长辈房的门做到了隐形,还融合了进门玄关的衣帽柜。
客厅的异形问题,让这个空间的划分成了一个问题,既让沙发摆放在空间上不会特立独行,还能让剩余的空间形成模块化。
设计师在客厅的后半部空间做一个地台,同时还做了拱形造型,拱形造型和地台做了发光,既可以让业主心爱的钢琴有的放矢,同时还能让业主在享受钢琴带来的美好的同时,还能让业主宛如置身在维也纳歌厅带来的浪漫感。这都是设计师的小心思带给业主的惊喜。
餐厨区和客厅空间上同处一室,视觉上却遥不可及。个性的宝格丽石纹吧台与餐桌,将原本的一丝烟火气,也涅灭在其中。
一层长辈房的线条同样简练清楚,几条平行线就勾勒出轮廓,除却床与灯,其他区域用白色烤漆做的柜子满足储物的同时也不缺乏精致。墙面和柜面的干净如此,如国画一般,留白使得整个空间更加精美,彼此更加协调。
光,将自然的气息尽然引入,在材质、色彩、线条、比例交织而成的韵律中,隐透出一种撇开外形而引发岁月思考的禅意,褪去芜杂,于纷繁间见美好。
洞石的魅力在这里显现的淋漓尽致,自然,蓬勃,大气,一个小小的客卫在这时突然展现了它的存在感。
二层主卧室床尾空间极大,如果全部拿来做成密封的柜子,确实是空间利用上了,但不乏缺少了一些灵动和氛围。像现在体现出来的设计手法,黑色与木色结合,多的便是自然静寂的气韵,自由穿梭,释放美感与层次。旁边明度高的沙发最大的作用不仅是休息,更是一种艺术的冲击。
在张弛有度的节奏韵律中与寂静之美形成对话,成为主人内心之境的谦逊表达。
风格多样
生活处处精彩
从空间美学角度及功能性出发,兼顾到空间温度和家的轻盈与轻松感,书房书柜采用了大象灰的材质,将儿童游乐区与一组书柜隔开来,将进入游乐区的门纳入隐形门,书房在隐形门和玻璃门围合下成为一个独立系统。
纯艺术化的极简空间会显得太过冰冷,为了达成优雅但同时“食人间烟火”的状态,设计师创造了不同材质线条之间的互动,金属与木材的排布以方框嵌入等方式发生变化和跳动做成的水吧台,空间由此增加了一些随意和玩味。在这里既可以享受书和游戏带来的律动,还可以独立享受美酒带来的惬意。
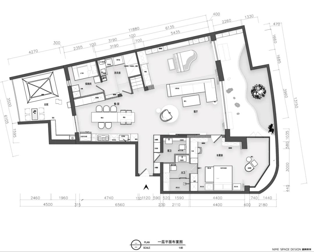
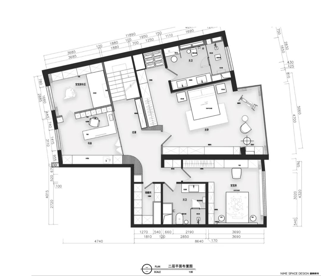
原始户型结构以及平面布置图
项目名称|公园大道
项目地址|中国 北京
设计公司|N I M E 凝美设计
设计总监|孙书章
参与设计|贾晓雨
项目管理|胡亚伟
部分品牌|Flos
设计面积|320㎡(小院部分未展示)设计年份|2023 年
客服
消息
收藏
下载
最近

















