查看完整案例


收藏

下载
空间格局| psttern:
Loft
项目地址 | Address:
北京 远洋新天地
主笔设计| Designer:
孙书章
项目面积 | Area:
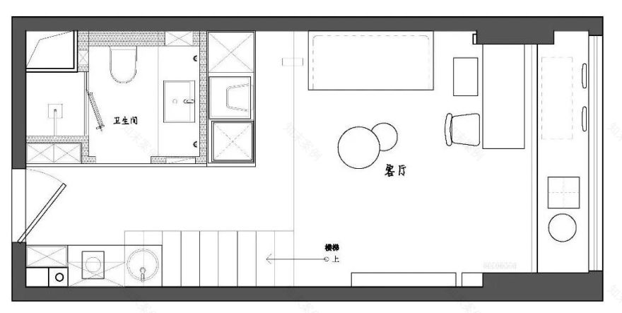
120㎡
01
电视背景墙
02
沙发背景墙
03
客餐厅
04
客厅俯视图
05
玄关
06
主卧
07
主卧第二角度
08
卫生间浴室柜
09
卫生间淋浴房
10
一层原始平面图
11
二层原始平面图
12
一层平面布置图
13
二层平面布置图
孙书章,凝美希何空间设计创始人
2019/ 国际IDC会员
2017/ 上海第十一届大金室内装饰奖
2016/ 金外滩设计入围奖
2016/ 新浪新势力榜设计师
2015/ 中国室内设计百强人物
2014/ 建筑装饰工程师 CBDA中国室内装饰协会会员
- END-
010-52668828 小雨
13716667829 小雨
联系地址
北京工人体育场21看台创意办公区3088室
客服
消息
收藏
下载
最近
















