查看完整案例


收藏

下载
“
Project information
”:
/
Pan lin Zhong Decoration design Co.,Ltd.
项目地址/Location:光明香樟园35-601
项目类型/Type:家装
建筑面积/Acreage:240㎡
风格/Style:美式
设计师/Designer:潘林忠、汤义祥
当疲倦的城市在深夜里渐渐沉睡,也许会有一片皎洁、美好的月光把它诗意地笼罩,细润的情怀在无奈的思量中重掀起一些意象。这就好似本案的配色带给我们的绝妙视感,优雅、舒柔、轻奢、精致,每个空间以不同色调的灰色加蓝色基调打造丰盈质感,墙面、沙发、地毯、挂画、饰品等,不同材质的融合与相互补充,也保证了此案视感的完整性。
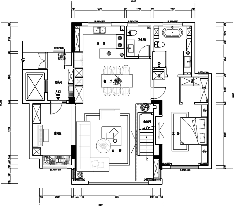
平面
布
局/‘Plane layout’
▲平面布局
效果
图
展示/‘Renderings show’
▲主卧效果图
主以轻奢安静的风格呈现,柔和的蓝色过渡在空间中更显大气,柔软舒适的面料,营造出一夜好眠的氛围,静谧中偏安一隅,在清晨阳光中唤醒自己,一壶清茶,开启一天的阅读时光。
▲次卧效果图
室内柔和的色调与材质,在尺与度之间,赋予居者丰富的感官体验。
▲客厅效果图
摈弃了繁复的装饰,设计师将材料、色彩、灯光等元素进行简化,无论是装饰配置还是色彩选取,都彰显设计师想体现的艺术腔调,摆件与油画相得益彰,大量的留白,少量陈设,降低物质带来的束缚之感。
———— /
作品往期回顾
/ ————
香缇雅墅·美式轻奢/让“心灵”慢下来
大港御景新城——现代
龙山雅苑—现代美式
■ Over ■
让艺术走进生活,让生活接近艺术。
Bring art into life so that living close to the art.
客服
消息
收藏
下载
最近













