查看完整案例


收藏

下载
项目地址 Location:橡树庄园
项目类型 Type:家装
建筑面积 Acreage:390㎡
风格 Style:现代美式
设计师 Designer:潘林忠
设计师助理 Assistant Designer:章丽瑶
设计说明 Instructions:现代美式风格,是传统美式风格在时代的催生下发展起来的,色彩上更加的丰富和年轻化,也更加契合现代美国人休闲式浪漫的性格特点,且彰显了以移植文化为主导的美国文化的魅力。
平面布置
地下室平面布置
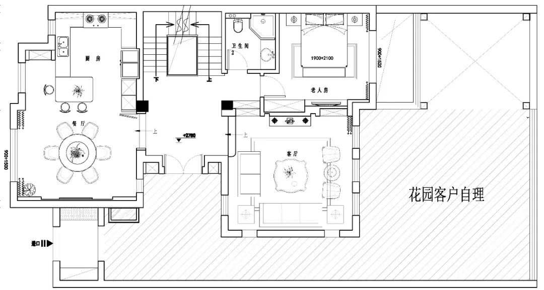
一楼平面布置
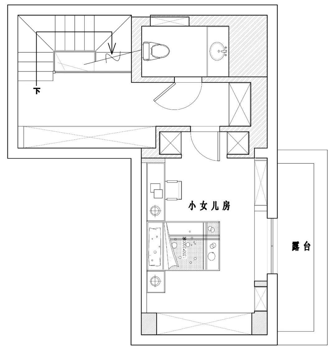
二楼平面布置
三楼平面布置
客 厅
餐 厅
书 房
主 卧
次 卧(一)
次 卧(二)
客服
消息
收藏
下载
最近












