查看完整案例


收藏

下载
#关于业主
这是我们最近做的一套案例,面积有 135m²。户主是一对三十五岁左右的夫妻,丈夫在银行工作,妻子是互联网高管。因为行业属性,夫妻双方常年都很忙,忙着为生活打拼,没有太多时间享受生活。这一次买新房,户主夫妻俩沟通过后决定工作之余还是要好好享受生活,也多陪陪孩子。户主们都喜欢简洁、明亮的风格,因为家里有一个读小学四年级的孩子,所以希望房屋有温馨温暖的感觉,这样他们可以跟孩子一起在家中度过温馨快乐的时光,陪伴孩子一起长大。在设计师和户主的共同讨论下,这一套房屋的整体风格选择了现代简约的风格。
#房屋基本信息
户型:两室两卫一厅
面积:135m²
风格:现代简约风
常住人口:3 人
位置:上海市普陀区
#平面布置图
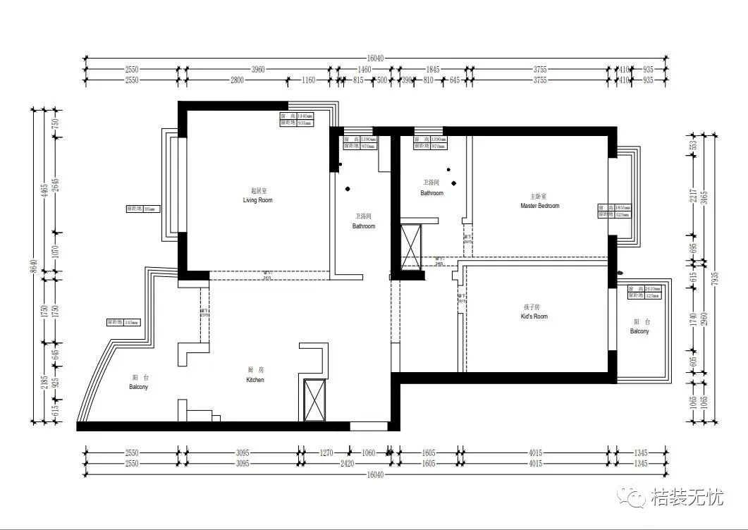
原始户型图
这是这套房子的原始户型图,两房的格局,包含两房一厅两卫,对一家三口的生活是足够的。
户主希望在保持房屋实用性的同时,最大程度地做一些有利于提高生活幸福度的设计。
户主李女士和她丈夫,他们对这套房子的需求如下:
1.想要一个独立玄关
2.因为有一个孩子,所以想要足够的收纳空间
3.希望服务空间,即建筑主体的功能空间大,保持空间流动性,不要封闭,户主喜欢敞开,明亮的感觉
4.喜欢开放式厨房,想要岛台
5.阳台需要一个休闲区
6.希望有更多提高生活舒适度的设计
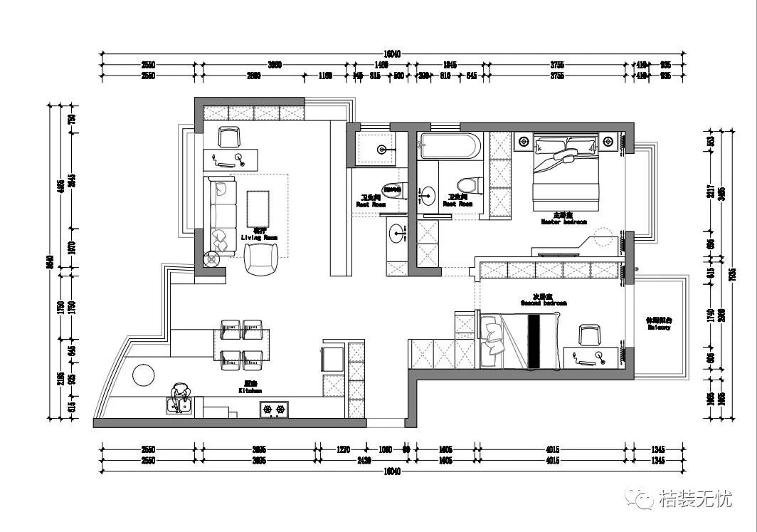
改造后
改造后平面图
为了满足户主想要开放式餐厅的需求,在下图中被标红选中的位置,砸掉了厨房和阳台间的一堵墙,在被拆墙的位置设计了开放式餐厅和岛台。这样户主一家人进入厨房区都不会拥挤,一家人在做饭时能有更多的互动时间,也能培养孩子的自理能力。
玄关
入户后,设计了独立玄关区,满足户主想要独立玄关的需求。无把手大白柜做到顶,增加收纳空间,下方做鞋架设计,既清爽又整洁。玄关区用地板和地砖划分区域,设计了一个无下沉的落尘区,方便玄关区的打扫。玄关处还放置了一个木质换鞋长凳,不管是户主夫妻俩还是小孩坐在这坐着换鞋都很方便。
右侧墙体上挂洞洞板。洞洞板上可以挂一些装饰物,增加玄关处的美感,也增添了房子的生活气息。
洞洞板还可以放一些小物件,增加收纳空间,比如钥匙、雨伞等等。
从玄关走出来,右侧是一套顶天立地的无把手衣柜,老鼠灰颜色的柜面和玄关右墙颜色相配,融洽不突兀,简约有格调。
这里的空间做了一个开放式的衣帽区,方便收纳和换衣,也有足够的收纳空间。一家人的出行物品和行李箱都收纳在这,拿取方便。衣柜上下都没留缝隙,免去了像常规款衣柜一样,需要另外花时间打扫上下缝隙。
走廊
玄关往前走,站在走廊处,左边是开放式厨房和客厅,右边是次卧和主卧,前方则是卫生间。
因为户主希望生活的舒适度高一些,所以通过布局,很好地将动区和静区分离,能保证当人在厨房、客厅这边动区活动时不会影响、打扰到在卧室休息的人,也保护静区的隐私。
厨房
从走廊往左走,就到了厨房。
厨房做了开放式厨房,是 L 型结构,冰箱摆在 L 型厨房短的一边,油烟机和灶台、洗菜池都在 L 型结构长的一边,这样能合理有序地利用整个厨房空间。
洗菜池前铺了一排防滑砖,让下厨更安全。奶灰色橱柜与灰色玄关隔断墙颜色接近,不显得突兀;暖色调也让空间更温暖更有生活气息。橱柜布置很简单,既增加了收纳空间,又很好打扫。
餐厅
餐厅就在厨房边上,户主想要的岛台跟餐桌并排放。因为户主中餐做得少,主要做西餐,所以不用担心开放式厨房的油烟问题。
粉色椅子给餐厅增添了一些小清新的感觉,配上小花草的装饰,生活感十足。
餐桌旁是岛台,白色桌面,配上吧凳,坐在这舒适感十足。
岛台的另一面做了抽屉设计,增加了收纳空间,大大满足了屋主的收纳需求。
阳台
阳台选用落地窗,既增加了采光,保证岛台和餐厨区采光充足,满足了户主对屋内明亮的要求。这里同时是一个多功能阳台,洗衣机放在这增加对空间的利用效率,上方打造收纳柜增加收纳空间;另一半作锻炼区,平时在这里锻炼身体。户主同时还可以欣赏到大面积的窗外绿林风景,休息时,在岛台旁坐着歇息喝东西,欣赏窗外的风景,是户主希望有的生活状态了。客厅
从阳台转身往右走就到客厅。整个空间以灰色调为主基调,实木复合地板通铺,安装了中央空调。
从餐厅方向看客厅,能很清楚地看到客厅全貌。充满童趣气息的绿色秋千,给家庭生活增加了很多趣味性。蓝灰色真皮沙发给整个空间增添温暖的生活气息,也和空间的整体色调协调一致。
为了满足户主的需求,我们并没有将客厅单纯地做成客厅,而是在客厅另一半区域做了一个小书房,让客厅变成了一个多功能房。一房多用,提高了空间的利用效率,也给一家人提供了感情互动空间。
小书房开放式书架实用性高,拿取书籍方便;一整面墙的书架也是客厅的一大装饰,增添书香气息,更有利于培养孩子的阅读习惯。
书房旁也打造了一个小的落脚点,及窗高的一体收纳柜增加收纳空间;黑色高凳,可以坐在这里看书或者看着窗外休息~
左右大面积窗户是百叶帘内置双层玻璃,既增加了室内采光,又保持了室外景色的完整性,户主们可以在这里欣赏窗外的风景,提高生活舒适度。
书架前足够两个人使用的书桌十分宽敞,既可以让户主夫妻俩同时使用,也可以让户主夫妻俩在这辅导孩子功课。上方增加一顶吊灯,有效保护孩子的视力。
从书架旁的落脚点往右,就是沙发正对面的电视背景墙。背景墙是简单的大白墙,没有多余修饰,和电视柜搭配起来却意外的不单调,再摆上一束小花作装饰,是户主想要的简洁的感觉了。
电视柜是实木老家具,跟户主沟通过后,我们将它保留了下来。这套电视柜复古味十足,也有极多的收纳空间,可以很好地满足户主的收纳需求。
卫生间
从电视柜往外走,穿过走廊就是公区卫生间。为了户主的家居生活更舒适,更惬意,这套房子保留了两个卫生间,一个公区卫生间,一个主卧卫生间。
公区洗手台外置,打造一个独立的洗漱区域,洗漱和卫生间内的活动互不打扰,节约时间,提高卫生间的使用效率。
卫生间内部使用灰色地砖,淋浴区和马桶区做干湿分离,不会将淋浴区外弄得湿哒哒,小孩使用更安全。
马桶是壁挂式马桶。马桶后的墙壁做了收纳柜,中间挖空做了一个壁龛,可以增强收纳能力,一些消耗品如纸巾等都可以收纳在柜子里。
走出公区卫生间,就到了主卧。走进主卧,卫生间在主卧内部左边。
主卧的卫生间整体色调是灰白色调,灰色保持简约感,白色增强空间亮度。主卧卫生间没有做干湿分离,有安装浴缸。洗手台下方白色收纳柜,可以将纸巾毛巾等物品放在里边。
主卧
主卧的卫生间往右走就是主卧的主空间。主卧主空间结构方正,给人简洁大方的感觉。
主卧延续了客厅的设计,实木复合地板通铺,美观又自然。
一眼看过去就是鸽蓝色的窗帘和亮蓝色的床头背景墙、飘窗。实木大床是保留下来的老家具,是户主喜欢的家的感觉,还有那一点点怀旧感。
床头左右两边放置相同的金属细腿床头柜,上墙的金属金色墙头灯,有现代简约的工艺感,也塑造一种对称的美感。
窗帘选择了和床头背景墙的同色系的颜色,让卧室的整体色调更和谐。拉开鸽蓝色窗帘,就是主卧的大衣柜。顶天立地的无把手白色大衣柜,满足两个人的衣物收纳,丝毫不杂乱。窗帘拉起来,衣柜就被藏起来了,整个卧室简约有格调~
主卧大床旁边就是飘窗,选用大面积玻璃窗,采光能力强。
因为女户主工作是互联网行业,常年加班,睡眠质量并不算好,鸽蓝色窗帘遮光强,能帮助户主睡眠时不被打扰。
飘窗其实是一个小小的休闲区,大块玻璃可以保留室外完整风景,放一张毛绒坐垫,坐在飘窗上休息、看风景也是很不错的选择。
从飘窗往右走,是一个简单的绿色收纳架。白色收纳箱放一些不常用的物品,堆积在收纳架上,不占过多的空间。
次卧
主卧斜对面就是次卧,也就是儿童房。
户主对儿童房的要求是要有足够多的收纳空间。因此我们在进门处就设计了一整面的顶天立地无把手大衣柜,能收纳孩子的四季衣物和其它物品。衣柜跟主卧的衣柜款式相同,白色柜面跟房间整体风格很搭配,提亮房间的颜色,不至于让房间因为刷了灰色墙面而显得黯淡。儿童房的床是木质大床,自然温和又质朴。
因为儿童房需要更强大的收纳空间,儿童房的空间又比较小,地下没有足够的空间,所以做了悬挂式上墙收纳柜。悬挂式收纳柜和一整面的大衣柜保证了儿童房有足够多的收纳空间,不管是孩子四季的衣物、被褥,以及其它一些书籍、玩具、各种物件都能有收纳空间,能很好地保持儿童房的整洁和清爽。
床的旁边就是可调节书桌,特意选购的可以根据孩子身高调整的书桌,实用性高,性价比高,不用担心孩子身高长得太快而需要多次更换书桌。
小小的深蓝色轮滑收纳架,方便移动,也适合放书和文具,其它一些小物件也适合放在这里。
再往外走,就是一大扇平移落地窗,外面是休闲阳台。
大扇的落地窗保证儿童房的采光与通风,鸽蓝色的窗帘遮光性很好,晚上拉起来能保证孩子的睡眠不被光线影响。
休闲阳台设计在这能让孩子在学习之余放松身心,是孩子玩乐的小天地。
好啦,今天的分享就到这里!
身边
装修案例分享、有家装疑虑困惑、想了解目标风格设计案例……欢迎后台留言或私信小编~~
点击
【阅读原文】
即可在线一键预约
免费量房+免费报价
往期推荐
任务吗裂变宝是什么?
爱我请给我好看!
客服
消息
收藏
下载
最近























































