查看完整案例


收藏

下载
▲《圆锥相交》,戈登·马塔-克拉克,摄影:马克·佩提特金
“切割可以是重新定义空间和结构的画笔……原本平淡无奇的空间,当你试着在过去与当下相交的情境中对其进行叠加与解读时,纵横交错的丰富性油然而生。每一座建筑都有自己独特的语言。”
——戈登·马塔-克拉克
▲项目影片:朱润资 + 郭歆洁工作室
城中村依偎在现代化的都市中,是城市化进程的遗留。拥有近 1700 年历史的南头古城,位于深圳的城市中心,从昔日的富庶古都演变为如今拥挤喧闹的城中村。
▲南头古城
古城内的蜿蜒小巷、广场和胡同,错综复杂、紧密相连,吸引着无数游客的驻足好奇。当地居民、街头小贩、嬉闹孩童和流动人口亦在此栖居。
如恩将位于南头古城的一栋居民住宅,改造成为设有十一间客房的精品酒店。
南头古城的街头巷尾充盈着勃勃生机。
如恩试图将日常生活的景象纳入设计——人、物件和他们所处的环境,都是灵感的来源。
为了延续城中村的市井烟火,如恩对原建筑进行切割,将外部景象引入的同时,也在内部创造出全新的公共空间。在这一过程中,设计师如临考古现场一般,将诸多材料和建筑结构层层剥离,建立起过去与当下的对话。
▲改造前的居民楼
斯维特拉娜·博伊姆(Svetlana Boym)的“反思性怀旧” (reflective nostalgia)理念贯穿于项目的研究及设计过程。如恩并非简单地模仿过去事物的表象,而是试图发掘隐匿于过去的各种可能,并赋予当代文化更多的活力。
▲建筑立面
如恩以两种不同的建筑语言,应对城市复杂的肌理与碎片化的形态:建筑的立面由轻盈的屏罩包裹,而顶层则以厚重、富有表现力的形式,为古城的天际留下一道别致的轮廓。
▲建筑顶层
南头古城的风景日新月异。如同熙攘的巷道一般,古城中各栋楼房上的屋顶平台也是别有一番景象。简易搭建的小花园与蔬果园点缀其中,描绘出高低不一的景观。
▲顶层餐厅
如恩在顶层设计中采用了平屋顶的形式,并加盖了金属结构。对于空间局促的城中村而言,这一向上伸展的空间,将当地巷道生活的画幅延伸至屋顶,为公共空间带来了新的诠释。
▲上图:北门 | 下图:西门
建筑入口及公共区域有意地串联并入当地的街道小巷之中,融入南头古城独特的城市肌理之中。沿着小巷可直接抵达,随后步入建筑中心,如同邀请邻里朋友来自己家中做客一般。
▲前台及餐厅
▲公共空间
穿过巷道步入酒店后,访客站立于公共空间,视线随着轴线不断移至向上。原本将各楼层连接起来的楼梯井,被切割、扩宽,创造出全新的垂直庭院。
▲垂直庭院
切割开的建筑立面及上方的采光井,将自然光及建筑外的街景引入至建筑内部。
▲切割开的建筑立面将市井生活引入建筑内部。
全新的金属楼梯悬置于垂直庭院之中,访客由此到达各层客房及屋顶平台。新与旧在建筑内并存融合。
▲客房
切割并非仅仅意味着破坏,它同时也是空间与意义的创造。
▲客房
深圳南头古城有熊酒店的设计融入了城市特征,扎根于城市的兴衰,使私人化的生活历史变得清晰可辨,追随着城市不断向前的步伐,须臾不停。
▲左:广东地区用于阻隔、通风的趟栊门 | 右:客房房门
▲切口
不断变化的“切口”仿佛开启了一个全新的入口,可以通往过去,亦可进入平凡而奇特的当下。
设计图纸 ▽
△一层平面图 ©如恩设计研究室
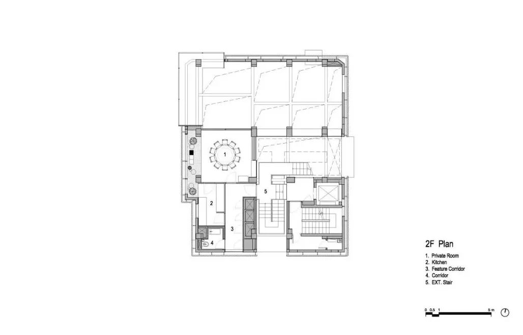
△二层平面图 ©如恩设计研究室
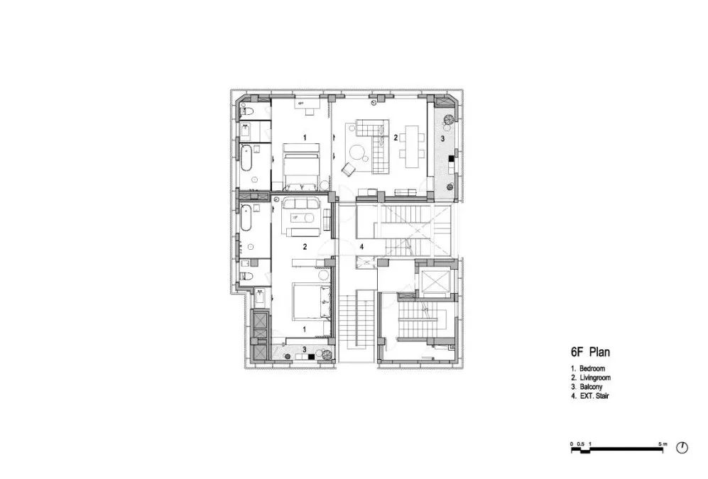
△六层平面图 ©如恩设计研究室
△七层平面图 ©如恩设计研究室
△八层平面图 ©如恩设计研究室
△ 建筑剖面图 ©如恩设计研究室
△ 场地平面
图 ©如恩设计研究室
深圳南头古城有熊酒店
地点 | 广东省深圳市
时间 | 2021 年
业主 | 深圳市万科发展有限公司
建筑面积 | 1,370 平方米
主持建筑师 | 郭锡恩,胡如珊
主持资深协理:陈建全
资深协理 | 张堇盈
协理 | 许建
设计团队 | 杨秉鑫,王典,程宁馨,叶凡,Bernardo Taliani de Marchio,贾城,唐晓棠,李杰祺,郑芃芃,周原仰,余琪晨韵,王志康,舒桐,宋贞泰,刘凯妮,黄惠子,王吕齐眺
摄影 | 陈颢
影像 | 朱润资,郭歆洁工作室
建筑设计 | 如恩设计研究室
室内设计 | 如恩设计研究室
软装设计及采购 | 设计共和
顾问
设计管理 | 万科集团城市研究院
当地设计院(建筑) | 深圳市博万建筑设计事务所(普通合伙)
幕墙 | 深圳市朋格幕墙设计咨询有限公司
当地设计院(室内) | 深圳市标高装饰设计工程有限公司
灯光 | 大观国际设计咨询有限公司
景观 | 深圳市园冶环境设计有限公司
施工方
施工总包 | 深圳市西部城建工程有限公司
幕墙 | 上海巨诺实业有限公司,深圳市西部城建工程有限公司
室内 | 深圳市创宝装饰工程有限公司
钢结构 | 深圳市创宝装饰工程有限公司
门窗 | 旭格国际建材(北京)有限公司
有熊酒店
探索在都市的人文度假方式
▲苏州有熊酒店
有熊品牌创自中国人文圣地江南,是万科酒店旗下,以“人文度假”为品牌定位的精品酒店品牌。有熊的创始店:苏州敬文里,原名“嘉园”,是世界建筑大师贝聿铭叔祖父、民国“颜料大王”贝润生的宅子,万科酒店及度假事业部特邀建筑师青山周平主创设计,由此开始了“有熊”的品牌历程。始有“有熊”,江南梦的发端。
万科集团高级副总裁、万科集团酒店与度假事业部首席执行官、悦榕中国董事长丁长峰表示,有熊酒店品牌以江南文化作为“有熊”的精神内核,以人文散步的方式,游走先贤的足迹,致力于成为人文度假型酒店的行业标杆。
如恩设计研究室
由郭锡恩和胡如珊于 2004 年共同创立,是一家立足于中国上海的多元化建筑设计事务所。
如恩设计提供国际化的建筑、室内、整体规划、平面以及产品设计服务。
如恩目前的项目分布在很多不同的国家,拥有来自全世界各地的员工,使用超过 30 种语言。
不同文化背景组成了如恩的设计团队,正是团队的差异独特性增强了我们的设计理念:以全球化的观念结合多元、重叠的设计理念来创造一个新的建筑范例。
南头古城,又称“新安故城”,地处珠江入海口东岸,位于广东省深圳市南山区南头天桥北,占地面积约 38.5 万平方米,建筑面积约 51.7 万平方米。
南头古城包括牌楼、南城门、新安县衙、新安监狱、海防公署、东莞会馆、关帝庙、文天祥祠、鸦片烟馆、接官厅、聚秀楼、义利押当铺、陶米公钱庄等十余处人文历史景观。自东晋咸和六年(331 年)设置东官郡起,已有近 1700 年的历史,是深圳特区成立前宝安县政府所在地,被誉为“深港历史文化之根”“粤东首府、港澳源头”,是深圳城市的原点,南头古城承载见证了深圳中心的“迁移与回归”,是历代岭南沿海地区的行政管理中心、海防要塞、海上交通和对外贸易的集散地。南头古城主街风貌以岭南广府建筑风格为基调。
1988 年,南头古城被公布为深圳市文物保护单位。2018 年,南头古城被列为“深圳十大特色文化街区”之一。
客服
消息
收藏
下载
最近







































