查看完整案例


收藏

下载
这是一套100平米的二手房,整体改造以现代简约风格的空间为主,在简约灰的空间,搭配上粉色调的软装装饰,让空间显得舒适而又浪漫惬意。
图·赏
picture
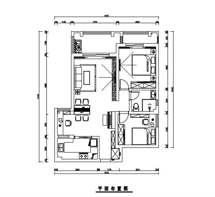
平面布置图
客厅
▲
客厅以简约舒适的氛围,素雅的地毯上摆着灰色布艺沙发,边上一张粉红色的单人沙发椅,还有双拼圆形茶几布置,呈现出一个端庄时尚的现代感。
▲
沙发墙的几幅抽象装饰画,角落还有一盏落地灯布置,搭配上素雅的窗帘,整体给人以舒适而浪漫的气质。
▲
整个客厅以灰色+粉红的色彩搭配,带来的是一种素雅温馨的空间氛围。
▲
改造前的客厅。
玄关
▲
宽长的玄关,门口旁边定制了一个鞋柜,还有剩余的位置,正好主人的钢琴可以摆在这里,让空间更加丰满实用。
▲
改造前的玄关。
餐厅
▲
餐厅在暖灰色墙面的基础,布置黑色铁艺架的餐桌椅,餐桌是石材质感的台面,搭配驼色皮艺坐垫、靠背的座椅,顶上灰白粉色的吊灯,餐桌上的跳舞兰的果盘布置,让用餐氛围显得温馨浪漫好情趣。
▲
餐厅背景墙上挂了一组大小不一的装饰画,还在中间加入了一面挂钟,显得文艺而实用精致。
厨房
▲
厨房在淡雅的暖色调地面墙面砖空间基础,装上橡木纹理的定制橱柜,让做饭的氛围也显得浪漫精致而惬意。
▲
改造前的厨房。
书房
▲
书房定制了一张书桌,书桌上方是开放书架,为主人提供了实用丰富的书籍收纳存放位置。
卧室
▲
简约灰色调的卧室空间,布置上实木架床铺与灰色的床靠,搭配粉色调的床单被套,让空间充满简约温馨的浪漫氛围。
▲改造前的卧室
。
每人对家都有不一样的期待,
期待它变成自己理想的家的样子,
而丰立装饰能为您圆梦。
丰立装饰
你有一个免费装修设计名额待领取~
因为喜欢,所以专业
点击【阅读原文】
即可在线一键预约!
客服
消息
收藏
下载
最近




















