查看完整案例


收藏

下载
风格:美式
面积:128m²
主要材质:仿古砖、实木墙板、装饰壁纸、天然石材等
美式风格设计理念表现为追求、高雅的古典风格。
家具为古典弯腿式,家具、门、窗漆成深木色,擅用各种花饰、丰富的木线变化、富丽的窗帘帷幄是西式传统室内装饰的固定模式,空间环境多表现出华美、富丽、浪漫的气氛。
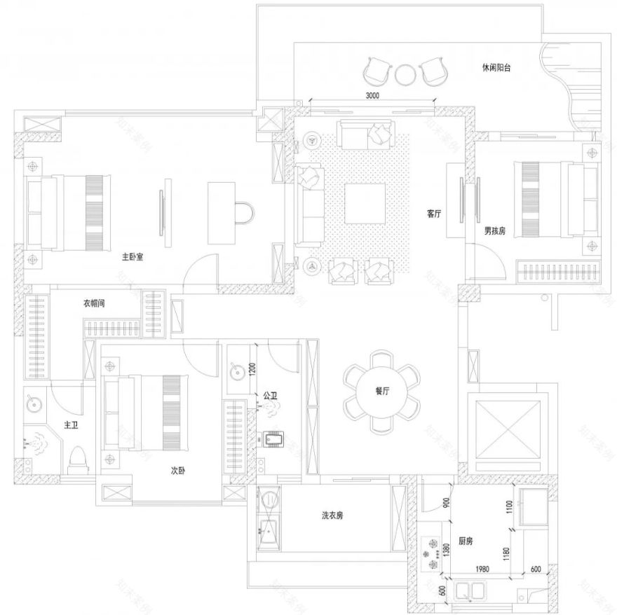
户型设计
-Apartment layout design-
-01-
客厅/Drawing room
客厅采用嵌入式石膏吊顶,搭配精致的水晶吊顶,营造出一种怀旧、浪漫的感觉。以大理石作为电视墙装饰材料,光泽感极佳。
复古造型的组合沙发,以及茶几都具有上乘的质感,搭配复古造型的角几,让人迷失在时光隧道中。
让美式古典风格得以进一步的彰显。窗帘采用双层设计,一层为奢华的提花布,另一层则为轻薄的纱帘,兼顾了保护隐私与透光性。
-02-
餐厅/Dining room
餐厅很好的借助了阳台的自然光,白天透亮,夜晚可以欣赏远处的夜景,享受远方来访的微风。古典的吊灯遇见美式造型桌椅呈现厚重的质感,开放式酒柜再度提升家居格调。
-03-
厨房/Kitchen
厨房用复古砖和全套定制橱柜打造传统的美式烹饪场所,细节处的纹路强调了古典元素,简约耐看。窗户上方的特别处理让这一方空间化身安徒生童话故事中的场景。
-04-
卧室/Bedroom
卧室以功能性和实用舒适度为主要设计理念。采用非炫目式灯光,显得温馨舒适。在饰品布置上,大多都是用成套的布艺来装饰房间。
采用非炫目式灯光,显得温馨舒适。在饰品布置上,大多都是用成套的布艺来装饰房间。
-05-
阳台/Balcony
阳台的防腐木作为顶面饰面,搭配绿植来营造整个空间,使得真个居家有列一方独立与自然亲近的空间。
关注华浔最新消息
待你足不出户线上参观
想看自己家的户型方案
或在建工地、完工案例
扫码添加联系华浔小陈
▼
17705050735
❒
下期见
-END-
CASE REVIEW
往期一览
【华浔定制
家】
100m²现代简约平层,关于灰色的逸韵高致
点击图片可跳转查看详情
【华浔
定制家】
320m²极简复式,极致黑白,光影的解构师
点击图片可跳转查看详情
客服
消息
收藏
下载
最近






















