查看完整案例


收藏

下载
NOBLEYOU
云起狮子 宴飨牡丹
薄小飞
采访撰文
商业空间
项目类型
星币传说·图图设计
采访地点
徐 波
设计师
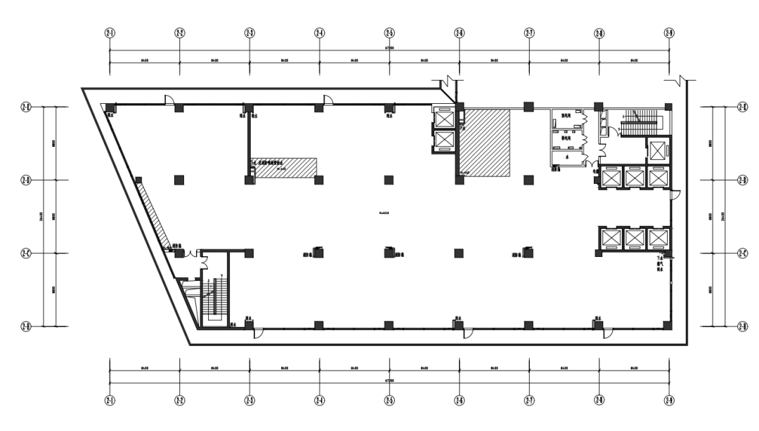
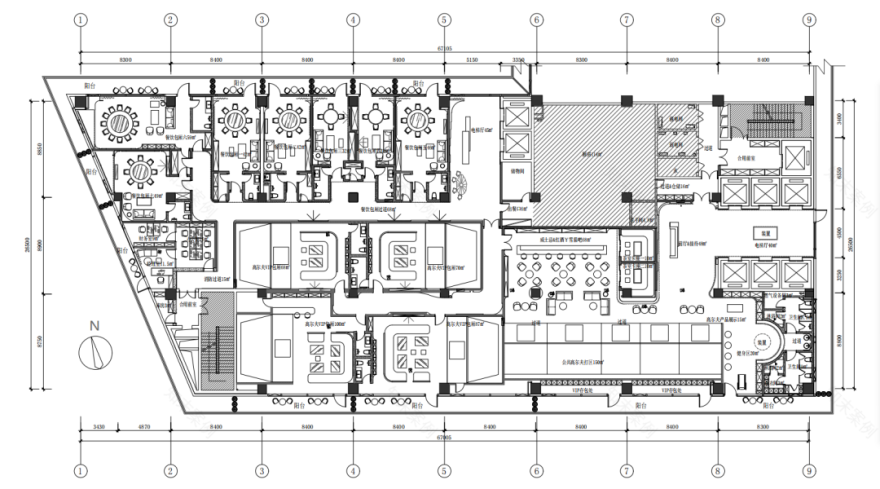
平面布置 FLOOR PLAN
?原始平面图
?平面布局图
设计是有语境的,“消费者需求”是本案设计语境围绕展开的核心,设计师徐波及团队,把更多的设计关注点放在围绕消费者的需求上,他们反复推敲,总结、体会,摄入全方位的换位需求的经验,位于曲江南湖之畔与万众国际商圈双坐标的 2000 平方米雲上高尔夫俱乐部是此次的设计主场。
图图设计团队精心斟酌雲上高尔夫俱乐部三大功能版块的设计内容梳理,让每个需求在设计下有质有序,“智慧”并存。
/P U B L I C /
金 · 無 自 性 隨 工 而 琢
事 · 因 人 而 成 遂 起 獅 子 像
初见乍到,设计“诉说”,黑色高贵,金生水而引财,作为高端的俱乐部会所,气质定位犹然代表品位客群,因此,金色和黑色从入口处开始以不同的设计形态穿梭在各个区域版块。从公共的电梯抵达,开启第一个通道关系,前厅的“金刚狮子”,表达空间的接待量和领域气量。
空间看似“随遇而安”,其实通过设计巧妙计算,整层的原始空间,梁柱居多,不拆除去掉,随遇而安的进行设计包裹和转化,弱化和消隐柱体的存在感,成为每个区域得到一部分。
门厅入内,作为会员前厅接待功能,亦要留足舒适宽敞的等候区,作为散客会员区的主要功能存在,高尔夫训练场与前台关系视角兼顾,更快的提升接待效率和服务感受,减少等候的时间,训练场可以满足多种功能转化,看赛事、做训练可以多样切换。
空间的功能深化,设计赋予多样满足,打造尊贵的娱乐方式。存储区、高尔夫运动相关产品展示区都被充分考虑,延展黑色和金色的元素,在公共服务区应用。黑色作为底色,在灯光下高级稳重;金色的门和洗手池切入尊贵;圆润的线条从顶面围合,瞬间软化了黑色和金属的硬朗,让空间层次有间隔,又节奏丰富,运动后的洗浴均可在此完成。
设计紧抓需求的核心输出,作为公共会员区域,运动和放松是两个关键词,犹如空间天然的“减压器”,从运动模式切换到娱乐模式,开放式的酒吧区和半开放的茶区无缝衔接。超长的吧台是设计的多面考虑,兼顾空间中所有的备餐需求,亦发挥酒吧功能,陪同来的朋友和客人都能被舒适安排,序列的酒柜展示酒品,与椭圆的柱子相呼应,一个椭圆灯带解决了酒水区氛围和灯光,温暖的壁炉不仅仅是装饰,设计师希望能够弱化商业的距离,增加家的温暖感,同时发挥冬天的采暖功能,一幅自然的型材,被光影穿透,成为独有的艺术型材画,与吧台顶面的弧形水纹板映衬反射,放松下来,当蓝调响起,身心无比放松,眼观挥舞球杆的他,摇曳的威士忌诉说尊贵生活方式。
/E X C L U S I V E/
光·在门扇上小憩
門後·通往另一個夢
山水意境以更高级的方式在空间里体现,其型材又“肩负”穿针引线的作用,让整个空间的“血脉”相接,比如水波纹,带着内涵寓意在空间继续展开。回到设计思考的起点,尊贵感、私享性、功能承载等,面对更高的消费需求,设计师规划了 4 个不同大小的室内高尔夫包间,以实现满足独立高尔夫包间的需求。根据空间面积的不同,进行不同的功能设计,基础的高尔夫功能作为通用标准,吸音防撞围绕室内高尔夫设备就势,这里亦兼具了高端商务的功能,将消费人群精准分类。功能的切换也很重要,包间主要是一对一的高尔夫高级私教训练,同时兼容 KTV 的娱乐功能,高端的商务和社交都被充分考虑。/ R I C H / 雲宴-淮扬吴师传承 勿谴虚觥筹
围绕消费的分类需求,设计的另一个版块需要更加讲究,专属的总裁电梯直达,展开雲上高尔夫俱乐部的另一个专属通道,与散客会员区域在实际使用中空间并不相通,专属的通道区域一分为二,一部分作为一对一的室内高尔夫私教训练包间,另一部分作为“雲宴”餐厅包间使用。
仁者悦山智者悦水,山水的形意设计师从此处前台区展开元素延展。
尊贵生活方式,是君临顶级消费的一个超级大词,尊贵能为成功提供横梁标尺,也是努力奋斗所获的价值转化之一。
设计师徐波在考虑雲上俱乐部功能的前提下,“雲宴”应运而生,成为本案中第三大重要设计模块。
万众国际的幕墙是亮丽的风景线,也是最好的视角,俯瞰南湖美景,包揽曲江夜景之美,开阔的观景阳台都被纳入雲宴体系,就着最美的四季流转,展开雅致无比的就餐。
吃饭需要更雅一点。
顶面艺术漆轻轻一笔,黑色的护墙板和金属线延展整个空间的设计元素,悬空的顶被灯光衬托而出,“生长”出去,视觉上无限纵深延展,茶区、备餐区、卫生间是每个包间的标配,绿植景观将延续的露台自然分隔,保证私密又不阻塞。
即使整个大的体系系列已经足够充分和考究,设计师还是希望再想一想,再想一想,穿越雲宴所有的过道,包裹和规避柱子,设计笔触跳跃一下,露出一个柱,稍作停顿,慢下来,才能细细品味空间带来的质感,才能思考生活的节奏。
妙行山河人间味,横亘雲上,挥杆自信,洞见极致,原来,生活可以被这样诠释!
ABOUT PROJECT
项目名称/ Name | 雲上室内高尔夫俱乐部
项目类型/ Type | 商业空间
项目位置/ Location | 中国· 西安
项目面积/ Area | 2000 ㎡
完工时间/ Time | 2021.08
主创设计师/ Design | 徐波
深化设计/ Deepen | 李侃、冯豪
照明辅助/ Light | 光道照明
项目摄影/ Photo | 张晓明
文案撰写/ Writing | 薄小飞
ABOUT DESIGNER
徐波
西安图图建筑设计事务所设计总监
关注筑客西安
合作联系
投稿
对话框回复“投稿”
咨询&找设计师
客服
消息
收藏
下载
最近








































