查看完整案例


收藏

下载
取名于"人有德行,如水至清"的湖州德清
,有着得天独厚的环境优势。我们
将自然与现代美学融入
金成大秦叠墅样板间中,
让空间回归艺术,构筑诗意的栖居之所。
宁静有序
232㎡
“生活不仅是工作、诗和远方,也需要只有归家才能带来的温暖。”
低调、沉稳的灰色基调把握室内情绪。大理石形制的不规则茶几,在几何造型中增强立体感,再搭配上天然的草绿色,仿佛回归自然的同时带有复古的时髦特色。
设计师选择棉麻材质作为床品铺陈,灰色的主色调让居者在这里卸下疲惫,在营造宁静舒适氛围的同时,也体现出家的温度。
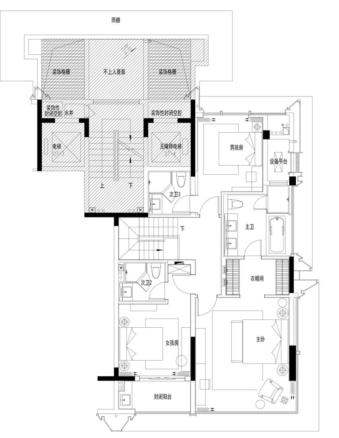
一层平面图
蓝色赋予空间朝气蓬勃的气质。设计师将篮球作为设计主题,打造出一间小男孩的私人天地。
草绿色调照应出森林的种种细节,给室内带来令人放松、恬静的自然气息,龙猫与花纹壁纸相映成趣,孩子的童心在这里打开。
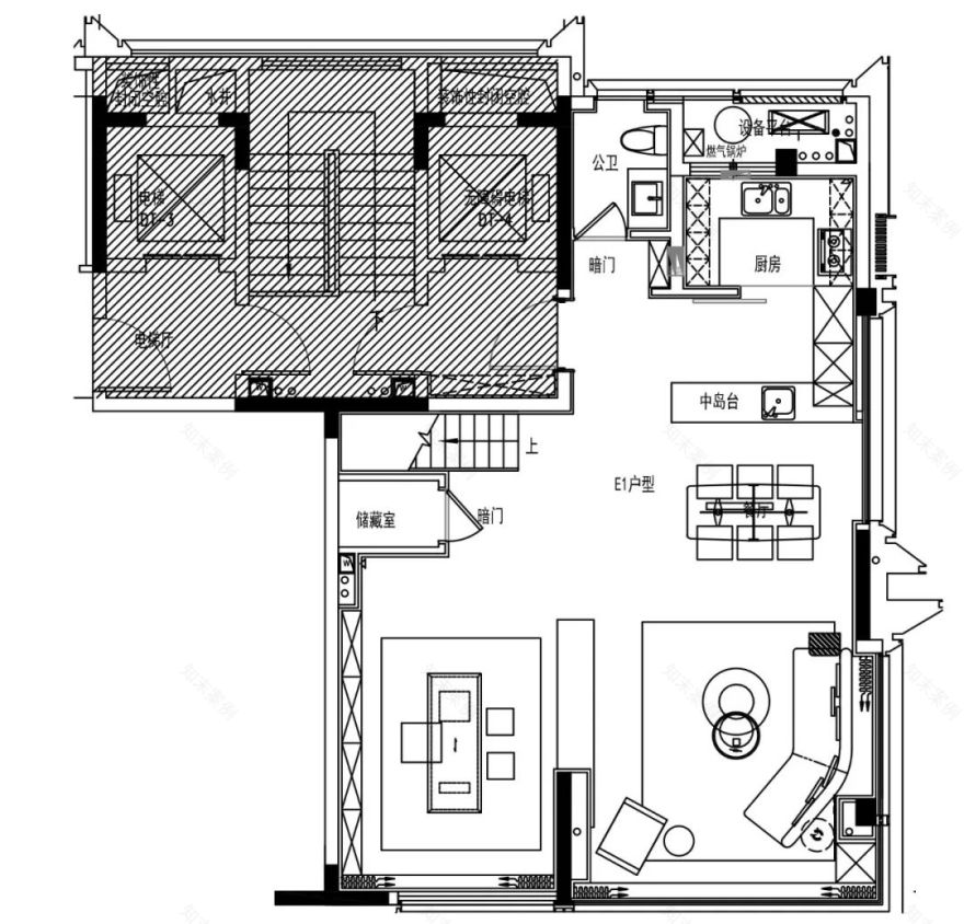
负一层平面图
音乐是聚集灵感与激发想象的艺术。设计师运用胡鑫的音乐影像技术,将音乐可视化并融于生活。
长条形制的茶桌褪去过多的装饰,与旧日好友于此享受慵懒的时光,偷得浮生半日闲岂不美哉?
负二层平面图
理性与感性
119㎡
“设计的灵感应该来源于对生活的炽热情感。”
私密与聚合并存,是设计师为一家人创造的空间理念。客厅空间灰色为基调,棕色单椅增添空间温度,呈现出理性的秩序美感。
设计师打破室内空间界限,餐厅形成流动的开放空间。在这里可以满足家人们之间的情感交流。
开放式书房打破空间局限性,为居者提供灵感来源。棕色书桌与设计书架完美表达了理想与感性的相遇,令空间通透感十足。
一层平面图
睡眠空间延续客厅的调色盘。低饱和度的灰色占据整个空间,质朴的纹理与简洁的布局充满诗情画意,让生活回归原本的简单美好。
儿童房是孩子们的小天地。潮玩与滑板为孩子开启更多的奇思妙想,带领孩子开启冒险的世界。
揽月摘星于露台之上,三五好友在怡人阳光下谈笑,岂非人生一大乐事?
二层平面图
项目全名:金成大秦叠墅样板间
项目地址:湖州
软装设计:元禾大千
硬装设计:杭州典尚装饰设计有限公司
设计时间:2021.05
完工时间:2021.08
空间面积:232㎡/119㎡
甲方单位:祥新控股集团
特别支持:陈宁
摄影团队:又与空间—普尤
客服
消息
收藏
下载
最近













































