查看完整案例


收藏

下载
未来生活公式
加减乘除等于美好
THE FUTURE CITY
力高雍湖郡未来城销售中心
加减乘除,最基础的运算法则,人们计算正确答案,找到知识的出口;生活也是如此,通过精细的运算,解锁美好的理想生活。力高雍湖郡未来城销售中心位于济南济阳区闹中取静地段,元禾大千从心出发,发现设计与生活的平衡法则,透过细节与当代美学尺度的拿捏,打造集营销、康养、乐居于一体的满分理想人居。
加多情景,看见生活美好
懂生活的人,一直在为自己做“加法”,不断追求更好的生活,元禾大千向来善于以艺术之力为品质人居做加法,为生活营造更高的舒适度。
观湖逗鸟,无忧人间,接待区由一组自然之景拉开帷幕。经过手工捏制的艺术场景泛着匠人的温度,鸟儿停驻于芦苇丛间,透过材质向来者低吟牙牙余音,好一副“芦苇深花里,渔歌一曲长”的景致。
减化生活,吟颂自然栖居
生活的减法,有时也是一种必要。删繁就简,减少生活中的琐碎,把时间专注在自然与热爱上,静享闲适自在的时光。
而闲适自在恰恰是中国文人千百年来所追求的生活的至高境界。我们开启艺术之力,围造出一处集阅读、洽谈、饮茶品闲于一室的多功能空间。
¨归巢¨
明亮的书吧中有一处“归巢”风景,由元禾大千董事长马涛所担当设计。作品以“温暖和治愈”为内核,融入艺术思考——为这个具备“康养”作用的场域,重塑“家”一般的气质。
竹木编织带来自然力量,不断在空间中延展生长成巢,温暖与治愈在一侧悄然蔓延,蓬勃的生命力感染每位到来者内心。
《巢》
织布鸟守候在充满安全感的巢内,迎向每一个“归家”的人。
乘出疗愈
无论时代更迭,风格变幻,闲适自在永远是生活的最终追求。闲适自在并不止于美,在美以外,更是一种人生哲学与人生境界。
空间能量场包含许多因素,色彩与材质设计带来的视觉、触觉的舒雅感受,取一本书,沏一壶茶,坐看云起,阅读生活,疗愈日常,感受闲适。
除掉不合理。“幸福程度=目标实现值÷目标期望值”,这是著名经济学家保罗·萨缪尔森一个关于幸福的公式,对于心中的向往,实现值越大,幸福感越强,而对于生活中的烦扰,除去的越多,省心更多,幸福感便越大。力高雍湖郡未来城的打造符合绿色可持续发展,定义了健康建筑的标准,在未来二楼将会成为康养中心实际投入使用,真正地做到健康可持续,成为少有所乐、中有所享、老有所养的全龄健康社区。
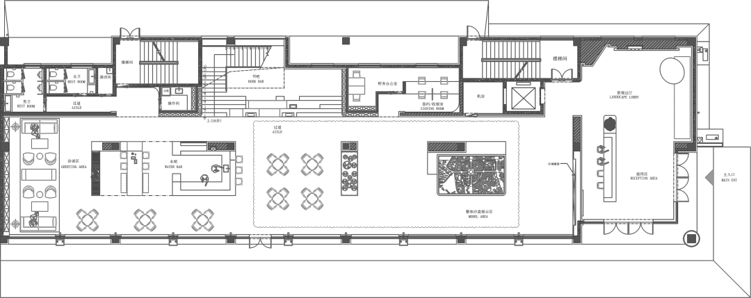
项目平面图
未来新人居 丰富新人生
样板间 265㎡
每一种人生,都寄托一种居住理想
每一处居所,都承载居者独特品味
日照起居室
我们追求里与外,动与静的兼得,希望有独属的空间承载宽阔的梦想。
客厅约 14.6 米南向四面宽,南北通透的格局,阳光美景不请自来,尽享大开间的从容日常。无论春夏秋冬,从日出到日落,光线角度不断变化,掩映四时美景,室内始终充沛明亮,照亮每个幸福的角落。
艺术之光伴随明亮的挂画映透进每个家庭人员的内心。阳光除了是具象的物理现象,也可以是抽象的表现。设计师选用一副层层漾开的纹案肌理艺术画置于餐厅中央,让艺术之光照进用餐氛围,抒写极致隽永之意境。
三毛曾写到,“总有一日,我要在一个充满阳光的早晨醒来,静静的听窗外如洗的鸟声,那是多么安适的一种苏醒。”理想生活,大致如此。
以爱之名 伴随成长
夹层空间为孩子独立建立一方活动天地,以爱之名伴随成长,演绎一家人闲暇的休憩之景。主色调切换成多彩的形制,系列潮玩为孩子奠基审美,同时打破平实的画面,激发孩子充足的想象力。
滑梯链接上下两层,敞开心怀乘坐在旋转滑梯上,随着飞驰的速度体验娱乐趣味,享受生活带来的欢乐瞬间。
休闲品酒区与健身室之间不设空间阻碍,蓝色旖旎光线照射进室内,为居家氛围增添时髦摩登的一幕,推杯换盏之间体味别样的优雅气质。
延伸家的半径
我们试图用设计延伸家的半径,丰富生活场景。顺着大理石纹地板而下,到达全开放式的会客空间。色彩与功能的转换,仿佛带人走进一座微型的现代艺术馆。
下层区域围绕都市人居的美好生活情境展开,低调的棕色与黑白色共同营造舒适且雅致的空间氛围,皮革座椅与镜面装饰形成鲜明的质感对比,创意的细节摆件与艺术品调和出有温度与情感的图景。
灰白与橙色明暗对比呼应着优雅的节奏,与挚友小酌或者闲憩,每一种体验都是刻入人心的印象符号,长久地融进丰富的生活诗学。
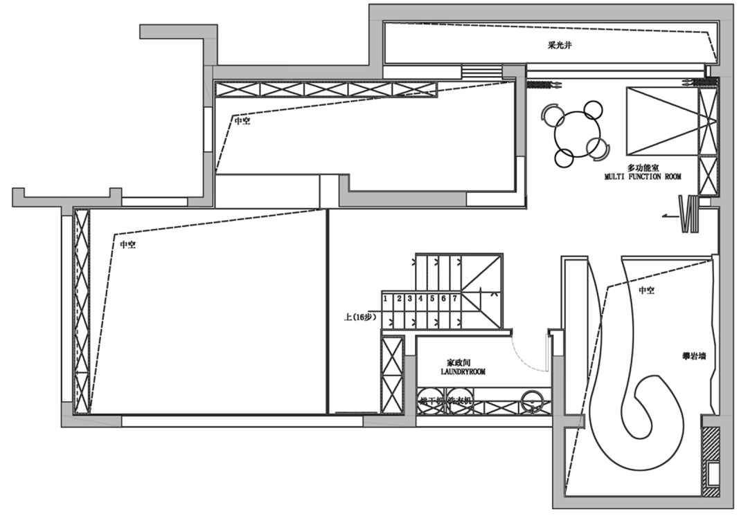
项目平面图
项目全名:力高雍湖郡未来城销售中心与样板间
项目地址:济南
软装设计:元禾大千
硬装设计:IDAD 久度设计
设计时间:2021.04
完工时间:2021.06
空间面积:604㎡/265㎡
甲方单位:力高地产
摄影团队:光谱
客服
消息
收藏
下载
最近






























































