查看完整案例


收藏

下载
陪你把沿路感想活出了答案
陪你把独自孤单变成了勇敢
一次次失去又重来我没离开
陪伴是最长情的告白
——《陪你度过漫长岁月》
家是城市中的绿洲
在每个繁杂的生活里
无数人在城市与身份间游走
寻一处新家
当我们心中【自有条理】
便能继续安静沉稳的享受【漫长岁月】
武汉浣溪璞园商墅样板间应运而生
01极致线条
客厅空间以灰白色为基调,简单的线条拼接带来视觉冲力。弧形的灯具、几何形制的柜子,设计师使用黑白条纹的大理石,加上层次分明的棕色点缀,提升空间活力与温度,让人释放归家的愉悦感。
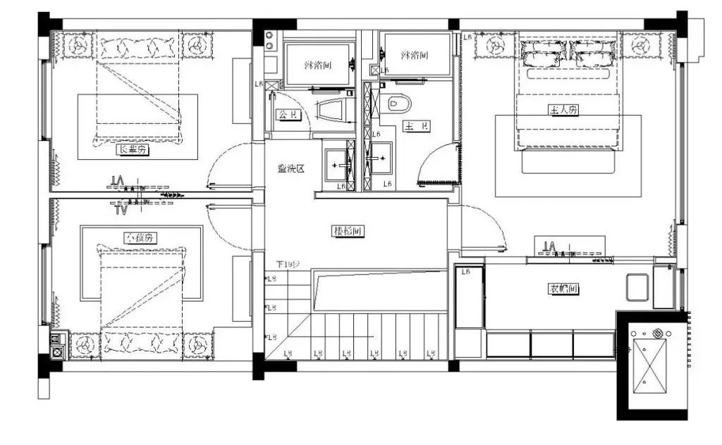
一层平面图
02 小夜曲
设计师在睡眠空间选择低饱和度的色彩,自带温度的灰褐色占据整个睡眠空间,质朴的纹理与简洁的布局,充满诗情画意。床品营造出午夜月光般恬静如水,幸福的慢生活在这里打开。
二层平面图
03漫长岁月 自有条理
茶室能够促进家庭成员之间的亲密互动,是一家人享受团聚时光的焦点所在。在这里,孩子们也能欢乐玩耍,度过漫长的岁月时光。
线条在这个空间显得格外突出,它充满表现力和魅力。几何形制的灯具极具现代感,再配上高级的梧桐色,让整个空间更具艺术感。
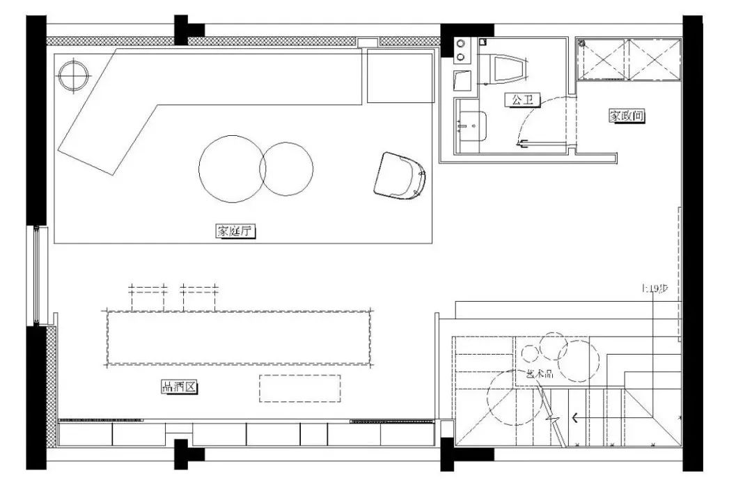
负一层平面图
项目全名:佳兆业浣溪璞园商墅样板间
项目地址:湖北
软装设计:元禾大千
硬装设计:朴悦设计
设计时间:2020.10
完工时间:2020.12
空间面积:230㎡
甲方单位:湖北分公司——佳兆业深圳集团
特别支持:佳兆业深圳集团装饰管理部——吴荣楷
湖北分公司装饰管理部——祝媛、邹睿
摄影团队:大千视觉——张浩
客服
消息
收藏
下载
最近




























