查看完整案例


收藏

下载
闲者清居
家宅容纳居者性格理想的同时,也需要满足当下,承载未来。在长沙建发松雅院下叠样板间中,我们希望通过内敛的色彩语言、简约的艺术形制打造宁静雅致的家,表现现代隐士归家自闲的生活诗篇。对东方清居的向往,成为设计内核。
清居之雅,有别于与喧哗之乐,在乎的是舒心悦目,强调的是化繁为简。简于生活,简于装饰,屋内是满眼自然舒适,温柔清雅的木系家具,罗罗清疏,简朴得致。一竹、一叶、一器物,保持着自有的况味,包裹起空间原本的冷峻,围造澹然有致的层次。
山水与竹 藤编与木 细腻纹路 集韵返璞
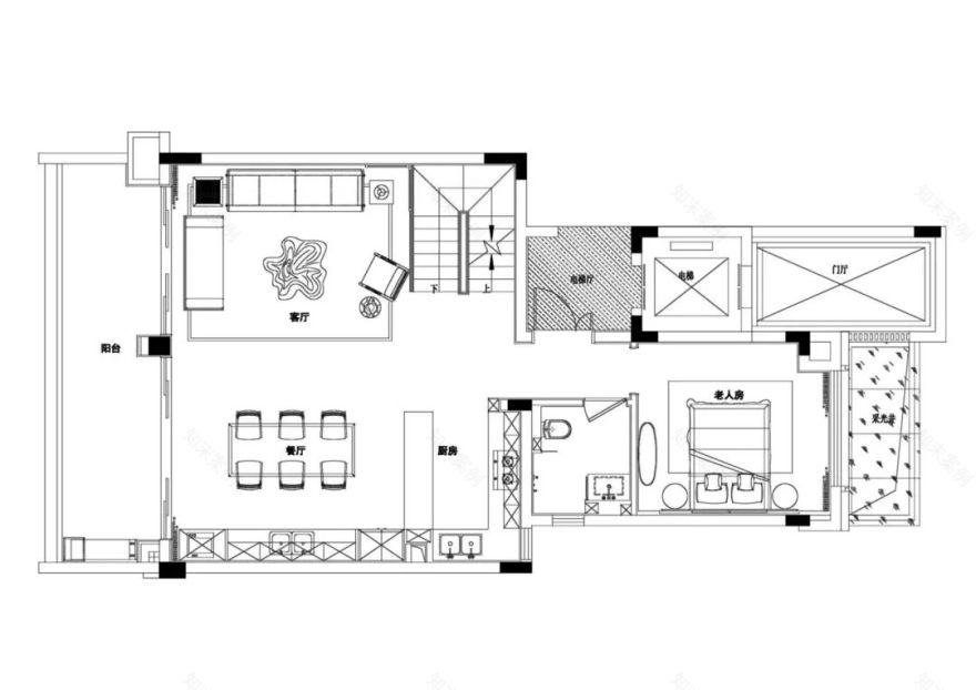
一层平面图
东方审美趣味不被流行所干扰,它有着现代风格难以复制的质感与神韵。自然安详的木色晕染至睡眠空间,由一副水墨山景图纳入仪式感。隐士居室追求气场和氛围,棉麻与木纹、竹编与树藤,多重材质带来丰富的感官。山之俊朗,云烟缥缈,有关闲适生活的种种,糅合慵懒治愈的舒适。
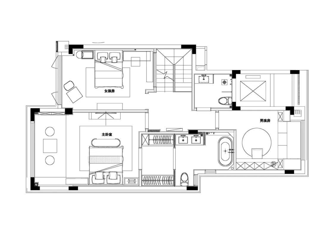
二层平面图
当代豪宅属性万象,不单追求形式上的美感,更重要的是功能及生活气息的注入。设计师将负一层打造为亲子交流互动的场所,包含儿童活动区及陶艺创作室,兴趣培养与灵感创作,格局分明,闲劳有别,丰富起屋内的情感深度。设计不仅突出东方家居的审美与调性,也关照着每个家庭成员的精神世界。
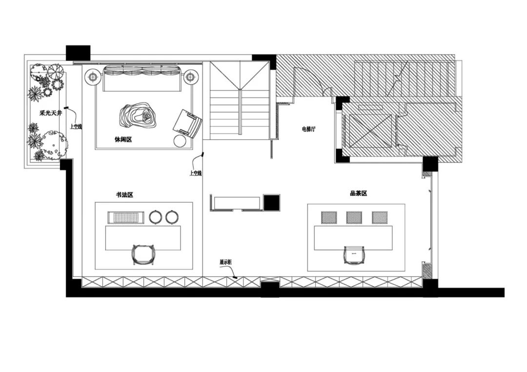
负一层平面图
闲者
生活自在有道,善赏山川名画,爱论诗词品茗。经典画作「听琴图」经由艺术演变,立体还原图中景致形成诗意的一幕。无声胜有声的弦音流露,注入居者的茶闲时光。一人自恰,二人共乐,三人欢声笑语。留一处心灵休憩之所,收获安宁与平静。
幽韵如云 酒不胜茶
题字挥毫 闲得天下
负二层平面图
项目全名:中交建发松雅院下叠样板间
项目地址:长沙
软装设计:元禾大千
硬装设计:深圳盘石设计有限公司
设计时间:2020.09
完工时间:2021.02
空间面积:380㎡
甲方单位:中交·建发
摄影团队:冷風。
客服
消息
收藏
下载
最近








































