查看完整案例


收藏

下载
"
“美有三个要素:第一是一种完整或完美,凡是不完整的东西就是丑的;其次是适当的比例或和谐;第三是鲜明,所以鲜明的颜色是公认为美的。”
"Beauty has three elements: the first is a kind of integrity or perfection, and everything that is incomplete is ugly; the second is appropriate proportion or harmony; the third is bright, so bright colors are generally recognized as beauty."
——
托·阿奎那
"
●
项目简介 Program introduction
项目地址:龙湖璟宸
项目户型:别墅
项目面积:350㎡
设计风格:法式
设计机构:湖南壹间设计丨FDA丨
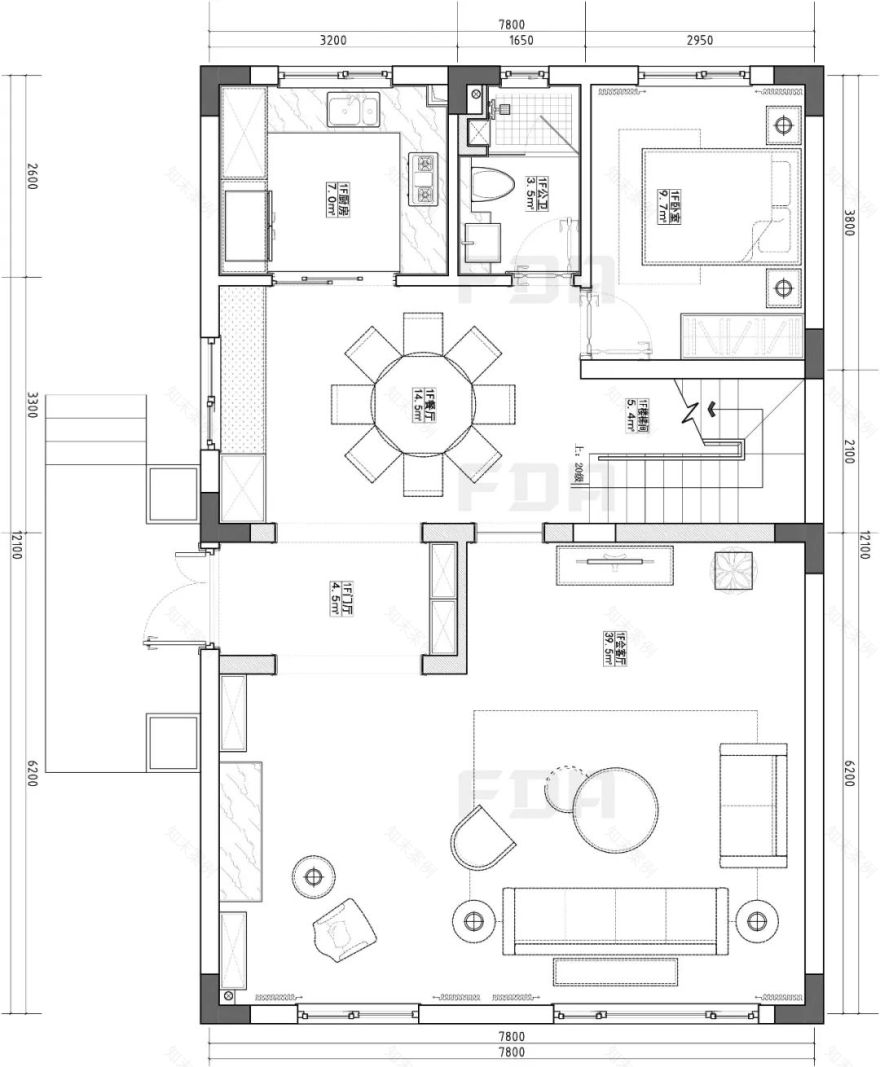
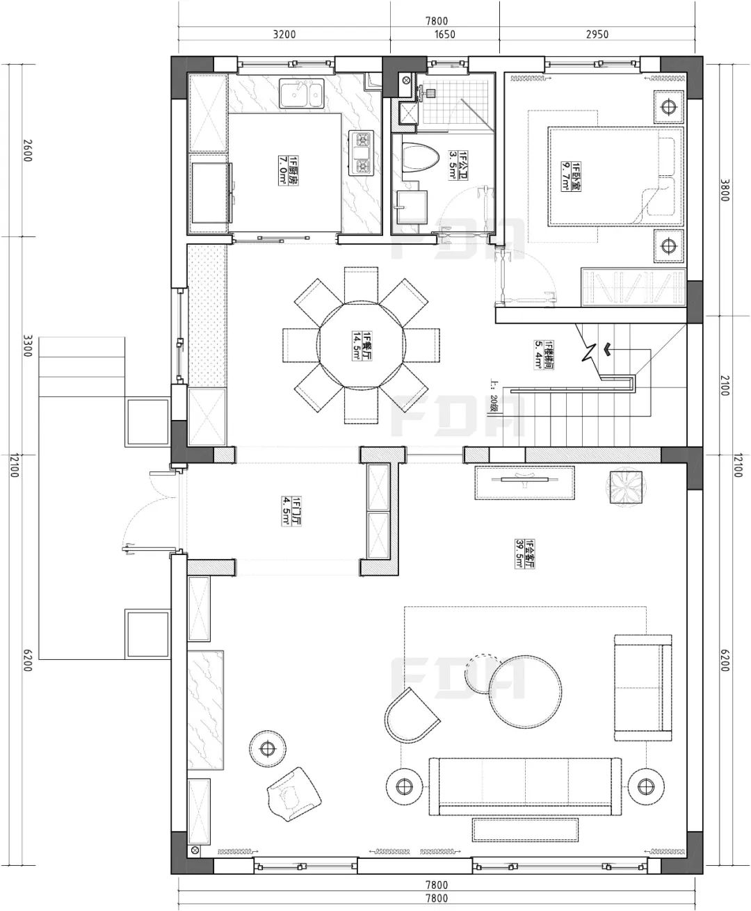
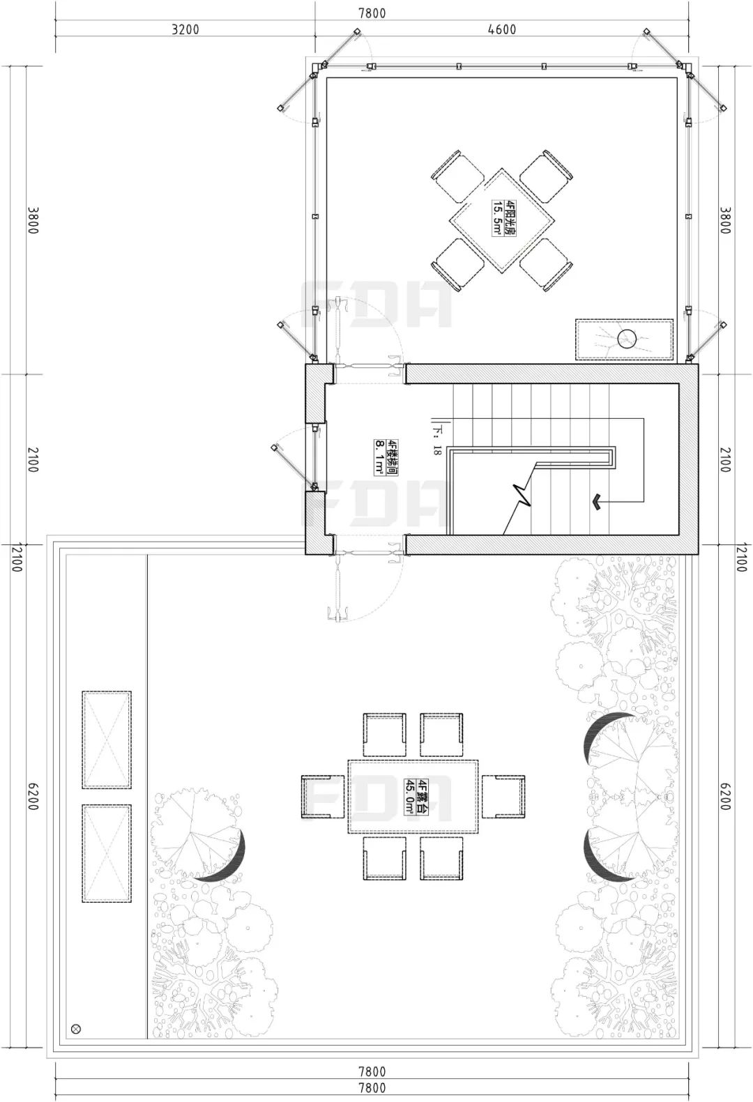
户型图
1F
2F
3F
4F
美,是给人们带来愉悦感受的源头。
本案以屋主对幸福的憧憬和美好想象为设计之源,用设计语汇创造充满仪式感的生活形态,去唤醒居者发掘日常美好的好奇心,让他们享受每一个当下。
客厅
Living Room
在客厅,设计了对法式的梳理与吸纳。精致的马头头饰品、真皮沙发带来经典的法式风味,金属的点缀则让空间自然而然地生发出了轻奢的质感。
餐厅
Ding Room
餐厅运用大面积
蒂凡尼蓝作为背景墙
,与爱马仕橙的椅子形成对比色。
卧室
Ding Room
主卧延续客餐厅颜色基调,对镜梳妆享受片刻的放松。
书房
Ding Room
书房蓝色成为主角,与大面积的白交织出充满诗意的淡雅宁静。在这里,可以赶走内心所有的烦闷、焦躁。
露台
Terrace
对于家而言,首先需要有美感,正如托·阿奎描述的美,包括结构完整、整体协调、还有鲜明的色彩,这会给居住者带来喜悦感和满足感;另外还需要舒适感,设计师需要结合居住者的习惯和喜好“量身定制”。而这两方面就是壹间设计的立业之本,是我们擅长的方
面!
本案设计师:王浩
设计理念:
一尘
不染,素净澄明。通过空间
.色彩.把设计回归本位.
擅长类型:
大宅别墅居住空间
.民宿酒店.公共办公娱乐空间.
从业经验
:14年
擅长风格:
新中式、轻奢风、法式、北欧等
曾获荣誉:
2020年IDCF中国(深圳)国际室内设计文化节年度影响力设计师(别墅大宅)
代表作品:
绿城高尔夫青竹湖别墅 .同升湖山庄别墅. 卓越麓山别墅.山水中天
国际大酒店
.天都国际会所酒店.长房集团科技公司. 弘一律师事务集团.
中投证券等
......
壹间设计
地址:湖南长沙万家丽家居生活广场4楼
推荐阅读
▼
(点击文字或图片查看案例详情)
▼
爵世名邸丨轻奢于形,优雅于里
美式轻奢丨优雅奢华的美式空间
楚天逸品丨设计新高度
客服
消息
收藏
下载
最近























