查看完整案例


收藏

下载
携手共筑爱巢,
至简,至纯,
奔赴美好生活!
❐ 项目概览
项目坐标|Address:上海.映虹桥
项目面积|Area:183㎡
设计风格丨Style:现代简约
设计机构|Design:玖柞制作
视觉表现|Visual Expression:棠尘映画
咨询入口|Service:点这里,一对一咨询
•
01 ABOUT OWNER 关于屋主
- 大同小异的精装房,到底是省心还是更加劳神伤财,枯燥乏味的设计已无法满足业主的审美需求,不再循规蹈矩,生活需要突破。
本案屋主是年轻活泼的 95 后,男业主是一名细节控的 it 工作者,女业主在报社工作,喜欢现代黑白灰的高级质感,而这套房也是他们的婚房,两人携手共筑爱巢。
根据屋主需求,对这套精装房进行了局部的改造,张弛有度,是给业主的最优解,最小的改动实现利益最大化。
•
02APARTMENT LAYOUT DESIGN
户型设计
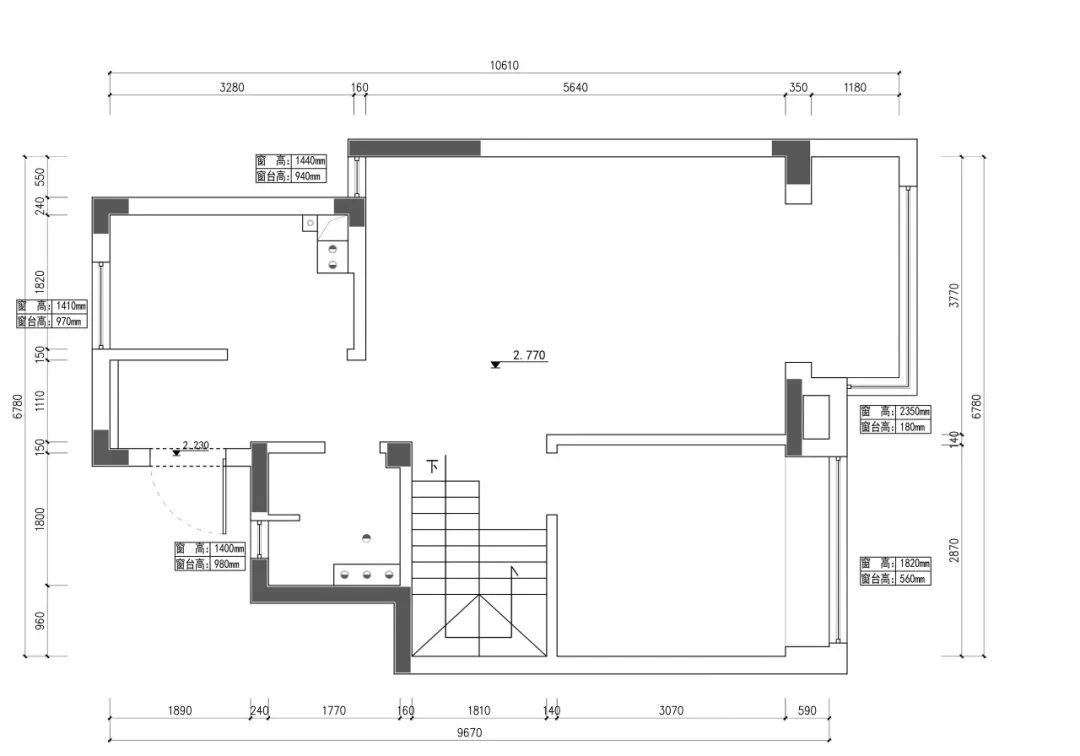
▲一楼平面布局图
↔️向右滑动,查看户型图
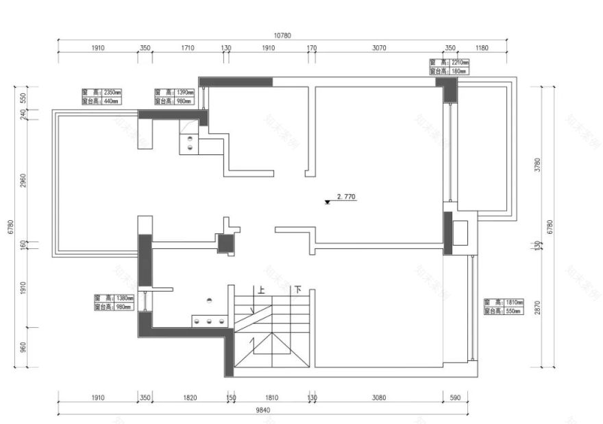
▲二楼平面布局图
↔️向右滑动,查看户型图
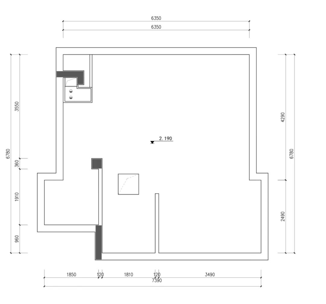
▲三楼平面布局图
↔️向右滑动,查看户型图
改造前户型缺陷:
1. 餐厨部分缺少联动感,动线也不够流畅
2. 餐厅采光不足,南北不通
3. 封闭式阳台造成空间浪费
改造后设计亮点:
1. 打开厨房做开放式设计,新增吧台隔断餐厅,加强区域间的交流互动
2. LDK 一体设计,空间开阔南北通透,光影自在穿梭
3. 阳台融入室内,同时设置洗烘套组,以及盥洗池和扫地机器人,保留功能且扩展了公区面积
4. 全屋大量设置储物空间,实现点对点分区收纳,生活整洁井然有序
5. 阁楼打造成业主的娱乐休闲区,满足手办展示、游戏竞技、喷绘手工等多功能需求,实现空间最大利用率
•
03 CASE APPRECIATION
实景图
01 _
|
客厅
・
暗黑质感,现代高级
|
Living room
・
Modern advanced
全屋以黑白灰为主基调,迸发时尚气息,满眼清爽高级。
电视墙极简留白,悬空电视柜轻盈利落,轨道射灯塑造灵活多变灯光氛围。
一字沙发搭配小巧茶几,精简软装彰显现代气质,靠墙打造黑色收纳柜,延伸至阳台与餐厅,空间整体性更强。
柜体内嵌丰富的灯带设计,中和深色系的清冷感,客厅温馨有度。
黑色柜体蔓延至阳台角落,顺势打造多功能阳台柜,嵌入洗烘套组,并设置盥洗区,打造便捷的阳台洗衣角。水槽下方设置扫地机器人基站,整体设施齐全且周到,助力家政生活便捷满满。
02_
|餐厅&厨房
・开放设计,沟通无阻
|
Restaurant & Kitchen
・
Open and free
餐厅与厨房通过吧台隔断,中西分厨的同时加强区域之间的沟通交流,LDK 一体设计开阔且自在。餐桌倚靠吧台,黑白色块时尚大气,冰箱完美内嵌于餐边柜,功能与美学实现统一。
开放式厨房设计,让爱意互动、光影流通,人间烟火气洒落全屋。
吧台下方内嵌蒸烤箱,扩展厨房功能,另一侧安装滑轨插座,满足日常生活最大便捷度。纯白橱柜清新温柔,下厨时光治愈爽朗。
03_
|
客房
・
简约清爽,惬意好眠
|
Guest room. Simple and comfortable
一楼客房以奶咖色打底,搭配墙面同色窗帘,呈现温馨简约的睡眠环境,让客人宾至如归。宽敞的飘窗带来充足的采光面,亦是舒适惬意的休闲区,坐享窗外壮丽美景,治愈无比。
04_
|楼梯
・
蜿蜒而上,清透至简
|S
taircase ・
Winding up
高级灰裹挟着一身自然的风韵,从地砖蔓延至岩板踏步,低调且内敛,无处不在散发着现代感高级魅力。玻璃扶手清透简约,实木镶边蜿蜒而上,楼梯质感更加丰富。
05|书房
・
独立静谧,劳逸结合
|Study room・ Independence and quiet
二楼包含主卧套房,以及这间独立书房,放置简约书桌,靠墙打造满墙书柜,增加镜面材质丰富空间层次,同时视觉上放大空间。
飘窗部分拓宽打造半墙收纳柜,大大小小的开放格收纳书籍,台面做惬意休闲区,实现窗边自在阅读角,劳逸结合幸福满满。
06_
|主卧
・
高级套房,温馨大气
|
Bedroom ・
Superior suite
主卧延续全屋基调,黑白分明高级沉静。床头以饰面板包裹,延伸出一体式床头柜,小巧悬浮样式,搭配精致吊灯,睡眠环境温馨且不失格调。
床尾墙面做收纳式电视墙,两侧对称分布黑色不锈钢开放格,内嵌灯带柔和高级,为卧室带来一抹温馨气质。
主卧套房包含独立衣帽间,光影充足,双侧到顶衣柜尽显极简气质,搭配黑玻柜门清透舒爽,避免压抑沉闷。
07_
|卫生间
・
空间虽小,五脏俱全
|Toliet・ Simple and practical
精装房自带的卫浴空间,角落用玻璃隔出淋浴房,节省空间干湿分离。镜柜做收纳保持台面整洁,空间虽小但功能齐全,提供舒适便捷的卫浴体验。
08_
|阁楼
・
游戏手办,娱乐天堂
|Attic・ Entertainment paradise
根据男业主需求,三层的阁楼部分改造成娱乐休闲区,明装轨道灯很好的保留层高,阁楼不显压抑逼仄。一张 2 米长的大书桌,既是电竞区也是手工区,墙面打造展示柜,业主大量的手办置于其中,让人赏心悦目。
玖柞制作 · 荣誉奖项
上海电视台家装节目《最家计划》常驻嘉宾设计师
东方卫视家装节目《梦想·改造家》签约设计师
荣登全球十大家居类杂志《家居廊 2019.1 月》
荣登全球十大家居类杂志《家居廊 2020.6 月》
2023 上海一好好住一中国「上海」年度推荐设计机构
2022 国际一 ICS 国际色彩空间设计奖一优秀奖
2022 中国一华东地区一一兜糖最有温度设计师 TOP300
2022 中国一华东地区一住小帮设计师大赛—最佳小户型奖
2022 中国一 PChouseAward 私宅设计大奖一全国 TOP100
2022 中国一金案奖一优胜奖
2022 上海一 40UNDER40 一中国「上海」设计杰出青年
2022 上海一设计周年度一省际榜一新锐设计奖
2022 上海一设计周年度一全国榜一设计有思想设计大奖
2022 上海一金住奖一中国「上海」十大居住空间设计师
2022 上海—M+中国高端室内设计师大赛 TOP20
2021 国际一 ICS 国际色彩空间设计奖一优秀奖
2021 亚洲一亚洲软装风尚大奖一优胜奖
2021 中国一好好住营造家一年度最佳小户型设计奖
2021 中国—第九届室内设计大赛日立 Hi-Design—优秀奖
2021 中国—第二十四届中国设计大奖赛—优秀奖
2021 中国—家装百强设计品牌—百强设计机构
2021 中国—华东地区—一兜糖最有温度设计师 TOP100
2020 国际—艾鼎国际设计—杰出设计师
2020 中国一 WAD 世界青年设计师大会一杰出设计师
2020 中国一一兜糖最有温度设计师 TOP100
2020 中国—红棉中国设计奖
2020 上海一 40UNDER40—中国「上海」设计杰出青年
2020 上海—蝴蝶奖—创意生活设计奖(平层公寓)
2020 上海—M+中国高端室内设计师大赛 TOP20
上海
徐汇区宜山路 520 号 1807
客服
消息
收藏
下载
最近












































