查看完整案例


收藏

下载
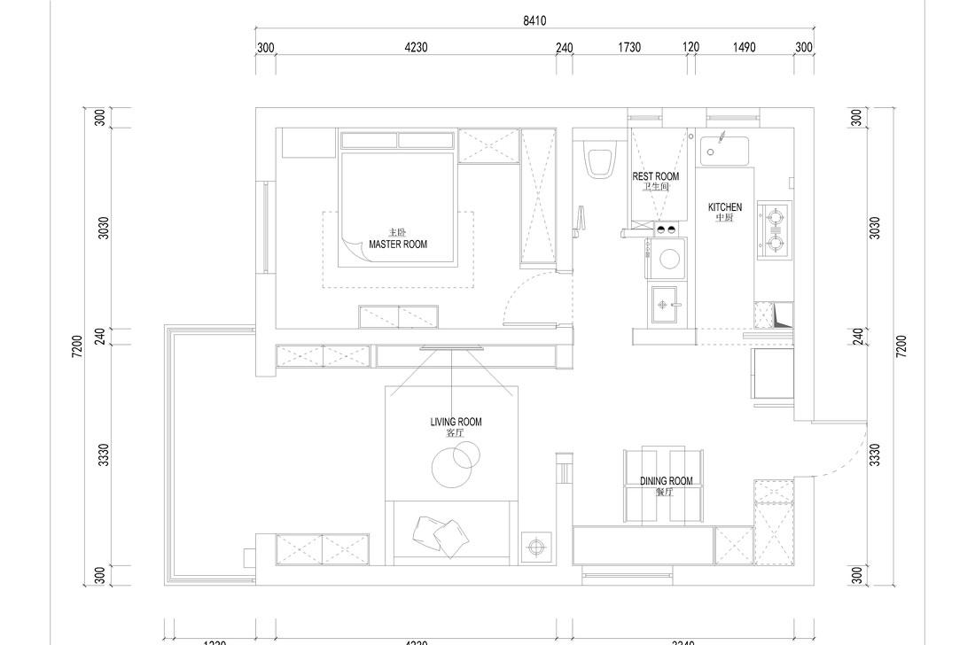
改造前户型:两居室的格局,但是没有客厅,整体空间不够通透。
1.原来格局是两室,设计师将其中一间卧室改造成一个客厅,并在客餐厅之间,做了镂空的墙体隔断;
2.阳台两侧做了两排柜子,增加了储物空间;
3.卫生间把干区移到门外,感觉上空间变大了,同时马桶的朝向也结合动线的舒适度做了变动;
4.卧室内整屋柜体的设计延伸到了床边,能多一些储物,同时又具备了床头柜的功能;
5.客厅的空调配合全屋定制一起打造,藏在了柜体内,以百叶的形式做了出风口。
全屋中改造最大的部分就是客厅。原本这套房子是没有客厅的,但业主又对客厅的功能有着迫切的需求,他们希望有一个精致美丽的客厅,能规划出休闲、看电视,互相沟通的空间。
设计师与业主沟通后,决定把原本的一间卧室的空间释放出来,造出一个与阳台相连的客厅。同时,原本房屋的格局也被打开,整个空间连通性更强,采光也得到扩充。
客厅和阳台的衔接处的墙面做了从顶至地的收纳柜,这也是一个拥有更多可能性的空间,以后如果家里添丁,这部分空间也可以考虑再做出一间儿童房。
整屋软装搭配以以原木色为主,以迎合室内整体家具,保持一致性,会让整体看着更统一协调。搭配白色墙砖、花砖地面,这一效果简约十足,还挺漂亮。
客厅电视背景墙。电视背景墙没有过多的装饰,仅仅是一面未经修饰的白墙,低调简约。在黑色悬空式的电视柜旁,还挤出了空间放置生机勃勃的绿植。
客厅沙发背景墙。深色皮质沙发,配合整体简约的基调,给整个家增添很多稳重感。一侧的绿植,能增添一些清新感,为黑白灰的空间增色。
客厅。客厅和餐厅之间,设计师特别做了半堵镂空墙体的隔断,为这个小角落增添了些许趣味。这也是小户型空间做隔断最明智的选择。
客厅沙发。客厅的空调配合全屋定制一起进行规划,设计师把它藏在了乳白色的收纳柜内,以百叶的形式做了出风口。但百叶不能选择过于细密的款式,会影响空调出风体验,材质也同样选择不容易凝水的ABS材质。
客厅的采光很是不错,阳台与客厅打通后,全屋光线超级充足。整个素色的装饰以及白色的天花板,搭配黑色的沙发和原深灰玻璃茶几,整体感温馨舒适又精致简约。
厨房整齐划一的立体集成收纳,给人宽裕整洁之感。厨房整体通铺大理石瓷砖,搭配纯白色吊柜和深色橱柜,超大限度保留明度,又形成了空间色调的层次感。
厨房台面细节。
进门处两侧的空间,设计师也做了充分的规划,一侧打造了整面鞋柜,另一侧是冰箱的位置。两侧收纳柜体木色和乳白色相间隔,形成一种呼应和交错的美。
客餐厅之间镂空的隔断隐约中透着朦胧,给生活以一种诗意。
别看餐厅空间不大,可餐桌上进行一番简单的布置,却也满满的生活气息。一盏造型简约别致的吊顶,就可以让简单空间变得不平凡。
餐厅靠窗台的位置打造了一整排的餐边柜,充分利用了这处狭窄的小角落。
餐边柜上的黑白几何画很有艺术感,和餐桌上精致的小茶壶相对应。
主卧,整个格局没有大的改动,但将原本衣柜的功能向床边做了进一步的延伸,床头柜上方的位置也打造了吊柜,尽可能地多做一些储物空间。
卧室。细节展示。床头柜和整屋柜体保持一致的形态,但和吊柜之间有一小段区隔,用作摆放物品,方便使用。
砖红色的床头背景墙,搭配黑色的床头软包,整体温馨舒适。床头背景墙以黑色简约造型的线性灯光修饰,映衬出温暖的生活质感。
卫生间内采用的是和干区一直的墙砖,悬空式马桶解决了小空间的清扫死角。长虹玻璃结合黑框门,简洁轻松的搭配营造出舒缓的居家氛围,适合快节奏的生活方式。
客服
消息
收藏
下载
最近
























