查看完整案例


收藏

下载
烦闷的梅雨天,快来这个轻盐系的家吹吹风吧!
崇尚“Less is more”、希望生活回归简单的屋主夫妇,渴望拥有一个可以相互陪伴、却又可以各自忙碌的家。在风格方面,他们不爱繁杂,简洁纯粹的空间才是心头好。
我们为空间做减法,用大面积的留白、富有质感的细节,勾勒出简单而富有想象力的空间。不拘一格的空间布局则带来全新的生活方式,围坐、聊天、聚会、阅读……这个家仿佛美术馆,每一处皆是风景。
华侨城欢乐天际
[ 项目简介
地址 |Address:华侨城欢乐天际
面积 |Square Meters:130㎡
风格 |Style:现代风格
户型 |Apartment:三室两厅
设计 |Designer:诗享家设计
施工 | Construction:诗享家施工
软装 |Soft Decor:诗享家宅配
咨 询 | 诗享家咨询预约入口
[ 客户需求
家是生活的容器,包容着空间主人的生活方式和态度。而设计,就是为了让空间与屋主的气质相互融合,带来不拘一格的新生活。
本案是一对年轻夫妻的新家,他们喜欢开敞互联的空间格局,希望可以各自忙自己的事情、却又可以交流沟通;考虑到未来几年可能会增加家庭成员,因此保留三间房也非常有必要。
风格方面他们希望拥有休闲、自然、干净、纯粹的空间主场,我们用利落的硬装、柔和的软装,让家拥有呼吸感和简约的美感。
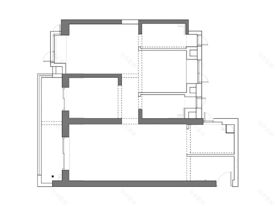
[ 功能设计
➜向右滑动,查看原始结构图
打开厨房,用鞋柜隔出玄关,既满足收纳需求、又让空间开阔明亮;
厨房台面延伸至餐厅,一整面高柜、双开门冰箱,让烹饪变得更简单;
客厅阳台并入室内,拥有开阔的公共区域;超长阳台仅用玻璃门相连,家政动线更流畅;
书房借用主卫约 20cm 空间,设计一整面柜子,满足收纳需求。
[ 视觉设计 ]
·互动式的家庭区,是现代生活方式的表达。打开阳台、打破拘谨,开阔的空间使人身心舒畅,也延伸出更多的互动方式。
·没有笨重的柜子,改用灵活的组合式置物架、可移动的画境电视,客厅有了休闲、阅读等多种使用场景。一人看书、一人看电影…各自做喜欢的事,也能互相陪伴。
·阳台没有设计传统门套,而是和客厅区域融为一体。当光线透过落地玻璃窗、与室内大面积的暖白色撞个满怀,干净自然的气息扑面而来。
·客厅的梁体和厨房梁体相互呼应,没有刻意隐藏、而是大胆裸露,并涂刷水泥质感的艺术涂料,保留了原始的美感,粗犷又大气。
· 玄关的墙面、顶面,以及鞋柜均设计成黑色,立体感更强,也更具仪式感。
厨房同样选用黑色橱柜,墙面铺贴白色瓷砖、拼接防水漆,烟火之地也能艺术感十足。
· 餐桌旁打破常规,设计悬空的水吧柜,增添储物的同时也让空间更有呼吸感。
诗享家咨询预约入口
[ 往期作品回顾 ]
你也喜欢这样的家?
诗享家咨询预约入口
[ 我们的荣誉]
2022 金住奖——中国(武汉)十大居住空间设计师
PChouseaward 私宅设计大奖 2022 年度 top100 作品奖
2022 金案奖-全国优胜奖
家装设计时代风云榜 2021-2022 年度全国榜
2022HDA 她设计奖优秀软装作品
WYD2022 年度(大中华区)100 杰出设计青年奖
2022 度金堂奖杰出展示空间设计
2022 金堂奖卓越设计青年
第九届日立 Hi-Design 室内设计大赛别墅组金奖
2021 私宅设计大奖武汉&长沙 TOP10/全国 top100 设计机构
2021 芒果奖中国别墅创意奖
2021 安德马丁发现中国好设计年度推荐设计师
2021 年度优秀雅奢空间设计
2021 我要去米兰杰出青年设计师奖
2021「营造家奖」年度设计 TOP50
NCA 新商业空间大奖(2021-2022)杰出新商业空间设计师 TOP100
金案奖(2021-2022)·全国优胜奖
潮设计奖-2021 潮设计空间 TOP100
2021 金住奖-中国(武汉)十大居住空间设计师
2021 广州设计周 40UNDER40 中国(湖北)设计杰出青年奖
2020「营造家奖」年度推荐设计师全国百强
2020 广州设计周 40UNDER40 中国(湖北)设计杰出青年奖
2020HDA 她设计奖年度最佳设计
2020 幸福家设计大赛全国亚军
2020Hi-Design 室内设计大赛公寓组金奖
2019 金堂奖年度优秀住宅公寓设计、年度优秀办公室空间设计
2019 年第三届华中区室内设计新势力奖
2019 年好好住营造家奖年度最佳大户型设计 Top20
2018 年度达人设计总评榜全国百强
2018Hi-Design 第六届室内设计大赛优秀奖
2018 广州设计周 40UNDER40 中国(湖北)设计杰出青年奖
2017 中国空间设计大赛“鹏鼎奖”十佳豪宅空间奖、十佳公寓空间奖
2016 国际空间设计大奖“艾特奖”最佳陈设艺术设计奖
2016Hi-Design 第四届室内设计大赛优秀奖
2016 湖北室内设计总评榜住宅空间优秀奖
2016 第七届“筑巢奖”优秀作品
客服
消息
收藏
下载
最近











































